NewConstruction Soeknad Garasje

Ny garasje med bod i Assæveien 64, Arendal

📍 Assæveien 64 , 4848 ARENDAL

Nøkkelinfo

Sakstype
Nybygg
Bygningstype
Garasje
Bruksareal
120 m²
Kommune
Arendal
Fylke
Agder
Gnr / Bnr
446 / 46
Saksnummer
2026/7461
Fase
Søknad

Om byggesaken

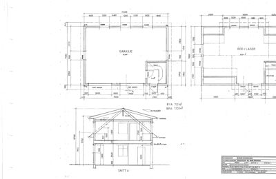
Ny frittstående garasje med bod over garasjen på totalt 120 m² BRA og 70 m² BYA oppføres på en ny fradelt tomt tilknyttet eiendommen Assæveien 64 i Arendal. Bygget har to etasjer, saltak og tre som fasademateriale. Garasjen har to porter på 280x230 cm, flere vinduer og en dør. Tomten ligger i et boligområde med flomfare, og tiltaket krever dispensasjon fra byggegrense mot vassdrag og avstand til fylkesvei. Det er etablert ny/utvidet adkomst fra fylkesvei med godkjent avkjørsel. Bygget skal brukes til parkering av biler og lagring av utstyr som hagemøbler og gressklipper. Det er offentlig vann- og avløp tilknyttet, og det er høyspentlinje i nærheten med godkjent byggeavstand.

Produkter og materialer

Rekkverk Balkongrekkverk

Antall: 0

Ingen balkonger i prosjektet

Overvann Takvann og overvannshåndtering

Takvann føres til terreng

Overvannshåndtering fra tak til terreng

Grunnarbeid Tomtearbeid og fundamentering

Grunnarbeid for garasje på ny fradelt tomt

Grunnarbeid og fundamentering for garasje

Dører Ytterdør i tre

🧱 Tre

Antall: 1

Ytterdør til bod over garasje

Tak Saltak

🧱 Tre, takrenner

Antall: 1

Saltak med takrenner

Saltak på garasje med bod

Elektro Elektrisk installasjon

Elektrisk installasjon for belysning og strøm

Elektrisk installasjon i garasje og bod

Betong Fundament og plate

🧱 Betong

Betongplate for garasje

Betongfundament og plate for garasje

VVS Vann og avløp tilknytning

Tilknytning til offentlig vann og avløp

Vann- og avløpstilknytning til garasje

Trapper Innvendig trapp til bod

Antall: 1

Trapp til bod over garasje

Garasjeport Dobbel garasjeport

🧱 Tre/metalldetaljer

Antall: 2

Portmål 280x230 cm

To garasjeporter for bilinnkjøring

Vinduer Fasadevindu

🧱 Tre ramme

Antall: 12

Vinduer fordelt på fasader, totalt 12 stk

Vinduer i tre med saltak over

Tømrer Bygging av konstruksjon

🧱 Tre

Tømrerarbeid for garasje og bod

Tømrerarbeid for oppføring av garasje med bod

Fasade Trepanel

🧱 Tre

Antall: 1

Tre som fasademateriale

Trepanel på alle fasader

Fasader

Garasje

Vest
Materiale
Tre
Taktype
Saltak
Vinduer
2
Dører
1
Synlige etasjer
2
Nord
Materiale
Tre
Taktype
Saltak
Vinduer
2
Dører
0
Synlige etasjer
2

Garasje med bod

Syd / Øst
Materiale
Tre
Taktype
Saltak
Vinduer
5
Dører
0
Synlige etasjer
2
Nord / Øst
Materiale
Tre
Taktype
Saltak
Vinduer
3
Dører
0
Synlige etasjer
1

Hendelser

17.04.2026 Oversendelse for eventuell uttalelse - 446/46/0/0 - Assæveien 64
04.03.2026 Assæveien 64, melding om mottatt søknad
03.03.2026 Assæveien 64 Søknad om rammetillatelse 446/46