Extension Rammetillatelse Garasje

Ny bod og forstøtningsmur i Skifjordvegen 525

📍 Skifjordvegen 525 , 6958 SØRBØVÅG

Nøkkelinfo

Sakstype
Tilbygg
Bygningstype
Garasje
Bruksareal
27 m²
Kommune
Hyllestad
Fylke
Vestland
Gnr / Bnr
7 / 10
Saksnummer
2025/451
Fase
Rammetillatelse

Om byggesaken

Ny frittstående bod på 27 m² oppføres på eiendommen Skifjordvegen 525, tidligere godkjent som carport, men endret til bod uten endring i fotavtrykk, plassering eller høyde. Bygget skal ha innkledning av åpne flater og oppføres i samsvar med TEK17 med hensyn til brannmotstand. I tillegg oppføres en forstøtningsmur langs eiendomsgrensen med høyde mellom 0,25 og 0,5 meter, som skal sikre terrenget mot utglidning. Muren ligger delvis på naboeiendom med skriftlig samtykke. Området er i LNF-formål, og tiltakene er vurdert å ikke ha vesentlig negativ påvirkning på naturmangfold eller naboforhold. Det er gjennomført nabovarsling og mottatt avstandserklæringer.

Produkter og materialer

Brannvern Brannskille

Antall: 1

Bod oppføres med brannmotstand i henhold til TEK17, eksisterende hyttevegg fungerer som brannskille

Brannskille mellom bod og hytte

Tak Taktekking

🧱 ukjent

Antall: 1

Tak oppført i henhold til tidligere godkjente tegninger, uendret fra carport

Tak på bod, samme som tidligere godkjent carport

Grunnarbeid Grunnarbeid for bod og mur

Antall: 1

Grunnarbeid for fundamentering av bod og forstøtningsmur, inkludert gruslegging foran og bak mur

Grunnarbeid for oppføring av bod og forstøtningsmur

Fasade Innvendig og utvendig kledning

🧱 trepanel

Antall: 1

Bod innkledd med trepanel, lukket konstruksjon i henhold til TEK17

Inn- og utvendig kledning av bod, lukket flater i stedet for åpen carport

Tømrer Bygging av bod

🧱 tre

Antall: 1

Oppføring av bod på 27 m² med lukket konstruksjon, i henhold til godkjente tegninger

Tømrerarbeid for oppføring av bod

Mur Forstøtningsmur

🧱 betong eller naturstein

Antall: 1

Høyde ca. 0,25-0,5 meter, plassert langs eiendomsgrense, med grus foran og bak muren

Forstøtningsmur for å sikre terreng mot utglidning, delvis på naboeiendom med samtykke

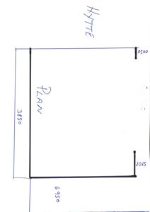
Plantegning

Hytte 26.8 m²

Etasje 1 26.8 m²

Rom Areal Vinduer Dører
Hytte 26.8 m² 0 0

Hendelser

17.04.2026 Etterspørs svar på klage
10.04.2026 Løyve til tiltak - Gbnr 7/10 - Skifjordvegen 525 - Oppføring av bod
09.04.2026 Mellombels svar - søknad om endring av løyve
09.04.2026 Søknad om endringsløyve
26.02.2026 Endring av løyve – gnr. 7 bnr. 10 – Saksnr. 25/054 (carport → bod)
28.01.2026 Vurdering av søknadsplikt - Oppføring av mur
02.01.2026 Vidaresending av klage til kommunen
02.01.2026 Bygge saker i et NLF område
02.01.2026 Gnr 7 Bnr 10 – Forstøtningsmur – oversendelse av nabovarsling.
19.12.2025 Klagen avvises - Gbnr 7/10 - Skifjordvegen 525 - Oppføring av carport
18.12.2025 Svar på klage vedrørende hytte og mur ved Seljevollvatnet
18.12.2025 Hytter/murer
25.08.2025 Løyve til tiltak - Gbnr 7/10 - Skifjordvegen 525 - Oppføring av carport
25.08.2025 Revidert avstandserklæring
25.08.2025 Sender e-post Avstandserklæring (1).pdf
22.08.2025 SV: Byggesøknad
14.08.2025 Byggesøknad