NewConstruction UnderBehandling Garasje

Ny frittliggende garasje med bod og støttemur på Berglia 26

📍 Berglia 26 , 1812 ASKIM

Nøkkelinfo

Sakstype
Nybygg
Bygningstype
Garasje
Bruksareal
86 m²
Kommune
Indre Østfold
Fylke
Østfold
Gnr / Bnr
36 / 232
Saksnummer
2026/2737
Fase
Under behandling

Om byggesaken

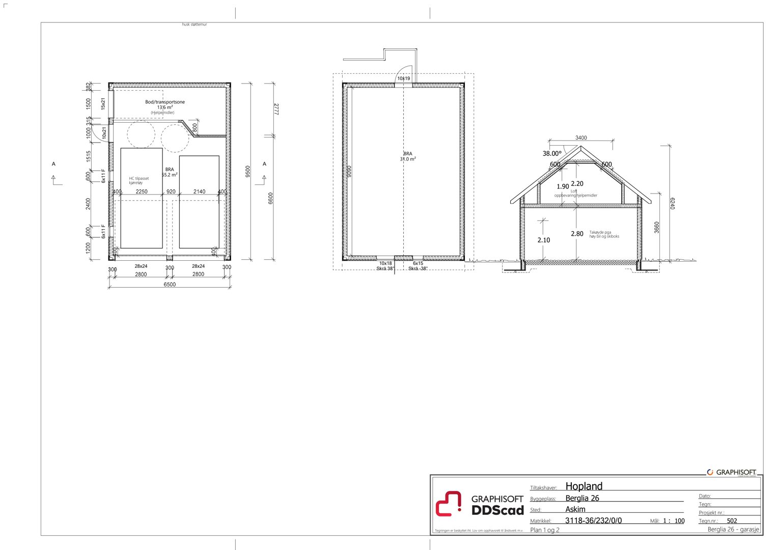
Ny frittliggende dobbeltgarasje på totalt 86,2 m² BRA i to etasjer med grunnflate på 62 m². Garasjen har en gesimshøyde på 3,66 m og mønehøyde på 6,24 m, tilpasset et spesialtilpasset kjøretøy med heis og elektriske hjelpemidler for et barn med funksjonsnedsettelser. Første etasje inneholder garasjerom for to biler og en bod/transportsone på 13,6 m² for oppbevaring og lading av hjelpemidler. Andre etasje er innredet som loft for oppbevaring av større og sesongbaserte hjelpemidler. Det oppføres også en støttemur på inntil 1,5 m høyde nær nabogrense. Garasjen er tilrettelagt for universell utforming og tekniske installasjoner som strøm til kjøretøyet.

Produkter og materialer

Ventilasjon Ventilasjon i garasje og bod

Ventilasjon for å sikre luftkvalitet og forhindre fukt

Grunnarbeid Støttemur

🧱 Betong

Antall: 1

Støttemur inntil 1,5 m høyde plassert inntil 10 cm fra nabogrense

Støttemur for terrengstøtte langs naboeiendom

Fasade Garasje yttervegger

Antall: 1

Frittliggende garasje i to etasjer med gesimshøyde 3,66 m og mønehøyde 6,24 m

Yttervegger for garasje med tilpasning til universell utforming og tekniske installasjoner

Tak Saltak på garasje

Antall: 1

Tak med høyde tilpasset spesialtilpasset kjøretøy med takboks

Tak med tilstrekkelig høyde for kjøretøy og tekniske hjelpemidler

Elektro Strømforsyning til kjøretøy

Antall: 1

Strømtilkobling for lading av spesialtilpasset kjøretøy med elektrisk utstyr

Elektrisk installasjon for lading og drift av kjøretøyets tekniske hjelpemidler

Tømrer Innvendige vegger og himling

Innvendige konstruksjoner for bod og loftsrom

Gulv Betonggulv i garasje og bod

🧱 Betong

Slitesterkt gulv egnet for kjøretøy og lagring

Dører Garasjeporter og boddør

Antall: 2

Garasjeporter for to biler og dør til bod/transportsone

Dører for garasje og bod med tilpasning til funksjonsbehov

Isolasjon Isolasjon i garasje og bod

Isolasjon for å sikre egnet inneklima og beskyttelse av hjelpemidler

Plantegning

Garasje 31.0 m²

Etasje 1 31.0 m²

Rom Areal Vinduer Dører
Bod/transportsone 101 13.6 m² 0 1
Garasjerom 102 17.4 m² 0 1

Hendelser

17.04.2026 Gbnr 36/232 - Berglia 26 - Garasje - Tilbakemelding om mangler - Anbefaling om omprosjektering
08.04.2026 Gbnr 36/232 - Berglia 26 - Søknad om garasje