Photo
Fotografi av en eksisterende bygning (hus) sett fra foran, med snø på bakken og en bil parkert.
1 / 10
NewConstruction
UnderBehandling
Garasje
Ny garasje/uthus i Hans Houens gate 2 e, Skien
📍 Hans Houens gate 2E , 3715 SKIEN
Nøkkelinfo
- Sakstype
- Nybygg
- Bygningstype
- Garasje
- Kommune
- Skien
- Fylke
- Telemark
- Gnr / Bnr
- 300 / 1789
- Saksnummer
- 2026/5768
- Fase
- Under behandling
Om byggesaken
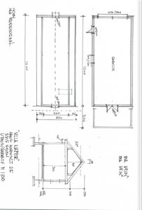
Ny frittliggende garasje/uthus oppføres på eiendommen Hans Houens gate 2 e i Skien. Bygget tilpasses eksisterende bolig fra 1920-tallet med lik takvinkel, utvendig panel, takstein og farge for å harmonere med strøket. Garasjen får saltak og flatt tak i ulike deler, med tre som fasademateriale. Mønehøyden planlegges til 5,9 meter, noe som overskrider kommunedelplanens grense på 5,5 meter. Bygget plasseres på samme sted som tidligere garasje, og grunnarbeid utføres av godkjent gravefirma. Garasjen har garasjeport og er i én etasje.
Produkter og materialer
Garasjeport
Garasjeport
Antall: 1
Garasjeport i garasjen
Dører
Ytterdør
🧱 Tre
Antall: 2
Dører i tre på nord- og østfasade
Ytterdører til uthus/garasje
Fasade
Utvendig trepanel
🧱 Tre
Utvendig panel tilpasses eksisterende bolig med lik farge og type
Fasadebekledning i tre som matcher eksisterende bolig
Grunnarbeid
Graving og fylling
Graving og fylling utføres av Sørensen Maskin AS, godkjent for store oppgaver
Grunnarbeid for ny garasje på samme sted som tidligere garasje
Vinduer
Fasadevindu
🧱 Tre
Antall: 2
Vinduer i tre på nord- og østfasade
Fasadevindu i uthus/garasje
Tak
Saltak og flatt tak
🧱 Takstein
Saltak og flatt tak med takstein som matcher eksisterende bolig
Taktekking med takstein, takvinkel tilpasset eksisterende bolig
Fasader
Garasje
Ukjent
- Taktype
- Saltak
- Vinduer
- 0
- Dører
- 0
- Synlige etasjer
- 1
Syd
- Materiale
- Tre
- Taktype
- Flatt tak
- Vinduer
- 0
- Dører
- 0
- Synlige etasjer
- 1
Bolig
Vest
- Materiale
- Tre
- Taktype
- Saltak
- Vinduer
- 1
- Dører
- 0
- Synlige etasjer
- 1
Garasje/Uthus
Vest
- Materiale
- Tre
- Taktype
- Saltak
- Vinduer
- 0
- Dører
- 0
- Synlige etasjer
- 1
Nord
- Materiale
- Tre
- Taktype
- Flatt tak
- Vinduer
- 1
- Dører
- 1
- Synlige etasjer
- 1
Øst
- Materiale
- Tre
- Taktype
- Valmtak
- Vinduer
- 1
- Dører
- 1
- Synlige etasjer
- 1
Enebolig
Nord
- Materiale
- Tre
- Taktype
- Saltak
- Vinduer
- 1
- Dører
- 1
- Synlige etasjer
- 2
Hendelser
21.04.2026
Tilleggsopplysninger - Gbnr 300/1789 - Hans Houens gate 2 e - nybygg garasje/uthus
17.04.2026
Tegninger - Gbnr 300/1789 - Hans Houens gate 2 e - ny bygg garasje/uthus
24.03.2026
Tilbakemelding på supplerende dokumentasjon - Gbnr 300/1789 - Hans Houens gate 2 e - ny bygg garasje/uthus
19.03.2026
Tilleggsopplysninger - gbnr 300/1789 - Hans Houens gate 2 e - ny bygg garasje/uthus
10.03.2026
Mangelbrev - Gbnr 300/1789 - Hans Houens gate 2 e - nytt bygg garasje/uthus
04.03.2026
Søknad om tillatelse til tiltak uten ansvarsrett - Gbnr 300/1789 - Hans Houens gate 2 e - nybygg/garasje