ChangeOfUse UnderBehandling Garasje

Bruksendring av kjellerbod til anneks i garasje, Dælijordet 8

📍 Dælijordet 8 , 1383 ASKER

Nøkkelinfo

Sakstype
Bruksendring
Bygningstype
Garasje
Bruksareal
23 m²
Kommune
Asker
Fylke
Akershus
Gnr / Bnr
4 / 111
Saksnummer
26/997
Fase
Under behandling

Om byggesaken

Bruksendring av eksisterende kjellerbod i en frittliggende garasje til rom for varig opphold, definert som anneks. Garasjen har to etasjer og kjellerboden får store vinduer mot vest som gir godt dagslys og utsyn. Det etableres et soverom med tilhørende wc og dusj, med vann- og avløp tilgjengelig under garasjen. Tiltaket krever dokumentasjon på oppfyllelse av tekniske krav til brannsikkerhet, dagslys, rømningsveier og bodarealkompensasjon på eiendommen. Det søkes dispensasjon for avstandskrav til nabogrense. Garasjen er oppført i tre med saltak, og kjellerbodens gulv er betong.

Produkter og materialer

Isolasjon Vegger og gulv i kjellerbod

Isolasjon for å oppnå krav til oppvarmet rom for varig opphold

Isolasjon av kjellerbod for beboelsesstandard

Ventilasjon Ventilasjon for våtrom og oppholdsrom

Ventilasjonsløsning i henhold til TEK17 for våtrom og rom for varig opphold

Ventilasjon for nytt anneks i kjellerbod

Grunnarbeid Vann- og avløpsinstallasjon

Tilgang til vann og avløp under garasje for etablering av våtrom

Grunnarbeid for tilkobling av vann og avløp til nytt våtrom

Vinduer Store fasadevinduer i kjellerbod

🧱 tre/aluminium eller tilsvarende

Store vinduer mot vest som gir godt dagslys og utsyn, i henhold til TEK17 § 13-7 og § 13-8

Vinduer som tilfredsstiller krav til dagslys og rømningsvei i kjellerbod som skal bli rom for varig opphold

Brannvern Brannsikring og rømningsvei

Brannsikring i henhold til TEK17 kapittel 11, inkludert rømningsvei via vinduer

Brannsikkerhetstiltak for bruksendring til rom for varig opphold

Tømrer Innvendige vegger og dører

🧱 tre, isolasjon

Oppgradering av kjellerbod til rom for varig opphold med isolasjon og nye innervegger, samt dør til soverom

Innvendig ombygging for å tilpasse bod til beboelsesrom

Elektro Belysning og strømuttak

Elektrisk installasjon for belysning og strøm i nytt oppholdsrom og våtrom

Elektrisk arbeid for rom for varig opphold

Bad Våtrom med wc og dusj

Antall: 1

Nytt våtrom i kjeller med tilknytning til vann og avløp under garasjen, søknad om sanitærabonnement kreves

Etablering av toalett og dusj i kjellerbod for varig opphold

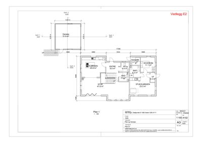
Plantegning

Enebolig 185.8 m²

Etasje 1 185.8 m²

Rom Areal Vinduer Dører
STUE 101 47.8 m² 1 1
KJØKKEN 102 23.3 m² 0 1
ENTRE 103 8.0 m² 0 2
BAD 104 4.8 m² 0 1
WC 105 4.4 m² 0 1
TEKNISK 106 3.7 m² 0 1
SOVEROM 107 11.1 m² 1 1
STUE/KJØKKEN 108 23.3 m² 2 1
VF 109 2.3 m² 0 1
BAD 110 6.3 m² 0 1

Fasader

Enebolig

Sør-Vest
Materiale
Tre
Taktype
Saltak
Vinduer
9
Dører
2
Balkonger
1
Synlige etasjer
2
Nord-Vest
Materiale
Tre
Taktype
Saltak
Høyde
6.5 m
Mønehøyde
8.2 m
Vinduer
5
Dører
1
Balkonger
1
Synlige etasjer
2

Hendelser

21.04.2026 4/111 Dælijordet 8 - Referat fra forhåndskonferanse om bruksendring
26.03.2026 4/111 Dælijordet 8 - Bestilling av forhåndskonferanse - Bruksendring av bod i garasje