ChangeOfUse Ferdigattest Garasje

Ny garasje og bruksendring veranda til soverom, Søndre vei 107

📍 Søndre vei 107 , 1397 NESØYA

Nøkkelinfo

Sakstype
Bruksendring
Bygningstype
Garasje
Bruksareal
48 m²
Boenheter
1
Kommune
Asker
Fylke
Akershus
Gnr / Bnr
40 / 1718
Saksnummer
20/4189
Fase
Ferdigattest

Om byggesaken

Ny frittstående garasje på ca. 48 m² BRA med sportsbod på ca. 10 m² erstatter eksisterende carport på eiendommen. I tillegg er veranda i 2. etasje innebygd og omgjort til et nytt soverom med et bruksareal på 11-13 m². Garasjen har gesimshøyde på 3 meter og er plassert innenfor regulert byggegrense. Badstue og overbygd terrasse som opprinnelig var planlagt er trukket fra søknaden på grunn av dispensasjonsbehov. Bygget er utført i tre med saltak og flatt tak på eksisterende bolig. Prosjektet er ferdigstilt, men ferdigattest er under behandling.

Produkter og materialer

Gulv Innvendig gulv i soverom

Gulvbelegg eller parkett i innredet soverom

Innvendig gulvbehandling i soverom

Vinduer Fasadevindu

Vinduer i eksisterende bolig og ny garasje tilpasset fasade

Vinduer til ny garasje og bruksendret veranda

Maling Innvendig og utvendig maling

Maling av ny garasje og innredet soverom

Overflatebehandling innvendig og utvendig

Elektro Elektrisk installasjon i garasje og soverom

Elektrisk anlegg for ny garasje og innredet soverom

Elektroinstallasjon for belysning og strøm

Garasjeport Garasjeport til ny garasje

Antall: 1

Garasjeport til ny garasje på ca. 48 m²

Dører Ytterdør og dører til sportsbod

Dører til ny garasje og sportsbod

Ytterdører til garasje og sportsbod

Tømrer Innbygging veranda til soverom

🧱 Tre

Antall: 1

Innbygging av veranda i 2. etasje til soverom, ca. 11-13 m²

Tømrerarbeid for bruksendring veranda til soverom

Tak Saltak og flatt tak

Saltak på garasje, flatt tak på eksisterende bolig

Taktekking for ny garasje og eksisterende bolig

VVS Ventilasjon og varme i soverom

Ventilasjon og varmeinstallasjon i innredet soverom

VVS-installasjon for nytt soverom

Fasade Tre kledning

🧱 Tre

Tre kledning på ny garasje og eksisterende bolig

Tre kledning for ny garasje og tilpasning til eksisterende bolig

Grunnarbeid Fundamentering for ny garasje

Antall: 1

Grunnarbeid og fundamentering for ny garasje

Grunnarbeid for ny garasje på eiendommen

Betong Fundament og plate

🧱 Betong

Antall: 1

Betongplate og fundament for garasje

Betongarbeid for ny garasje

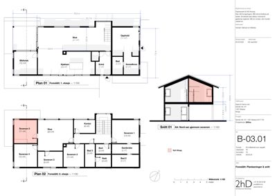
Plantegning

Enebolig 220.5 m²

Etasje 1 120.5 m²

Rom Areal Vinduer Dører
Terrasse 101 26.0 m² 0 1
Bibliotek 102 12.0 m² 1 1
Stue 103 29.0 m² 3 2
Kjøkken 104 29.0 m² 1 1
Entré 105 7.0 m² 0 2
Opphold 106 17.0 m² 1 1
Bad 107 4.0 m² 0 1
Sovealkove 108 6.0 m² 0 1

Etasje 2 100.0 m²

Rom Areal Vinduer Dører
Veranda 201 16.0 m² 1 1
Stue 202 23.0 m² 2 2
Kontor 203 6.0 m² 1 1
Soverom 1 204 14.0 m² 1 1
Soverom 4 205 12.0 m² 1 1
Soverom 3 206 9.0 m² 1 1
Soverom 2 207 11.0 m² 1 1
Bad 3 208 5.0 m² 0 1
Vask 209 4.0 m² 0 1
Bod 210 3.0 m² 0 1
Garderobe 211 6.0 m² 0 1
Bad 2 212 8.0 m² 0 1

Fasader

Eksisterende

Sør
Materiale
Tre
Taktype
Flatt tak
Vinduer
8
Dører
1
Synlige etasjer
2
Vest
Materiale
Tre
Taktype
Saltak
Vinduer
5
Dører
1
Balkonger
1
Synlige etasjer
2
Nord
Materiale
Tre
Taktype
Flatt tak
Vinduer
12
Dører
1
Balkonger
1
Synlige etasjer
2
Øst
Materiale
Tre
Taktype
Saltak
Vinduer
5
Dører
1
Synlige etasjer
2

Hendelser

08.04.2026 40/1718 Søndre vei 107 - Søknad om ferdigattest ferdigattest
27.03.2026 40/1718 Søndre vei 107 - Svar på spørsmål om ferdigattest ferdigattest
25.03.2026 40/1718 Søndre vei 107 - Bruksendring, nybygg garasje og badstue - Manglende ferdigattest eller midlertidig brukstillatelse ferdigattest
25.03.2026 40/1718 Søndre vei 107 - Svar på brev av 250326
19.08.2020 40/1718 Spørsmål om søknaden kan deles opp - Bruksendring, nybygg garasje og badstue søknad
24.06.2020 40/1718 Tillatelse - Bruksendring, og ny garasje
22.06.2020 40/1718 Vi trenger mer dokumentasjon - søknad er bl.a avhengig av dispensasjon - Bruksendring, nybygg garasje og badstue dispensasjon
08.06.2020 40/1718 Kvitteringsbrev - Bruksendring, nybygg garasje og badstue
08.06.2020 40/1718 Søknad om bruksendring, nybygg garasje og badstue søknad