ChangeOfUse Rammetillatelse Garasje

Bruksendring og fasadeendring med pumpestasjon på Vendla 81

📍 Vendla 81 , 1397 NESØYA

Nøkkelinfo

Sakstype
Bruksendring
Bygningstype
Garasje
Bruksareal
10 m²
Boenheter
1
Kommune
Asker
Fylke
Akershus
Gnr / Bnr
40 / 1831
Saksnummer
25/2603
Fase
Rammetillatelse

Om byggesaken

Bruksendring av en bod i kjelleren på 9,7 m² til soverom med nytt vindu som oppfyller dagslys- og rømningskrav. Det utføres terrengendringer for å fjerne eksisterende lysgrav og sikre tilfredsstillende lysforhold, med oppbygging av forstøtningsmurer og skråning med helning 1:1,5. Det etableres en pumpestasjon under terreng uten synlig lokk, koblet til privat avløpsledning. Fasadeendringer inkluderer nye større vinduer i kjellerstue og soverom for å oppfylle krav til lys og utsyn. Trappen mellom kjeller og 1. etasje snus for bedre løsning. Tiltaket omfatter også mindre terrengjusteringer rundt bygget.

Arbeidsomfang

- Innvendig ombygging av kjellerstue: Innsetting av større vindusåpninger for å oppfylle krav om lys og utsyn (TEK 17). - Innvendig ombygging av kjellersoverom: Innsetting av nytt vindu i eksisterende soverom. - Bruksendring av bod: Ombygging av bod i kjeller (sør-øst) til soverom med innsetting av nytt vindu. - Trappeløsning: Omlegging av trapp mellom kjeller og 1. etasje for å forbedre romløsningen. - Skråning i kjellervegg: Etablering av skråning (1:1,5) i vegg for å skape plass for nye vinduer i kjeller. - Fasadeendring: Etablering av pumpestasjon utenfor gavlveggen mot sør-vest.

Produkter og materialer

Trapper Innvendig trapp mellom kjeller og 1. etasje

Antall: 1

Eksisterende trapp snus for bedre løsning i underetasjen

Endring av trappeløp for bedre funksjonalitet

Grunnarbeid Utgraving og planering for pumpestasjon og terrengendringer

Utgraving for plassering av pumpestasjon og terrengjusteringer rundt kjeller

Grunnarbeid for etablering av pumpestasjon og terrengjustering

Fasade Fasadeendring med nye vinduer

🧱 Betong og tre fasade med flatt og saltak

Endring av fasade med nye vinduer i kjeller, fasade nord, sør og vest

Fasadeendring for å tilpasse nye vinduer og terrengendringer

Terrasse Terrengendringer med forstøtningsmurer og skråning

🧱 Mur for forstøtningsmurer, jord og planert terreng

Terreng støttet opp med mur på hver side av vindu, skråning med helning 1:1,5 for å fjerne lysgrav

Terrengjustering for å sikre dagslys og utsyn til kjellerrom

Vinduer Kjellervindu for soverom

Antall: 1

Nytt vindu 1,5 m x 1,0 m (BxH), glassareal 1,04 m², oppfyller dagslys- og rømningskrav med fri åpning minst 0,5 m bred og 0,6 m høy, trinn montert under vindu for maks 1 m høyde til karm

Nytt vindu i kjellerbod som skal bli soverom for å sikre dagslys og rømningsvei

Pumpestasjon Avløpspumpestasjon under terreng

Antall: 1

Pumpestasjon plassert under terreng, koblet til privat avløpsledning, lokk ikke synlig

Pumpestasjon for å pumpe avløp fra kjeller til privat stikkledning

Vinduer Større vinduer i kjellerstue og eksisterende soverom

Antall: 2

Nye større vinduer for å oppfylle krav til lys og utsyn i kjellerstue (TV-rom) og eksisterende soverom

Bytte ut eksisterende vinduer med større for bedre lysforhold

Tømrer Innvendig påforing av kjellervegger

🧱 Trelast og isolasjon

Innvendig påforing av kjellervegger for å oppnå romhøyde og isolasjon

Oppgradering av kjellervegger i forbindelse med bruksendring

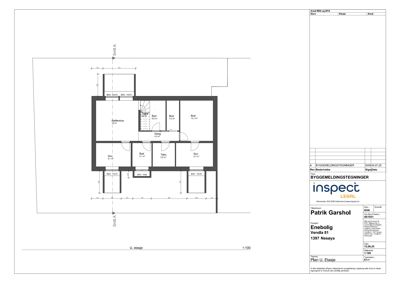
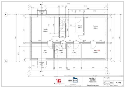
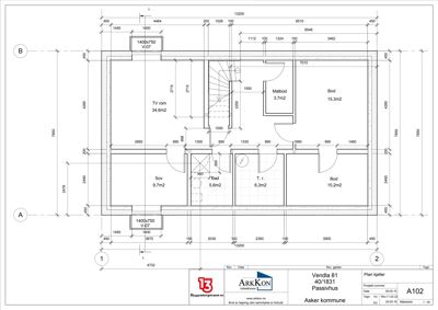
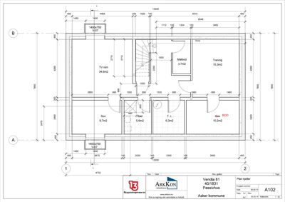
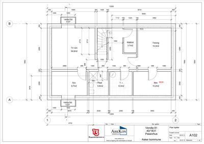
Plantegning

Passivhus 360.3 m²

Etasje 0 188.7 m²

Rom Areal Vinduer Dører
TV rom 001 34.6 m² 0 1
Sov 002 9.7 m² 0 1
Bad 003 5.6 m² 0 2
T. r. 004 6.3 m² 0 2
BOD 005 10.2 m² 0 1
Trening 006 15.3 m² 0 1
Matbod 007 3.7 m² 0 1
Bod 008 4.2 m² 0 1
Bod 009 14.7 m² 0 1

Etasje 1 85.8 m²

Rom Areal Vinduer Dører
Stue 101 29.5 m² 1 1
Kjøkken 102 33.5 m² 3 1
Gjesterom 103 8.7 m² 1 1
Vaskerom 104 8.2 m² 0 2
Bad 105 5.3 m² 0 1
Sov 106 8.2 m² 1 1

Etasje 2 85.8 m²

Rom Areal Vinduer Dører
Sov 201 16.3 m² 1 1
Gang 202 16.8 m² 0 2
Sov 203 18.7 m² 1 1
Sov 204 13.3 m² 1 1
W. i C. 205 5.0 m² 0 1
Bad 206 10.4 m² 0 1
Vask 207 4.9 m² 0 1

Fasader

Enebolig

Nord
Materiale
Betong
Taktype
Flatt tak
Høyde
4.7 m
Mønehøyde
7.0 m
Vinduer
5
Dører
1
Synlige etasjer
2
Sør
Materiale
Betong
Taktype
Flatt tak
Høyde
4.7 m
Mønehøyde
9.3 m
Vinduer
5
Dører
1
Synlige etasjer
2
Vest
Materiale
Tre
Taktype
Saltak
Høyde
4.8 m
Mønehøyde
6.0 m
Vinduer
6
Dører
2
Synlige etasjer
2
Ukjent
Materiale
Tre
Taktype
Valmtak
Vinduer
1
Dører
0
Synlige etasjer
1

Hendelser

10.04.2026 40/1831 Vendla 81 - E-postkorrespondanse avklaringsspørsmål
08.04.2026 40/1831 Vendla 81 - Avklaringsspørsmål - plassering av pumpestasjon
07.11.2025 40/1831 Vendla 81 - Tillatelse til tiltak i ett trinn for bruksendring byggetillatelse
06.11.2025 40/1831 Vendla 81 - Nye plantegninger
30.10.2025 40/1831 Vendla 81 - Supplering av søknad søknad
28.10.2025 40/1831 Vendla 81 - Vedr. mottatt brev - Ufullstendig søknad søknad
01.10.2025 40/1831 Vendla 81 - Ufullstendig søknad bruksendring, fasadeendring, etablering av pumpestasjon søknad
20.08.2025 40/1831 Vendla 81 - Supplering av søknad søknad
13.08.2025 40/1831 Vendla 81 - Bekreftelse på at vi har mottatt din søknad søknad
12.08.2025 40/1831 Vendla 81 - Søknad om tillatelse i ett trinn - Bruksendring av bod til soverom, fasadeendring og etablering av pumpestasjon søknad