ChangeOfUse Ferdigattest Garasje

Bruksendring og utvidelse av parkeringskjeller i Vestre Billingstad felt #D1

📍 Vestre Billingstad felt #D1

Nøkkelinfo

Sakstype
Bruksendring
Bygningstype
Garasje
Bruksareal
8,880 m²
Kommune
Asker
Fylke
Akershus
Gnr / Bnr
32 / 298
Saksnummer
25/3591
Fase
Ferdigattest

Om byggesaken

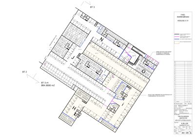
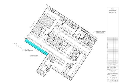
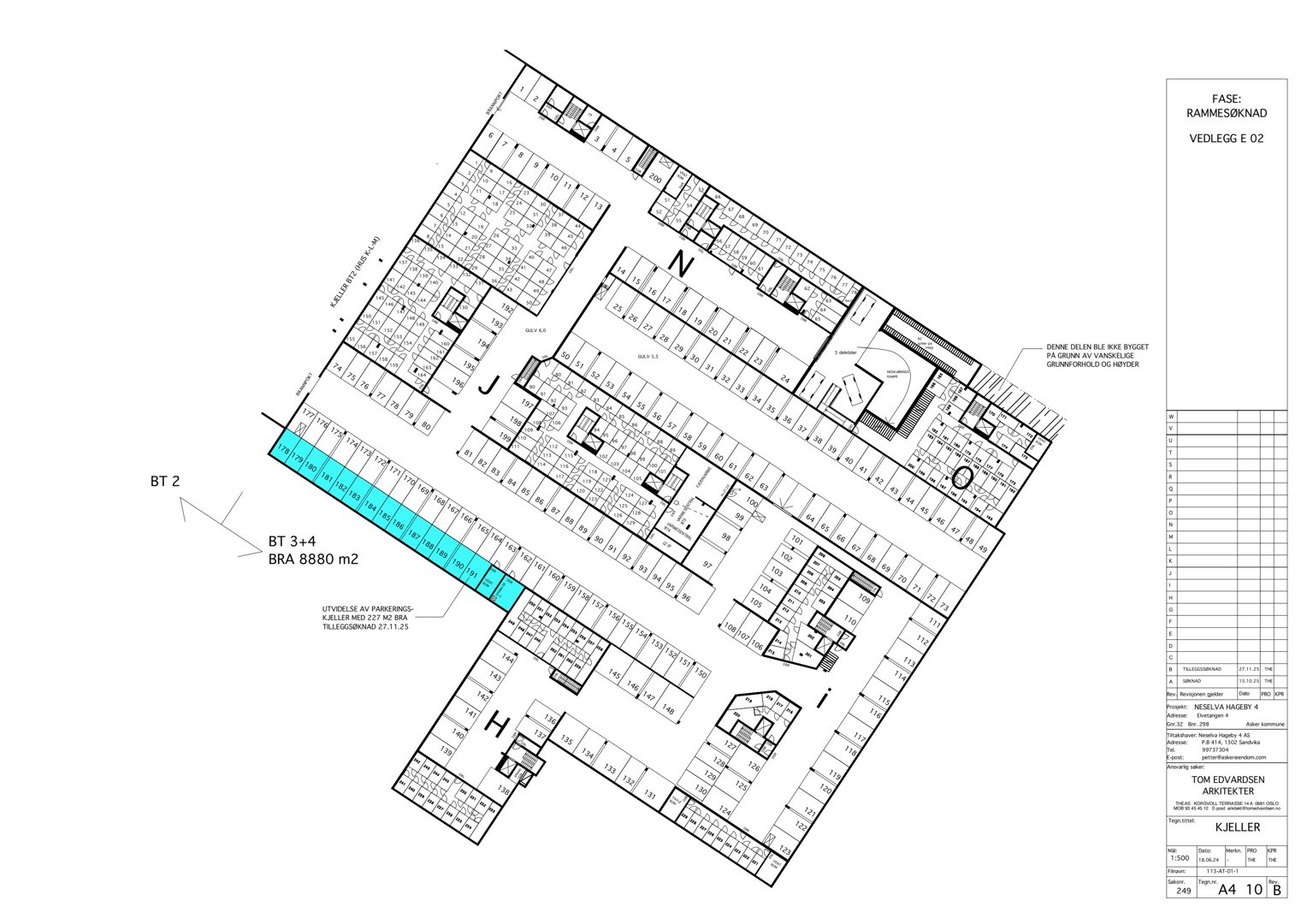
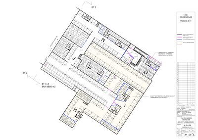
Prosjektet omfatter bruksendring og utvidelse av en eksisterende parkeringskjeller i Vestre Billingstad felt #D1 med totalt 8880 m² BRA. Kjelleren er under boligblokker i byggetrinn 3 og 4, og inkluderer parkeringsplasser for biler, sykkelparkering, boder og tekniske rom. Utvidelsen er på 227 m² BRA, og bruksendringen gjelder ca. 3790 m² av kjellerarealet. Parkeringskjelleren har ca. 341 bilplasser inkludert HC-plasser og bilpoolplasser, samt omfattende sykkelparkering med overdekkede plasser og sportsboder. Bygget er utført med plasstøpte betongkonstruksjoner og pelefundamentering, og har automatiske dører for sykkelparkering. Prosjektet inkluderer også tilpasninger til reguleringsplanens parkeringskrav og dispensasjonssøknad for ekstra korttidsplasser på terreng. Alle nødvendige ansvarsrettserklæringer og kontrollplaner er innsendt og godkjent, og prosjektet er i ferd med å få ferdigattest.

Produkter og materialer

Stål Pelearbeider

Pelearbeider for fundamentering av kjeller

Bæresystem med peler for kjeller

Innmåling og utstikking Oppmålingsteknisk prosjektering

Oppmåling og utstikking av tiltak

Nøyaktig oppmåling og utstikking av byggeplass

Vinduer Automatiske dører

Automatiske dører med åpningsknapp for innendørs sykkelparkering

Automatiske dører i parkeringskjeller for sykkelparkering

Ventilasjon Ventilasjonsanlegg

Ventilasjonsanlegg i parkeringskjeller

Ventilasjon for parkeringskjeller

Betong Plasstøpte betongkonstruksjoner

Plasstøpte betongkonstruksjoner for parkeringskjeller og bærende konstruksjoner

Betongkonstruksjoner for kjeller og parkeringsanlegg

Tømrer Boder og innredning

Boder for lagring i parkeringskjeller

Innredning av boder i kjeller

Grunnarbeid Veg- og grunnarbeider

Grunnarbeider for parkeringskjeller

Grunnarbeider og grunnforberedelser

Garasjeport Automatiske garasjeporter

Antall: 2

Automatiske garasjeporter med fjernkontroll

Garasjeporter for innkjøring til parkeringskjeller

Elektro Varmesentral og sprinkleranlegg

Fjernvarme varmesentral og sprinkleranlegg i kjeller

Tekniske installasjoner for varme og brannsikring

Maling Innvendig maling

Innvendig maling av parkeringskjeller og boder

Overflatebehandling av innvendige flater

Parkeringsplasser Sykkelparkering

Antall: 214

Minst 214 sykkelplasser, inkludert overdekket og sportsboder

Sykkelparkering for beboere og gjester

Parkeringsplasser Bilplasser og HC-plasser

Antall: 341

Ca. 341 bilplasser inkludert 20 HC-plasser og 9 bilpoolplasser

Biloppstillingsplasser i parkeringskjeller

Plantegning

Parkeringsplan 0.0 m²

Etasje 0 0.0 m²

Rom Areal Vinduer Dører
Parkeringsplass 001 0.0 m² 0 0
Bod 002 0.0 m² 0 0
Teknisk rom 003 0.0 m² 0 0
Vaktmester 004 0.0 m² 0 0
Teknisk rom 005 0.0 m² 0 0

Parkeringskjeller 8,880.0 m²

Etasje 0 8,880.0 m²

Rom Areal Vinduer Dører
Parkeringskjeller BT 3+4 8,880.0 m² 0 0

Hendelser

13.04.2026 32/298 Vestre Billingstad felt #D1 - Gjennomføringsplan
09.04.2026 32/298 Vestre Billingstad felt #D1 - Ufullstendig søknad om ferdigattest
08.04.2026 32/298 Vestre Billingstad felt #D1 - Tilbakemelding på ufullstendig søknad om ferdigattest ferdigattest
25.03.2026 32/298 Vestre Billingstad felt #D1 - Søknad om ferdigattest ferdigattest
23.03.2026 32/298 Vestre Billingstad felt #D1 - Igangsettingstillatelse 1 - hele tiltaket igangsettingstillatelse
18.02.2026 32/298 Vestre Billingstad felt #D1 - Parkeringsplan
22.01.2026 32/298 Vestre Billingstad felt #D1 - Spørsmål om når igangsettingstillatelse kan forventes igangsettingstillatelse
30.12.2025 32/297 - Søknad om igangsettingstillatelse igangsettingstillatelse
17.12.2025 32/298 Vestre Billingstad felt #D1 - E-post til søker vedr. IG og ferdigattest ferdigattest
10.12.2025 32/298 Vestre Billingstad felt #D1 - Parkeringskjeller - Rammetillatelse for utvidelse under bygg J (BT3) og bruksendring areal under bygg H, I, O (BT4) rammetillatelse
27.11.2025 32/298 Vestre Billingstad felt #D1 - Supplering av søknad søknad
27.11.2025 32/298 Vestre Billingstad felt #D1 - Redegjørelse endring del av parkeringskjeller #D1 under bygg J
20.10.2025 32/298 m.fl. - Søknad om rammetillatelse - Bruksendring fra kjeller til garasje rammetillatelse
20.10.2025 32/298 - Informasjon om endring av gbnr. og videre kontakt