NewConstruction Avslatt Garasje

Ny garasje med kjeller i Aanon Biesvei 1, Arendal

📍 Aanon Biesvei 1 , 4815 SALTRØD

Nøkkelinfo

Sakstype
Nybygg
Bygningstype
Garasje
Bruksareal
39 m²
Kommune
Arendal
Fylke
Agder
Gnr / Bnr
45 / 121
Saksnummer
2025/22672
Fase
Avslått

Om byggesaken

Ny frittliggende garasje med saltak i tre på totalt 20,58 m² BRA over to etasjer, inkludert en kjeller på 18,46 m² som fungerer som bod. Garasjen har to inngangsdører og flere vinduer fordelt på fasadene, med gesimshøyde på 4,75 m og mønehøyde på 6,45 m. Bygget skal brukes til parkering av bil og lagring. Garasjen plasseres på eiendommen i tråd med reguleringsplanen, men søknaden er avvist på grunn av mangelfull dokumentasjon og ufullstendige opplysninger om utnyttelsesgrad og nabovarsling.

Produkter og materialer

Tak Saltak

🧱 Tre, antatt taktekking ikke spesifisert

Saltak med gesimshøyde 4,75 m og mønehøyde 6,45 m

Saltakskonstruksjon for garasje

Maling Utvendig og innvendig maling

Maling av trepanel og innvendige flater

Grunnarbeid Fundamentering og grunnmur

Kjeller med bod på 18,46 m² krever fundamentering og grunnmur

Grunnarbeid for kjeller under garasje

Betong Kjellergulv og fundament

🧱 Betong

Betonggulv og fundament for kjeller

Betongarbeid for kjeller og fundament

Elektro El-installasjon

Elektrisk installasjon for belysning og strøm i garasje og kjeller

Vinduer Fasadevindu

Antall: 6

Vinduer fordelt på fasader: Nord (1), Sør (2), Vest (1), Ukjent (2)

Fasadevinduer for naturlig lys i garasje og kjeller

Tømrer Bærekonstruksjon og innvendig arbeid

🧱 Tre

Tømrerarbeid for bæring, vegger og tak

Tømrerarbeid for garasje og kjeller

Isolasjon Vegger og tak

Isolasjon for vegger og tak i garasje og kjeller

Fasade Trepanel

🧱 Tre

Trepanel på alle fasader

Ytterkledning i tre for garasjens fasader

Dører Ytterdør

Antall: 2

Dører på fasade Nord (1) og Vest (1)

Inngangsdører til garasje og kjeller

Plantegning

Garasje 20.6 m²

Etasje 1 20.6 m²

Rom Areal Vinduer Dører
Garasje 20.6 m² 0 1

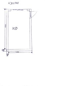
Kjellere 18.5 m²

Etasje 0 18.5 m²

Rom Areal Vinduer Dører
BOD 18.5 m² 0 0

Fasader

Garasje

Nord
Materiale
Tre
Taktype
Saltak
Høyde
4.8 m
Mønehøyde
6.5 m
Vinduer
1
Dører
1
Synlige etasjer
2
Sør
Materiale
Tre
Taktype
Saltak
Høyde
4.8 m
Mønehøyde
6.5 m
Vinduer
2
Dører
0
Synlige etasjer
2
Vest
Materiale
Tre
Taktype
Saltak
Høyde
4.8 m
Mønehøyde
6.5 m
Vinduer
1
Dører
1
Synlige etasjer
2
Ukjent
Materiale
Tre
Taktype
Saltak
Vinduer
2
Dører
0
Synlige etasjer
1

Enebolig

Vest
Materiale
Tre
Taktype
Saltak
Høyde
4.8 m
Vinduer
2
Dører
1
Synlige etasjer
2
Øst
Materiale
Tre
Taktype
Saltak
Høyde
4.8 m
Vinduer
2
Dører
1
Synlige etasjer
2

Hendelser

13.04.2026 Søknaden avvises - 45/121/0/0 - Aanon Biesvei 1 - oppføring av garsje med kjeller
13.03.2026 Brev om mangelfull søknad - 45/121 - Søknad om tillatelse til tiltak
12.03.2026 45/121 - Søknad om tillatelse til tiltak
05.09.2025 Søknaden avvises - 45/121 - Søknad om oppføring av garasje med kjeller
15.08.2025 45/121 - Søknad om oppføring av garasje med kjeller