NewConstruction Ferdigattest Garasje

Ny garasje med loftsrom på Åsan grendefelt 47

📍 Åsan grendefelt 47 , 4748 RYSSTAD

Nøkkelinfo

Sakstype
Nybygg
Bygningstype
Garasje
Bruksareal
94 m²
Kommune
Valle
Fylke
Agder
Gnr / Bnr
68 / 489
Saksnummer
2025/184
Fase
Ferdigattest

Om byggesaken

Ny frittstående garasje på 70 m² bebygd areal og 94 m² bruksareal oppføres på Åsan grendefelt 47. Garasjen har sort takstein og stående mørk brun kledning, med saltak og økt takvinkel for bedre utnyttelse av loftsrom til lagerplass. Bygget plasseres foran en skjæring med terrengfylling mot bakvegg og sørvegg. Garasjen er prosjektert med hensyn til terrengsikring og oppfyller krav i TEK17. Tiltaket har fått dispensasjon for takvinkel og er plassert i tiltaksklasse 1.

Produkter og materialer

Dører Garasjeport og personaldør

Garasjeport og dør for adkomst

Dører for garasje og adkomst

Grunnarbeid Terrengarbeid og støttemur

Terrengfylling mot bakvegg og sørvegg, støttemur iht. situasjonskart

Terrengarbeid med fylling og støttemur for sikring av skjæring

Fasade Stående kledning

🧱 Mørk brun trepanel

Antall: 1

Stående kledning i mørk brun farge

Fasade med stående mørk brun kledning

Tømrer Bærekonstruksjon og loftsrom

🧱 Tre

Bærekonstruksjon for garasje med loftsrom

Tømrerarbeid for konstruksjon og loftsrom

Isolasjon Isolasjon for vegger og tak

Isolasjon iht. TEK17 krav

Isolasjon for vegger og tak i garasje

Tak Saltak med takstein

🧱 Sort takstein

Antall: 1

Saltak med økt takvinkel for loftsrom, sort takstein

Tak med saltak og sort takstein for garasje med loftsrom

Elektro Elektrisk anlegg

Elektrisk installasjon for belysning og strøm

Elektroinstallasjon i garasje

Vinduer Loftsvindu

Vinduer i loftsrom for lysinnslipp

Vinduer for loftsrom i garasje

Maling Utvendig maling

Maling av kledning i mørk brun farge

Overflatebehandling av utvendig kledning

Mur Grunnmur

Grunnmur iht. vedlagte tegninger

Grunnmur for garasje

Plantegning

Grunnmurs 0.0 m²

Etasje 0 0.0 m²

Rom Areal Vinduer Dører

Fasader

Hovedbygg

Øst
Materiale
Mur
Vinduer
0
Dører
0
Synlige etasjer
1
Sør
Materiale
Betong
Taktype
Saltak
Høyde
2.5 m
Mønehøyde
10.0 m
Vinduer
1
Dører
0
Synlige etasjer
1
Vest
Vinduer
0
Dører
0
Synlige etasjer
0

Enebolig

Nord
Materiale
Mur
Taktype
Saltak
Takmat.
Takstein
Høyde
4.5 m
Mønehøyde
6.8 m
Vinduer
3
Dører
2
Synlige etasjer
1

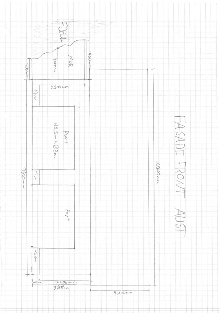
Uthus

Aust
Materiale
Mur
Taktype
Flatt tak
Takmat.
Takstein sort
Høyde
2.8 m
Vinduer
0
Dører
2
Synlige etasjer
1

Hendelser

15.04.2026 Ferdigattest - Søknad om ferdigattest for oppføring av garasje - gbnr 68/489 - Åsan grendefelt 47
09.04.2026 Søknad om ferdigattest for garasje 68/489 - Åsan grendefelt 47
14.05.2025 Byggjeløyve - garasje - gnr. 68, bnr. 489 - Åsan grendefelt 47
14.05.2025 Melding om vedtak - Søknad om dispensasjon for oppføring av garasje på gnr. 68, bnr. 489 - Åsan grendefelt 47
06.05.2025 Orientering om sak - Søknad om dispensasjon for oppføring av garasje, 68/489, Åsan grendefelt 47
28.04.2025 Garasje - Åsan grendefelt
25.04.2025 Oppdatert tegning med mur
23.04.2025 Korrespondanse vedr. garasje - Åsan grendefelt
23.04.2025 Garasje - Åsan grendefelt