Photo
Fotografier av naturformasjoner (fjell og kystlinje) med tilhørende figurer og tekster.
1 / 42
NewConstruction
UnderBehandling
Garasje
Ny garasje, uthus og anneks på eiendom 24/1, Dyrøy
Nøkkelinfo
- Sakstype
- Nybygg
- Bygningstype
- Garasje
- Kommune
- Dyrøy
- Fylke
- Troms - Romsa - Tromssa
- Gnr / Bnr
- 24 / 1
- Saksnummer
- 2026/215
- Fase
- Under behandling
Om byggesaken
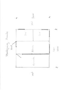
Ny garasje, uthus og anneks oppføres på eiendom 24/1 i Dyrøy kommune. Garasjen har saltak og inkluderer garasjeport, bygget i tre med to etasjer. Uthuset/lagerbygningen har to etasjer med flere vinduer og dører, også i tre. Annekset bygges med valmtak og tre som fasademateriale, med ett vindu og en dør. Byggene plasseres i et område regulert til LNFR, nær sjøen, med dispensasjon fra byggegrense og arealformål. Byggene skal brukes til lagring av utstyr, båter og som ekstra soveplasser. Området har adkomst via sjøen, og tiltakene er tilpasset terreng og eksisterende fritidsbruk uten behov for vann og avløp. Geoteknisk vurdering er utført for å sikre stabilitet mot skredfare.
Produkter og materialer
Grunnarbeid
Fundamentering og grunnmur
Geoteknisk vurdering utført for grunnforhold og skredsikring
Grunnarbeid med fundamentering tilpasset terreng og geoteknisk rapport
Tak
Saltak og valmtak
Garasje og uthus med saltak, anneks med valmtak
Taktekking for garasje, uthus og anneks med saltak og valmtak
Vinduer
Fasadevindu
Antall: 14
Vinduer i garasje, uthus og anneks for lys og ventilasjon
Maling
Utvendig maling
Maling av trefasader for beskyttelse og estetikk
Fasade
Trepanel
🧱 Tre
Tre som fasademateriale på garasje, uthus og anneks
Trepanel til fasader på alle nye bygg
Tømrer
Bygging av bærende konstruksjoner
🧱 Tre
Tømrerarbeid for oppføring av trebygninger
Trapper
Innvendig trapp i garasje
Antall: 1
Innvendig trapp i garasje for tilgang til andre etasje
Dører
Ytterdører og garasjeport
Antall: 6
Garasjeport i garasjebygg, ytterdører i uthus og anneks
Dører for adkomst til garasje, uthus og anneks
Fasader
Lagerbygning
Øst
- Materiale
- Tre
- Vinduer
- 2
- Dører
- 0
- Synlige etasjer
- 2
Vest
- Materiale
- Tre
- Vinduer
- 2
- Dører
- 0
- Synlige etasjer
- 1
Nord
- Materiale
- Tre
- Taktype
- Saltak
- Høyde
- 2.6 m
- Mønehøyde
- 4.5 m
- Vinduer
- 1
- Dører
- 1
- Synlige etasjer
- 1
Sør
- Materiale
- Tre
- Taktype
- Saltak
- Høyde
- 2.7 m
- Mønehøyde
- 4.5 m
- Vinduer
- 1
- Dører
- 1
- Synlige etasjer
- 1
Nøtt Amme
Nord
- Materiale
- Tre
- Taktype
- Valmtak
- Vinduer
- 1
- Dører
- 1
- Synlige etasjer
- 1
Uthus
Vest
- Vinduer
- 3
- Dører
- 1
- Synlige etasjer
- 1
Hendelser
19.04.2026
24/1 - Svar på søknad om tillatelse til tiltak
10.04.2026
Ingen merknader - dispensasjon - Dyrøy 24/1 - bygging av anneks og uthus
28.03.2026
Uttalelse - Bygging av anneks og uthus - gbnr. 24/1 - Dyrøy kommune
17.03.2026
24/1 - Høring vedrørende bygging av anneks og uthus
06.03.2026
24/1 Søknad om dispensasjon
17.02.2026
24/1 Foreløpig svar på søknad om tillatelse til tiltak - nybygg garasje
09.02.2026
24/1 Søknad om tillatelse til tiltak - rammetillatelse og ett-trinns søknadsbehandling - nybygg garasje, uthus, aneks