NewConstruction Rammetillatelse Garasje

Ny brakkerigg i to etasjer på Eternitveien 75, Slemmestad

📍 Eternitveien 75 , 3470 SLEMMESTAD

Nøkkelinfo

Sakstype
Nybygg
Bygningstype
Garasje
Bruksareal
447 m²
Kommune
Asker
Fylke
Akershus
Gnr / Bnr
68 / 466
Saksnummer
25/2998
Fase
Rammetillatelse

Om byggesaken

Ny midlertidig brakkerigg på 447 m² BRA og 230 m² BYA oppføres i to etasjer på Eternitveien 75 i Slemmestad. Bygget består av prefabrikkerte moduler med toaletter, garderober, lunsjområde og kjøkken, og har flatt tretak. Brakkeriggen er planlagt stående i inntil 10 år og er tilpasset anleggsområdet til VEAS renseanlegg. Bygget har en maksimal høyde på 6,6 meter over terreng og er plassert innenfor regulert byggegrense med en utnyttelsesgrad på ca. 21 %. Bygget oppfyller minstekrav til energieffektivitet for midlertidige bygg, men har dispensasjon fra krav til permanente bygg. Det er ikke krav om heis da bygget er uegnet for personer med funksjonsnedsettelse. Infrastruktur for vann og avløp er etablert, og området er delvis inngjerdet. Brakkeriggen skal fjernes etter anleggsperioden eller etter 10 år.

Arbeidsomfang

- Oppsetting av prefabrikkert brakkerigg i to etasjer på anleggsområdet til VEAS. - Brakkeriggen skal inneholde toaletter, garderober, pauserom og kjøkken for arbeidsmiljøet. - Tiltaket er tidsbegrenset til maksimalt 10 år eller til anleggsfasen er over. - Oppføring av modulene i henhold til minstekrav i TEK17 (dispensasjon fra vanlige energikrav). - Tilpasning av grunnarbeider for plassering av riggen.

Produkter og materialer

Maling Utvendig og innvendig maling

Overflatebehandling av trefasader og innvendige flater for beskyttelse og estetikk

Maling og overflatebehandling for brakkerigg

Fasade Fasade i tre med flatt tak

🧱 Tre

Fasader i to etasjer med flatt tak, totalt 32 vinduer fordelt på fasader, 2 dører og 2 balkonger

Fasadeelementer i tre med flatt tak for prefabrikkerte moduler

VVS Sanitærinstallasjoner

Toaletter og garderober med tilknytning til eksisterende vann- og avløpsnett

VVS-installasjoner for sanitærfunksjoner i brakkerigg

Tømrer Prefabrikkerte moduler

🧱 Tre og isolasjon

Prefabrikkerte moduler levert av Moelven ByggModul AS, inkludert arkitektur og konstruksjonssikkerhet

Moduler for brakkerigg med toaletter, garderober, kjøkken og lunsjområde

Grunnarbeid Fundamentering

Fundamentering tilpasset prefabrikkerte moduler, ansvarlig AF Decom AS

Grunnarbeid og fundamentering for brakkerigg

Dører Ytterdører i tre

🧱 Tre

Antall: 2

To ytterdører på fasade Vest og Øst

Ytterdører for adkomst til brakkerigg

Elektro Elektriske installasjoner

Elektriske installasjoner for belysning, strøm og tekniske behov i brakkerigg

Elektroarbeid for brakkerigg

Vinduer Fasadevindu i tre

🧱 Tre

Antall: 32

Vinduer fordelt på fasader: Nord 16, Sør 12, Vest 2, Øst 2

Vinduer for naturlig lys og ventilasjon i brakkerigg

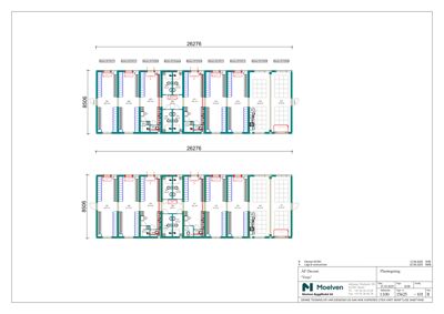
Plantegning

Enebolig 865.6 m²

Etasje 1 432.8 m²

Rom Areal Vinduer Dører
Stue 101 20.7 m² 1 1
Sove 102 21.3 m² 1 1
Sove 103 18.1 m² 1 1
Bad 104 3.8 m² 0 1
Vaskerom 105 1.6 m² 0 1
Kjokken 106 3.8 m² 0 1
Gang 107 4.9 m² 0 2
Gang 108 18.1 m² 0 1
Gang 109 21.3 m² 0 1
Gang 110 21.3 m² 0 1
Gang 111 22.4 m² 0 1
Gang 112 21.2 m² 0 1
Gang 113 12.2 m² 0 1
Gang 114 1.6 m² 0 1
Gang 115 1.6 m² 0 1
Gang 116 1.6 m² 0 1
Gang 117 1.6 m² 0 1

Etasje 2 432.8 m²

Rom Areal Vinduer Dører
Stue 201 20.7 m² 1 1
Sove 202 21.3 m² 1 1
Sove 203 18.1 m² 1 1
Bad 204 3.8 m² 0 1
Vaskerom 205 1.6 m² 0 1
Kjokken 206 3.8 m² 0 1
Gang 207 4.9 m² 0 2
Gang 208 18.1 m² 0 1
Gang 209 21.3 m² 0 1
Gang 210 21.3 m² 0 1
Gang 211 22.4 m² 0 1
Gang 212 21.2 m² 0 1
Gang 213 12.2 m² 0 1
Gang 214 1.6 m² 0 1
Gang 215 1.6 m² 0 1
Gang 216 1.6 m² 0 1
Gang 217 1.6 m² 0 1

Fasader

Veas

Nord
Materiale
Tre
Taktype
Flatt tak
Vinduer
16
Dører
0
Synlige etasjer
2
Sør
Materiale
Tre
Taktype
Flatt tak
Vinduer
12
Dører
0
Synlige etasjer
2
Vest
Materiale
Tre
Taktype
Flatt tak
Vinduer
2
Dører
1
Balkonger
1
Synlige etasjer
2
Øst
Materiale
Tre
Taktype
Flatt tak
Vinduer
2
Dører
1
Balkonger
1
Synlige etasjer
2

Hendelser

08.04.2026 68/466 Eternitveien 75 - Søknad om ferdigattest rammetillatelse
01.12.2025 68/466 Eternitveien 75 - Tillatelse til tiltak i ett trinn for brakkerigg med dispenasjon rammetillatelse
17.10.2025 68/466 Eternitveien 75 - Ber om status i saken
08.09.2025 68/466 Eternitveien 75 - Søknad om tillatelse i ett trinn - Oppsetting av brakkerigg rammetillatelse