Facade
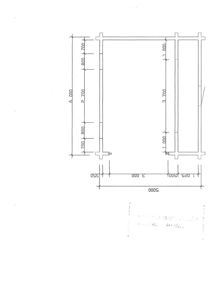
En håndtegnet fasadeopprikk (fra siden) av en bygning, som viser takform, vinduer og en balkong.
1 / 3
NewConstruction
Ferdigattest
Garasje
Ny garasje på Furubakken 6, Ringebu
📍 Furubakken 6 , 2634 FÅVANG
Nøkkelinfo
- Sakstype
- Nybygg
- Bygningstype
- Garasje
- Bruksareal
- 51 m²
- Kommune
- Ringebu
- Fylke
- Innlandet
- Gnr / Bnr
- 95 / 66
- Saksnummer
- 2026/2243
- Fase
- Ferdigattest
Om byggesaken
Ny frittstående garasje på 51 m² oppført på eiendommen Furubakken 6 i Ringebu. Garasjen er et nybygg med saltak og er utført i henhold til godkjent dokumentasjon og tillatelser. Bygget er ferdigstilt og har mottatt ferdigattest, som bekrefter at det er oppført i tråd med gjeldende regelverk. Tiltaket er utført uten vesentlige avvik, og det foreligger kontrollerklæringer som dokumenterer korrekt prosjektering og utførelse. Garasjen er tilknyttet eiendommen med adresse og er klar til bruk til formålet som garasje.
Produkter og materialer
Fasade
Saltak
Antall: 1
Saltak på garasje
Dører
Garasjeport og eventuell personaldør
Dører til garasje iht. godkjent dokumentasjon
Tak
Taktekking
Taktekking for saltak på garasje
Tømrer
Bærekonstruksjon og kledning
Tømrerarbeid for bærende konstruksjon og kledning av garasje
Grunnarbeid
Fundamentering og grunnmur
Grunnarbeid og fundamentering for garasje
Vinduer
Fasadevindu
Vinduer i garasje etter godkjente tegninger
Elektro
Elektrisk anlegg
Elektrisk installasjon i garasje
Fasader
Enebolig
Nord
- Taktype
- Saltak
- Vinduer
- 2
- Dører
- 1
- Synlige etasjer
- 2
Hendelser
15.04.2026
95/66 Ferdigattest bolig
13.04.2026
95/66 Ferdigattest - garasje
09.04.2026
95/66 Søknad om ferdigattest bolig
25.03.2026
95/66 Søknad om ferdigattester