NewConstruction Rammetillatelse Garasje

Ny garasje over 70 m² i J E Abrahamsens veg 36, Båtsfjord

📍 J E Abrahamsens veg 36

Nøkkelinfo

Sakstype
Nybygg
Bygningstype
Garasje
Bruksareal
93 m²
Kommune
Deatnu - Tana
Fylke
Finnmark - Finnmárku - Finmarkku
Gnr / Bnr
1 / 125
Saksnummer
2025/3307
Fase
Rammetillatelse

Om byggesaken

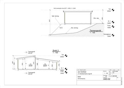
Ny frittstående garasje på totalt 93,4 m² fordelt på to sammenbygde seksjoner på henholdsvis 46,8 m² og 46,6 m². Garasjen bygges i tre med kombinasjon av flatt tak og saltak, og har flere garasjeporter og dører. Bygget plasseres på eiendom gnr 1 bnr 125 med en planlagt tomteutvidelse på ca. 150 m². Terrenginngrep med fylling på ca. 4 meter planlegges, og området ligger innenfor aktsomhetsområde for kvikkleireskred, noe som krever geoteknisk rapport før igangsetting. Garasjen har ingen vinduer, men flere dører og garasjeporter, og er planlagt med tre som fasademateriale.

Produkter og materialer

Ventilasjon Ventilasjon for garasje

Ventilasjon for lufting i garasje

Fasade Trepanel

🧱 Tre

Fasade i tre med kombinasjon av flatt tak og saltak

Trepanel til fasader med tak i både flatt og saltak utførelse

Grunnarbeid Terrengutfylling

Terrengutfylling på ca. 4 meter høyde

Grunnarbeid med fylling og terrengjustering for garasjeplassering

Betong Fundament og grunnmur

Betongfundament og grunnmur for garasjebygg

Tak Flatt tak og saltak

Flatt tak på nord- og sørfasade, saltak på øst- og vestfasade

Taktekking for både flatt tak og saltak på garasje

Tømrer Trekonstruksjoner

🧱 Tre

Tømrerarbeid for trekonstruksjoner i garasje

Elektro El-installasjon

Elektrisk anlegg for belysning og strøm i garasje

Dører Ytterdører

Antall: 5

Dører på nord, sør og øst fasade (1+1+3)

Ytterdører for personadkomst til garasje

Garasjeport Garasjeporter

Antall: 3

Garasjeporter på nord, sør og øst fasade

Tre garasjeporter for biladkomst

Isolasjon Isolasjon for garasje

Isolasjon for vegger og tak i garasje

Plantegning

Garasje 93.4 m²

Etasje 1 93.4 m²

Rom Areal Vinduer Dører
Garasje 101 46.8 m² 0 1
Garasje 102 46.6 m² 0 1

Fasader

Garasje

Nord
Materiale
Tre
Taktype
Flatt tak
Vinduer
0
Dører
1
Synlige etasjer
1
Vest
Materiale
Tre
Taktype
Saltak
Vinduer
0
Dører
0
Synlige etasjer
1
Sør
Materiale
Tre
Taktype
Flatt tak
Vinduer
0
Dører
1
Synlige etasjer
1
Øst
Materiale
Tre
Taktype
Saltak
Vinduer
0
Dører
3
Synlige etasjer
1

Hendelser

10.04.2026 Godkjenning av rammetillatelse – garasje over 70 m² – gbnr.1/125 Båtsfjord.
07.04.2026 1/125 J E Abrahamsens veg 36 - Rammesøknad - Nytt bygg - ikke boligformål over 70 m²,Oppretting av matrikkelenhet - arealoverføring
31.03.2026 Bekreftelse på mottatt søknad - Rammesøknad - Nytt bygg - ikke boligformål over 70 m², Oppretting av matrikkelenhet - arealoverføring - J E Abrahamsens veg 36. gbnr: 1/125
05.02.2026 Svar på anmodning om forhåndskonferanse - gbnr.1/125 - Båtsfjord
14.01.2026 J E Abrahamsens veg 36 og 40 Båtsfjord - Gjennomgang av garasjeprosjekt
23.12.2025 J E Abrahamsens veg 36 og 40 Båtsfjord - Gjennomgang av garasjeprosjekt
02.12.2025 J E Abrahamsens veg 36 og 40 Båtsfjord - Gjennomgang av garasjeprosjekt