NewConstruction Rammetillatelse Garasje

Ny frittliggende uthus på Kaldhussetervegen 480, Tafjord

📍 Kaldhussetervegen 480 , 6213 TAFJORD

Nøkkelinfo

Sakstype
Nybygg
Bygningstype
Garasje
Bruksareal
20 m²
Kommune
Fjord
Fylke
Møre og Romsdal
Gnr / Bnr
43 / 19
Saksnummer
2025/2608
Fase
Rammetillatelse

Om byggesaken

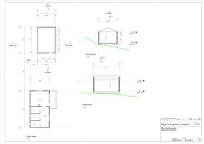
Ny frittliggende uthus/lagringsbod på ca. 20 m² BRA oppføres på eiendommen Kaldhussetervegen 480 i Tafjord. Bygget skal benyttes til lagringsformål og ikke til bolig eller opphold. Uthuset er plassert i et LNF-område med tidligere godkjent dispensasjon og arealoverføring. Bygget følger godkjente situasjonsplaner og fasadetegninger, og er tilpasset tomtens topografi og reguleringsstatus. Bygget er under 70 m² og behandles som mindre tiltak uten krav om ansvarsrett. Avstander til nabogrense, vei og andre bygg er i henhold til regelverket.

Produkter og materialer

Grunnarbeid Fundamentering og grunnarbeid

Antall: 1

Grunnarbeid til uthus på ca. 20 m² i LNF-område med tidligere vurdert skred- og flomfare

Grunnarbeid og fundamentering for uthus på 20 m²

Tak Saltak

🧱 Taktekking (materiale ikke spesifisert)

Antall: 1

Saltak på uthus i henhold til fasadetegninger

Taktekking for uthus med saltak

Fasade Trepanel

🧱 Tre

Antall: 1

Uthus med trekledning i henhold til fasadetegninger

Trepanel til uthusfasade

Tømrer Uthus konstruksjon i tre

🧱 Tre

Antall: 1

Trekonstruksjon for uthus i henhold til godkjente tegninger

Tømrerarbeid for oppføring av uthus i tre

Maling Utendørs maling

Antall: 1

Maling av trepanel på uthus

Utendørs maling for trepanel

Dører Ytterdør til uthus

Antall: 1

Ytterdør til uthus iht. tegninger

Dør til uthus

Vinduer Fasadevindu

Vinduer i uthus, antall og type ikke spesifisert i dokumentene

Vinduer til uthus

Betong Fundament og plate på mark

🧱 Betong

Antall: 1

Fundament og plate på mark for uthus

Betongfundament og plate for uthus

Elektro Elektrisk installasjon (mulig)

Ingen spesifikke opplysninger, men vanlig med elektrisk installasjon i uthus

Elektrisk installasjon for uthus (antatt behov)

Fasader

Enebolig

Vest
Materiale
Tre
Taktype
Saltak
Høyde
2.2 m
Mønehøyde
4.0 m
Vinduer
3
Dører
1
Synlige etasjer
1
Nord
Materiale
Tre
Taktype
Saltak
Høyde
2.2 m
Mønehøyde
4.0 m
Vinduer
1
Dører
1
Synlige etasjer
1
Øst
Materiale
Tre
Taktype
Saltak
Høyde
2.2 m
Mønehøyde
4.0 m
Vinduer
2
Dører
0
Synlige etasjer
1
Sør
Materiale
Tre
Taktype
Saltak
Høyde
2.2 m
Mønehøyde
4.0 m
Vinduer
1
Dører
0
Synlige etasjer
1

Hendelser

16.04.2026 Løyve til tiltak - gnr.43 bnr.19 - Kaldhussetervegen 480 - Oppføring av uthus
15.12.2025 Følgebrev - Søknad om oppføring av uthus/lagringsbod - gbnr 43/19 - Kaldhussetervegen 480 - Tafjord