NewConstruction Rammetillatelse Garasje

Riving og ny hobby- og redskapsbygning i Klørivegen 4, Volda

📍 Klørivegen 4 , 6102 VOLDA

Nøkkelinfo

Sakstype
Nybygg
Bygningstype
Garasje
Bruksareal
36 m²
Kommune
Volda
Fylke
Møre og Romsdal
Gnr / Bnr
16 / 3
Saksnummer
2026/270
Fase
Rammetillatelse

Om byggesaken

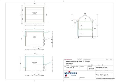
Ny frittliggende hobby- og redskapsbygning på 35,6 m² BYA med hovedplan og underetasje med lav himlingshøyde under 1,5 m, samt uinnredet loft/hems uten måleverdig areal. Bygget har saltak og er plassert omtrent som eksisterende garasje, men noe forskjøvet mot øst med 1,2 m avstand til nabogrense. Bygningen skal brukes til hobby og redskap, uten innlagt vann, og har en mønehøyde på ca. 6,2 m. Det er gitt dispensasjon fra LNF-arealformål, byggegrense mot offentlig veg og avstandskrav til nabogrense. Bygget er prosjektert med tre som fasademateriale og saltak, og det er en trapp til loft/hems. Det foreligger godkjent rammetillatelse og gjennomføringsplan, og tiltaket er under behandling med igangsettingstillatelse.

Produkter og materialer

Fasade Trepanel

🧱 Tre

Tre som fasademateriale på hobby- og redskapsbygning

Trepanel til yttervegger på ny hobby- og redskapsbygning

Tak Saltak

🧱 Takstein eller lignende

Saltak med mønehøyde ca. 6,2 m og gesimshøyde 4,2 m

Saltak på hobby- og redskapsbygning

Vinduer Ingen vinduer

Antall: 0

Ingen vinduer i hobby- og redskapsbygning

Bygget har ingen vinduer

Grunnarbeid Fundamentering og drenering

Grunnarbeid inkludert rivingsarbeid av eksisterende fundament, opparbeiding av dreneringsgrøfter og overvannssystem

Grunnarbeid for ny hobby- og redskapsbygning

Trapper Innvendig trapp til loft/hems

Antall: 1

Innvendig trapp til uinnredet loft/hems

Trapp til loft/hems i hobby- og redskapsbygning

Maling Utvendig og innvendig maling

Maling av trepanel utvendig og innvendige overflater

Dører Ytterdør

Antall: 1

1 ytterdør til hobby- og redskapsbygning

Ytterdør til hobby- og redskapsbygning

Elektro Ladepunkt for elbil

Mulighet for ladepunkt for elektriske kjøretøy i hobby- og redskapsbygning

Elektroinstallasjon for ladepunkt

Betong Kjeller/underetasje med lav himlingshøyde

Underetasje med himlingshøyde under 1,5 m, ikke måleverdig BRA

Betongarbeid for underetasje i hobby- og redskapsbygning

Isolasjon Isolasjon for hobby- og redskapsbygning

Isolasjon for vegger, tak og gulv i hobby- og redskapsbygning

Plantegning

Uthus 54.2 m²

Etasje 1 31.2 m²

Rom Areal Vinduer Dører
Hobby/redskap 101 31.2 m² 0 1

Etasje 2 23.0 m²

Rom Areal Vinduer Dører
Uinnredet loft 201 23.0 m² 0 0

Fasader

Garasje

Vest
Materiale
Tre
Taktype
Saltak
Vinduer
0
Dører
0
Synlige etasjer
1

Enebolig

Sør
Materiale
Tre
Taktype
Saltak
Vinduer
2
Dører
1
Synlige etasjer
2

Hendelser

17.04.2026 Løyve til tiltak - Riving av garsje og oppsett av redskapsbod - Klørivegen 4 - gnr 16 bnr 3
16.04.2026 Samtykke frå Volda kommune som grunneigar - Klørivegen 4 - Gnr 16 bnr 3
09.04.2026 Avstandserklæring - Klørivegen 4 - Gnr 16 bnr 3
16.02.2026 Tiltaksanalyse Norkart - Klørivegen 4 - Gnr 16 bnr 3 - heile eigedomen
11.02.2026 Uttale frå Vegmynde - Søknad om riving av eksisterande garasje og oppføring av ny bygning - Klørivegen 4 - Gnr 16 bnr 3 søknad
10.02.2026 Tidlegare rettleiing - Klørivegen 4 - Gnr 16 bnr 3
29.01.2026 Klørivegen 4 Søknad om tillatelse i ett trinn 16/3 søknad