NewConstruction UnderBehandling Garasje

Ny underjordisk garasjeanlegg i Konglungfaret 13, Vettre

📍 Konglungfaret 13 , 1392 VETTRE

Nøkkelinfo

Sakstype
Nybygg
Bygningstype
Garasje
Bruksareal
197 m²
Kommune
Asker
Fylke
Akershus
Gnr / Bnr
56 / 152
Saksnummer
20/2580
Fase
Under behandling

Om byggesaken

Ny underjordisk garasjeanlegg på 197 m² BRA med parkeringskjeller og tilhørende bod på eiendommen Konglungfaret 13 i Vettre. Garasjeanlegget er plassert delvis under terreng og utenfor regulert byggegrense, med et dekke over deler av innkjøringen. Bygget har saltak og tre som fasademateriale, og er tilpasset eksisterende terreng og vegetasjon med sikte på minimal visuell påvirkning. Prosjektet inkluderer grunnarbeider, plasstøpte betongkonstruksjoner, montering av hulldekker, samt landskapsutforming og bevaring av stedegen vegetasjon. Det er gitt dispensasjon for plassering utenfor byggegrense og for takmateriale i form av mørk grå skifer i stedet for rød takstein. Prosjektet har gjennomgått endringer i ansvarsretter og har flere involverte fagområder.

Produkter og materialer

Oppmåling Innmåling og utstikking

Oppmåling og utstikking for byggeprosjektet

Grunnarbeid Grunnarbeider og landskapsutforming

Grunnarbeider for underjordisk garasjeanlegg og landskapsutforming rundt bygget

Betong Plasstøpte betongkonstruksjoner

🧱 Betong

Plasstøpte betongkonstruksjoner for garasjeanlegg

Betongarbeider for fundamenter og bærende konstruksjoner

Betong Prefabrikkerte hulldekker

🧱 Betong

Montering av hulldekker levert av Loe Betongelementer AS

Prefabrikkerte hulldekker for dekker i garasjeanlegget

Elektro Overvann og vann- og avløp

Overvannshåndtering og vann- og avløpsinstallasjoner

Dører Garasjeport og boddør

Antall: 2

1 dør til bod, 1 garasjeport

Dører for garasjeanlegg og bod

VVS Sanitær-, varme- og slukkeinstallasjoner

VVS-installasjoner i garasjeanlegget

Tømrer Tømrerarbeider

Tømrerarbeider knyttet til bygging av garasjeanlegget

Fasade Trepanel

🧱 Tre

Tre som fasademateriale for garasje og bolig

Fasadebekledning i tre for garasje og bolig

Mur Murerarbeider

Murerarbeider i forbindelse med garasjeanlegget

Tak Saltak med skifertak

🧱 Mørk grå skifer

Takmateriale i mørk grå skifer som dispensasjon fra rød takstein

Taktekking med mørk grå skifer for garasje og bolig

Rekkverk Glassrekkverk

🧱 Glass

Endring til glassrekkverk mot sjøen

Glassrekkverk som del av fasadeendring på bolig

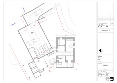
Plantegning

Garasje 197.0 m²

Etasje 0 197.0 m²

Rom Areal Vinduer Dører
Garasje 185.0 m² 0 1
Bod 12.0 m² 0 1

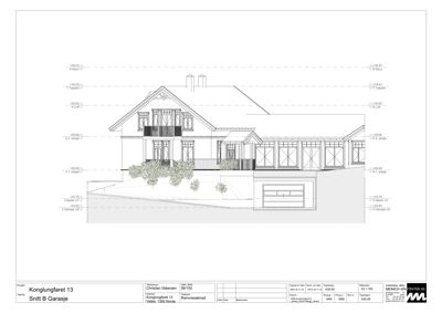
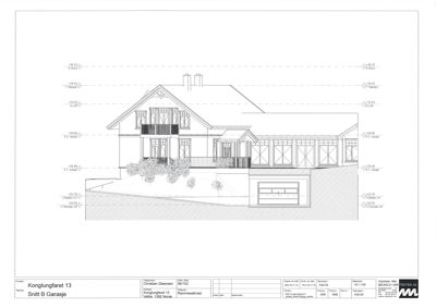
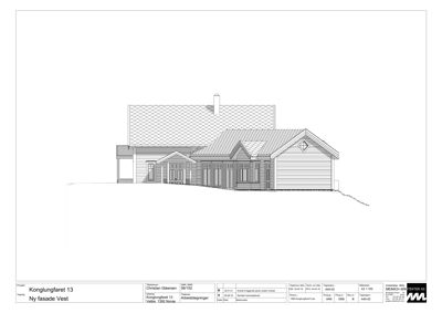
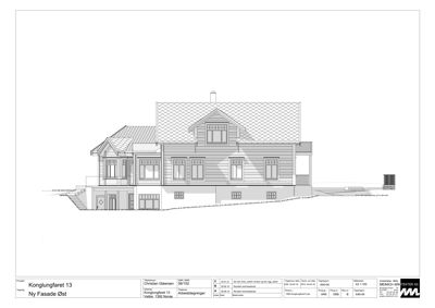
Fasader

Enebolig

Vest
Materiale
Tre
Taktype
Saltak
Vinduer
6
Dører
3
Balkonger
1
Synlige etasjer
2
Nord
Materiale
Tre
Taktype
Saltak
Vinduer
8
Dører
3
Balkonger
2
Synlige etasjer
2
Sør
Materiale
Tre
Taktype
Saltak
Vinduer
12
Dører
4
Synlige etasjer
2
Øst
Materiale
Tre
Taktype
Saltak
Vinduer
10
Dører
2
Balkonger
1
Synlige etasjer
3
Ukjent
Materiale
Tre
Taktype
Saltak
Høyde
26.5 m
Mønehøyde
34.4 m
Vinduer
10
Dører
2
Balkonger
1
Synlige etasjer
8

Garasje

Nord
Materiale
Tre
Taktype
Saltak
Vinduer
10
Dører
2
Balkonger
1
Synlige etasjer
2

Hendelser

13.04.2026 56/152 Konglungfaret 13 - Svar på henvendelse fra ansvarlig søker vedr. manglende ferdigattest
25.03.2026 56/152 Godkjent dispensasjon og tillatelse i ett trinn - Oppføring av garasjeanlegg - Manglende ferdigattest eller midlertidig brukstillatelse
25.03.2026 56/152 Konglungfaret 13 - Svar på brev av 240326
14.04.2021 56/152 E-postkorrespondanse vedrørende bekreftelse på mottatt gjennomføringsplan og nye erklæringer om ansvarsretter
19.02.2021 56/152 Melding om endring av ansvarsrett og oppdatert dokumentasjon - Oppføring av garasjeanlegg
15.02.2021 56/152 Melding om endring av ansvarsrett - Oppføring av garasjeanlegg
15.06.2020 56/152 Svar på etterspurt dokumentasjon vedrørende utomhusplan - Oppføring av garasjeanlegg
05.05.2020 56/152 Godkjent dispensasjon og tillatelse i ett trinn - Oppføring av garasjeanlegg
30.04.2020 56/152 Etterspurt dispensasjonssøknad - Oppføring av garasjeanlegg
29.04.2020 56/152 - Etterspurt dokumentasjon vedrørende utomhusplan - Oppføring av garasjeanlegg
22.03.2020 56/152 Kvitteringsbrev - Oppføring av garasjeanlegg
19.03.2020 56/152 Søknad om oppføring av garasjeanlegg