FloorPlan
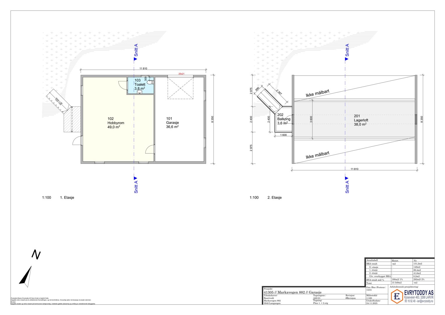
Etasjeplaner for en bygning, som viser romfordeling, arealer og veggposisjon for 1. og 2. etasje.
1 / 3
NewConstruction
Rammetillatelse
Garasje
Ny garasje/driftsbygning på Markavegen 882, Porsgrunn
📍 Markavegen 882 , 3948 PORSGRUNN
Nøkkelinfo
- Sakstype
- Nybygg
- Bygningstype
- Garasje
- Bruksareal
- 124 m²
- Kommune
- Porsgrunn
- Fylke
- Telemark
- Gnr / Bnr
- 15 / 21
- Saksnummer
- 2026/3815
- Fase
- Rammetillatelse
Om byggesaken
Ny frittstående garasje/driftsbygning på totalt 123,6 m² fordelt på to etasjer. Første etasje inneholder en garasje på 36,6 m², et hobbyrom på 49 m² og et toalett på 3,8 m². Andre etasje består av et lagerloft på 38 m² og en balkong på 3,6 m². Bygget har saltak og kles med stående trekledning, og plasseres på en eksisterende betongplate. Byggets høyde er 5,7 meter. Det er en trapp mellom etasjene, og bygget har totalt tre vinduer og tre dører i første etasje. Balkongen er uten vinduer og dører.
Produkter og materialer
Trapper
Innvendig trapp
Antall: 1
Trapp mellom første og andre etasje
Grunnarbeid
Betongplate
🧱 Betong
Eksisterende betongplate på 97 m² som bygget plasseres på
Grunnarbeid med eksisterende betongplate som fundament
Dører
Ytterdør og innerdører
Antall: 3
Totalt 3 dører i første etasje, inkludert inngangsdør til hobbyrom og toalett
Tak
Saltak
🧱 Stående trekledning
Saltak med stående trekledning
Tak med saltak og kledning i stående trepanel
Gulv
Betonggulv
🧱 Betong
Betonggulv i garasje og øvrige rom
Vinduer
Fasadevindu
Antall: 3
Totalt 3 vinduer i første etasje fordelt på garasje og hobbyrom
VVS
Toalettinstallasjon
Antall: 1
Sanitærinstallasjon for toalett i første etasje
Fasade
Stående trekledning
🧱 Tre
Stående trekledning på yttervegger
Fasade kledd med stående trekledning
Plantegning
Garasje 123.6 m²
Etasje 1 85.6 m²
| Rom | Areal | Vinduer | Dører |
|---|---|---|---|
| Garasje 101 | 36.6 m² | 1 | 1 |
| Hobbyrom 102 | 49.0 m² | 2 | 1 |
| Toalett 103 | 3.8 m² | 0 | 1 |
Etasje 2 38.0 m²
| Rom | Areal | Vinduer | Dører |
|---|---|---|---|
| Lagerloft 201 | 38.0 m² | 0 | 0 |
| Balkong 202 | 3.6 m² | 0 | 0 |
Hendelser
16.04.2026
Ettersendt vedlegg - Gbnr. 15/21, Markavegen 882 - Oppføring av garasje
16.04.2026
Tillatelse - Gbnr. 15/21, Markavegen 882 - Oppføring av garasje/driftsbygning
14.04.2026
E-post - Gbnr. 15/21, Markavegen 882 - Oppføring av garasje
30.03.2026
Søknad om tillatelse i ett trinn - Gbnr. 15/21, Markavegen 882