NewConstruction Ferdigattest Garasje

Ny dobbelgarasje og bruksendring i kjeller, Møllehagen 17

📍 Møllehagen 17 , 4120 TAU

Nøkkelinfo

Sakstype
Nybygg
Bygningstype
Garasje
Bruksareal
117 m²
Boenheter
1
Kommune
Strand
Fylke
Rogaland
Gnr / Bnr
17 / 32
Saksnummer
2024/4449
Fase
Ferdigattest

Om byggesaken

Ny dobbelgarasje i to etasjer med totalt 117,1 m² BRA oppføres på eiendommen Møllehagen 17. Garasjen har en grunnflate på 71,4 m², med 60,5 m² i 1. etasje og 45,7 m² i 2. etasje som loftstue. Bygget har saltak med tegl takmateriale og trekledning, og inkluderer garasjeport, dører og vinduer i fasaden. I tillegg gjennomføres bruksendring av kjelleretasje i eksisterende enebolig fra tilleggsdel til hoveddel, med rom som soverom, stue/kjøkken, bad og gang. Garasjen er plassert med 1 meters avstand til nabogrense etter nabosamtykke, og tiltaket er tilpasset boligens visuelle kvaliteter og omgivelsene. Prosjektet er ferdig prosjektert og har fått tillatelse til tiltak.

Produkter og materialer

Isolasjon Isolasjon for garasje og kjeller

Isolasjon iht. TEK17 for garasje og bruksendring kjeller

Isolasjon i vegger og tak

Betong Grunnmur og betongarbeid

Betongarbeid for garasje og grunnmur

Betongarbeid i garasje

VVS Vann og avløp

VVS installasjon i kjeller ved bruksendring

VVS for bad og kjøkken i kjeller

Tømrer Tømrerarbeid

Tømrerarbeid for garasje og bruksendring kjeller

Tømrerarbeid i garasje og kjeller

Gulv Innvendige gulv

Gulv i garasje og kjeller, type ikke spesifisert

Innvendige gulv i garasje og kjeller

Fasade Trekledning

🧱 Tre

Trekledning på garasje og bolig

Fasade med trekledning på garasje og bolig

Vinduer Fasadevindu

🧱 Tre/aluminium

Antall: 2

2 vinduer i garasje fasade sørvest

Vinduer i garasje fasade

Dører Ytterdør og garasjeport

🧱 Tre/metal

Antall: 2

2 dører i garasje, inkl. garasjeport

Dører og garasjeport i garasje

Tak Saltak med tegl

🧱 Tegl

Saltak med tegl takmateriale på garasje og bolig

Saltak med tegl takmateriale

Elektro Elektrisk anlegg

Elektrisk installasjon i garasje og kjeller

Elektroinstallasjon for belysning og strøm

Bad Bad i kjeller

Antall: 1

Bad på 7,3 m² i kjeller med nødvendige sanitærinstallasjoner

Bad i kjeller ved bruksendring

Grunnarbeid Fundamentering og grunnarbeid

Grunnarbeid og fundamentering for garasje

Grunnarbeid for ny garasje

Trapper Innvendig trapp

Antall: 1

Trapp i garasje mellom etasjer

Innvendig trapp i garasje mellom 1. og 2. etasje

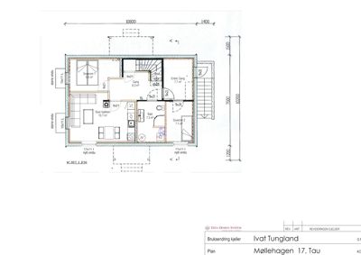
Plantegning

Garasje 117.1 m²

Etasje 1 71.4 m²

Rom Areal Vinduer Dører
Garasje 101 60.5 m² 0 1
Gang 102 10.9 m² 0 1

Etasje 2 45.7 m²

Rom Areal Vinduer Dører
Lofstue 201 45.7 m² 0 0

Enebolig 102.4 m²

Etasje 0 102.4 m²

Rom Areal Vinduer Dører
Soverom 1 001 9.5 m² 1 1
Stue/kjøkken 002 19.7 m² 2 1
Gang 003 8.3 m² 0 2
Bod 004 0.0 m² 0 1
Entré/Gang 005 7.7 m² 0 1
Bad 006 7.3 m² 0 1
Soverom 2 007 7.1 m² 1 1

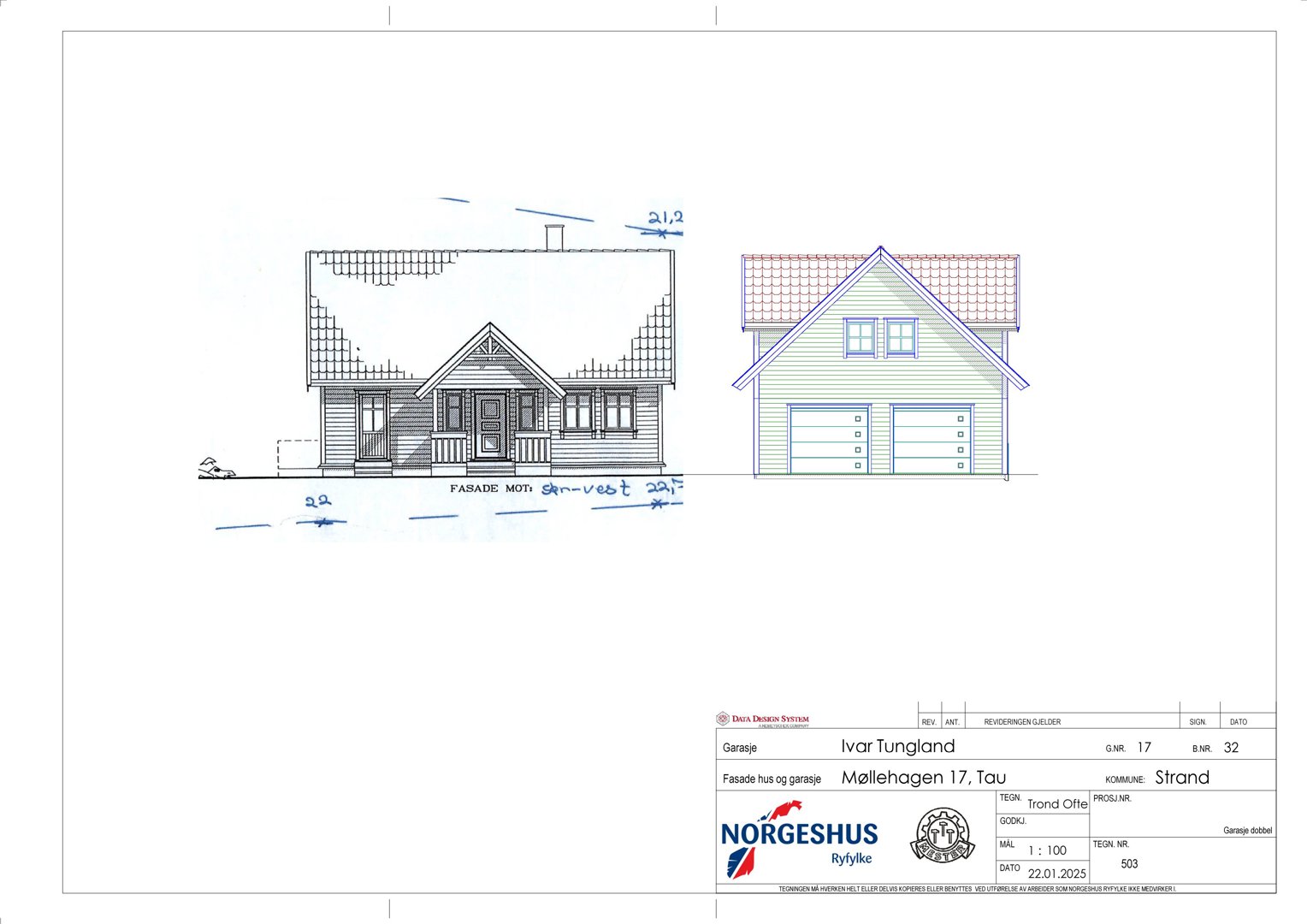
Fasader

Enebolig

Sør
Materiale
Tre
Taktype
Saltak
Takmat.
Tegl
Høyde
7.3 m
Vinduer
5
Dører
0
Synlige etasjer
2
Øst
Materiale
Tre
Taktype
Saltak
Takmat.
Tegl
Vinduer
4
Dører
1
Balkonger
1
Synlige etasjer
2
Nord
Materiale
Tre
Taktype
Saltak
Takmat.
Tegl
Vinduer
3
Dører
1
Synlige etasjer
2
Sørvest
Materiale
Tre
Taktype
Saltak
Vinduer
4
Dører
1
Synlige etasjer
1

Garasje

Sørvest
Materiale
Tre
Taktype
Saltak
Takmat.
Tegl
Vinduer
2
Dører
2
Synlige etasjer
1

Hendelser

20.04.2026 17/32 Dokumentsjekk - ikke behov for mangelbrev
27.03.2026 17/32 Søknad om ferdigattest - garasje og bruksendring - Møllehagen 17 - Ivar Petter Tungland
10.03.2025 17/32 Fakturagrunnlag - garasje og bruksendring - Møllehagen 17
25.02.2025 17/32 Tillatelse til tiltak - garasje og bruksendring - Møllehagen 17
25.02.2025 17/32 Melding om vedtak - tillatelse til tiltak - garasje og bruksendring - Møllehagen 17 - Ivar Petter Tungland
12.02.2025 17/32 Nabosamtykke - garasje og bruksendring - Møllehagen 17 - Ivar Petter Tungland
06.02.2025 17/32 Etterspør nabosamtykke - garasje og bruksendring - Møllehagen 17 - Ivar Petter Tungland
27.01.2025 17/32 Supplering av søknad - garasje og bruksendring - Møllehagen 17
03.01.2025 17/32 Tilbakemelding om mangler - garasje og bruksendring - Møllehagen 17
21.11.2024 17/32 Supplering av søknad - Møllehagen 17 - Ivar Petter Tungland
20.11.2024 17/32 Søknad om tillatelse i ett trinn - Møllehagen 17 - Ivar Petter Tungland