NewConstruction Soeknad Garasje

Ny garasje med takterrasse og riving på Myrabakken 31, Asker

📍 Myrabakken 31 , 1386 ASKER

Nøkkelinfo

Sakstype
Nybygg
Bygningstype
Garasje
Bruksareal
50 m²
Kommune
Asker
Fylke
Akershus
Gnr / Bnr
55 / 341
Saksnummer
25/3961
Fase
Søknad

Om byggesaken

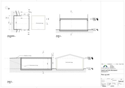
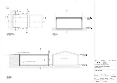
Ny frittstående garasje på 49,6 m² med flatt tak som fungerer som takterrasse, plassert lavt i terrenget på Myrabakken 31 i Asker. Garasjen bygges med betongfasade mot nord og sør, og trekledning med valmtak mot øst og vest. Den erstatter en eksisterende carport på 19,5 m² som rives. Garasjen har to garasjeporter, en mot øst og en mot vest, og er tilpasset terrenget med sprengsteinsfylling på fjell. Takterrassen får rekkverk og skal gi et uteoppholdsareal med god kvalitet, samtidig som den ivaretar naturmiljø og naboforhold. Bygget har en gesimshøyde på 2,4 meter og mønehøyde på 3,6 meter på trekledde fasader.

Arbeidsomfang

- Nybygg garasje med takterrasse - Riving av deler av eksisterende bygg - Etablering av membran, falloppbygging, dreneringslag, bæresystem og parapet for rekkverket (takterrasse) - Omprosjektering til saltak for å harmonere med omgivelsene (anbefaling fra kommune) - Justering av volum og plassering for å underordne seg eksisterende garasje

Produkter og materialer

Tak Flatt tak med takterrasse

🧱 Membran, falloppbygging, dreneringslag, bæresystem, parapet

Flatt tak med takterrasse, membran, falloppbygging, dreneringslag, bæresystem og parapet for rekkverk

Flatt tak som takterrasse med nødvendig oppbygging og rekkverk

Rekkverk Takterrasserekkverk

Rekkverk rundt takterrasse for sikkerhet

Rekkverk på takterrasse for å sikre uteoppholdsarealet

Fasade Betongfasade

🧱 Betong

Betongfasade på nord- og sørfasade

Fasade i betong mot nord og sør for garasjen

Grunnarbeid Fundamentering på sprengsteinsfylling

🧱 Sprengstein, fjell

Fundamentering på sprengsteinsfylling på fjell, noe sprenging/pigging må påregnes

Grunnarbeid med sprengsteinsfylling og tilpasning til fjellgrunn

Fasade Trekledning

🧱 Tre

Trekledning på øst- og vestfasade med valmtak

Trekledd fasade med valmtak på øst og vest

Garasjeport Dobbel garasjeport

Antall: 2

Garasjeporter mot øst og vest

To garasjeporter for biloppstilling i garasjen

Plantegning

Garasje 49.0 m²

Etasje 0 49.0 m²

Rom Areal Vinduer Dører
Garasje 001 49.0 m² 0 0

Fasader

Garasje

Nord
Materiale
Betong
Taktype
Flatt tak
Høyde
2.4 m
Vinduer
0
Dører
0
Synlige etasjer
1
Sør
Materiale
Betong
Taktype
Flatt tak
Høyde
2.4 m
Vinduer
0
Dører
0
Synlige etasjer
1
Øst
Materiale
Tre
Taktype
Valmtak
Høyde
2.4 m
Mønehøyde
3.6 m
Vinduer
0
Dører
0
Synlige etasjer
1
Vest
Materiale
Tre
Taktype
Valmtak
Høyde
2.4 m
Mønehøyde
3.6 m
Vinduer
0
Dører
0
Synlige etasjer
1

Hendelser

31.03.2026 55/341 Myrabakken 31 - Ufullstendig søknad - Nybygg garasje med takterrasse og riving av deler av bygg vedtak
27.01.2026 55/341 Myrabakken 31 - Supplering av søknad søknad
02.12.2025 55/341 Myrabakken 31 - Ufullstendig søknad og varsel om avslag om nybygg garasje med takterrasse og riving av deler av bygg søknad
20.11.2025 55/341 Myrabakken 31 - Søknad om tillatelse til tiltak uten ansvarsrett - Nybygg garasje med takterrasse og riving av deler av bygg søknad