NewConstruction Ferdigattest Garasje

Ny garasje under 70 m² på Nedre Utgård 7, Hvaler

📍 Nedre Utgård 7 , 1684 VESTERØY

Nøkkelinfo

Sakstype
Nybygg
Bygningstype
Garasje
Bruksareal
49 m²
Kommune
Hvaler
Fylke
Østfold
Gnr / Bnr
46 / 62
Saksnummer
2025/741
Fase
Ferdigattest

Om byggesaken

Ny frittstående garasje på ca. 49 m² BYA og 44 m² BRA oppføres på eiendommen Nedre Utgård 7 i Hvaler kommune. Garasjen bygges i tre med flatt tak og saltak på deler, og har gesimshøyde på ca. 2,7 meter og mønehøyde på ca. 6,6 meter. Bygget har to etasjer med garasjerom i begge etasjer, totalt ca. 93 m² gulvareal inkludert loftstrapp. Garasjen inneholder 1 dør og garasjeport, og er plassert på opparbeidet og tilrettelagt tomt med flatt terreng. Bygget er tilrettelagt for to parkeringsplasser og oppfyller krav til utnyttelse i reguleringsplan og kommuneplanens arealdel.

Produkter og materialer

Tak Flatt tak og saltak

🧱 Tegl takstein

Flatt tak med tegl takmateriale på hoveddel, saltak på deler av bygget

Tak med kombinasjon av flatt tak og saltak med tegl takstein

Vinduer Fasadevindu

Antall: 6

6 vinduer fordelt på saltakfasader, ingen vinduer på flate fasader

Vinduer i saltakfasader for naturlig lys

Grunnarbeid Tomtearbeid og terrengtilpasning

Tomten er opparbeidet og terreng er tilrettelagt for garasje, flatt terreng

Grunnarbeid for fundamentering og plassering av garasje

Trapper Utvendig loftstrapp

Antall: 1

Utvendig trapp til loft, 3,4 m² BYA

Trapp til loftsetasje i garasje

Dører Ytterdør og garasjeport

Antall: 3

1 vanlig dør og 2 garasjeporter på fasader

Ytterdør og garasjeporter for adkomst og bilinnkjøring

Tømrer Bærekonstruksjon og innvendig arbeid

🧱 Tre

Tømrerarbeid for bæring, vegger og tak

Betong Fundament og plate på mark

Betongfundament og plate for garasje

Fasade Tre kledning

🧱 Tre

Tre kledning på alle fasader

Tre kledning som ytterveggsmateriale på garasje

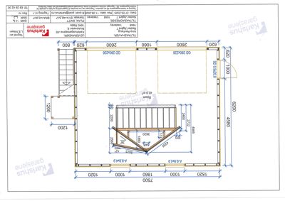
Plantegning

Garasje 92.8 m²

Etasje 1 46.5 m²

Rom Areal Vinduer Dører
Garasjerom 101 43.9 m² 0 1

Etasje 0 46.3 m²

Rom Areal Vinduer Dører
Garasjerom Room 46.3 m² 0 1
Garasje 001 43.9 m² 0 1

Fasader

Garasje

Nord
Materiale
Tre
Taktype
Flatt tak
Takmat.
Tegl
Høyde
2.7 m
Mønehøyde
6.6 m
Vinduer
0
Dører
1
Synlige etasjer
1
Sør
Materiale
Tre
Taktype
Flatt tak
Takmat.
Tegl
Høyde
2.7 m
Mønehøyde
6.6 m
Vinduer
0
Dører
0
Synlige etasjer
1
Vest
Materiale
Tre
Taktype
Flatt tak
Vinduer
0
Dører
0
Synlige etasjer
1
Øst
Materiale
Tre
Taktype
Flatt tak
Vinduer
0
Dører
0
Synlige etasjer
1
Nordvest
Materiale
Tre
Taktype
Saltak
Vinduer
1
Dører
1
Synlige etasjer
1
Sørdøst
Materiale
Tre
Taktype
Saltak
Vinduer
1
Dører
1
Synlige etasjer
1
Nordøst
Materiale
Tre
Taktype
Saltak
Vinduer
2
Dører
0
Synlige etasjer
2
Sørvest
Materiale
Tre
Taktype
Saltak
Vinduer
2
Dører
0
Synlige etasjer
2

Hendelser

14.04.2026 Søknad om ferdigattest - 46/62 - Nedre Utgård 7
17.09.2025 Tiltakshaver ønsker søke dispensasjon fra reguleringsplan - 46/62 - Nedre Utgård 7
05.09.2025 Ber om utsettelse svarfrist - 46/62 - Nedre Utgård 7, 1684 Vesterøy
18.07.2025 Behov for ytterligere opplysninger / omprosjektering - søknad om tillatelse til tiltak uten ansvarsrett - 46/62 - Nedre Utgård 7
15.07.2025 Supplering av søknad - 46/62 - Nedre Utgård 7
20.06.2025 Supplering av søknad - 46/62 - Nedre Utgård 7
12.06.2025 Viser til mangelbrev - 42/62 - Nedre Utgård 7
28.04.2025 Søknad om tillatelse til tiltak uten ansvarsrett - 46/62 - Nedre Utgård 7