Rendering
3D-visualisering (rendering) av et 3D-modell av en bygning og omgivelsene, vist fra fire ulike vinkler.
1 / 7
NewConstruction
Igangsettingstillatelse
Garasje
Ny dobbelgarasje med sportsbod på Østre vei 40A, Nesøya
📍 Østre vei 40A , 1397 NESØYA
Nøkkelinfo
- Sakstype
- Nybygg
- Bygningstype
- Garasje
- Bruksareal
- 50 m²
- Kommune
- Asker
- Fylke
- Akershus
- Gnr / Bnr
- 40 / 1885
- Saksnummer
- 20/6032
- Fase
- Igangsettingstillatelse
Om byggesaken
Ny frittliggende dobbelgarasje på 49,6 m² med sportsbod på 11,2 m² og loft for enkel lagring, plassert på Østre vei 40A, Nesøya. Garasjen har saltak med teglstein og trepanel som fasademateriale, tilpasset terrenget med ca. 1 meters høydeforskjell. Bygget har garasjeport, en dør til sportsbod og er plassert utenfor regulert byggegrense med god avstand til vei og nabogrense. Garasjen er tilpasset eksisterende bebyggelse og terreng, og har ikke rom for varig opphold. Det er søkt og innvilget dispensasjon for plassering og mønehøyde.
Produkter og materialer
Grunnarbeid
Terrengjustering og grunnarbeid
Terrengjustering med høydeforskjell ca 1m, grunnarbeid for garasje
Grunnarbeid og terrengtilpasning
Tømrer
Konstruksjoner og detaljer garasje
Tømrerarbeid for konstruksjoner og detaljer i garasje
Tømrerarbeid for garasjekonstruksjon
Fasade
Trepanel
🧱 Tre
Trepanel som fasademateriale
Fasade med trepanel
Dører
Ytterdør til sportsbod
🧱 Tre eller tilsvarende
Antall: 1
Dør til sportsbod i garasje
Ytterdør til sportsbod i garasje
Tak
Saltak med teglstein
🧱 Teglstein
Antall: 1
Saltak med teglstein som takmateriale
Tak med saltak og teglstein
Garasjeport
Dobbel garasjeport
Antall: 1
Garasjeport til dobbelgarasje, tilpasset saltak og trepanel
Garasjeport for dobbelgarasje med sportsbod
Betong
Fundamentering og gulv på grunn
🧱 Betong
Fundamentering og gulv på grunn for garasje
Betongfundament og gulv på grunn
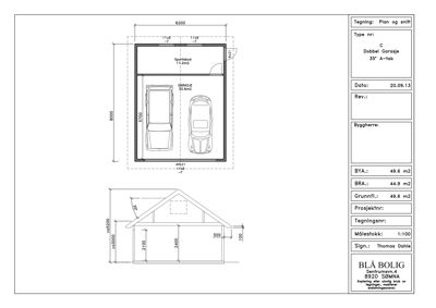
Plantegning
Dobbel Garasje 49.6 m²
Etasje 1 49.6 m²
| Rom | Areal | Vinduer | Dører |
|---|---|---|---|
| Garasje GARASJE | 33.6 m² | 0 | 1 |
| Sportsbod Sportsbod | 11.2 m² | 0 | 1 |
Fasader
Dobbel Garasje
Ukjent
- Taktype
- A-tak
- Takmat.
- Tegl
- Vinduer
- 0
- Dører
- 1
- Synlige etasjer
- 1
Garasje
Nord
- Taktype
- Flatt tak
- Vinduer
- 0
- Dører
- 1
- Synlige etasjer
- 1
Sør
- Taktype
- Flatt tak
- Vinduer
- 0
- Dører
- 1
- Synlige etasjer
- 1
Vest
- Materiale
- Tre
- Taktype
- Saltak
- Vinduer
- 2
- Dører
- 0
- Synlige etasjer
- 1
Enebolig
Øst
- Materiale
- Tre
- Taktype
- Saltak
- Vinduer
- 0
- Dører
- 1
- Synlige etasjer
- 2
Hendelser
14.04.2026
40/1885 Nybygg garasje FS Frode Sørensen (BSN) Mappe - Manglende ferdigattest eller midlertidig brukstillatelse
13.01.2021
40/1885 Igangsettingstillatelse - Nybygg garasje
23.12.2020
40/1885 Søknad om igangsettingstillatelse - Nybygg garasje
15.12.2020
40/1885 Godkjent dispensasjon og rammetillatelse - Nybygg garasje
11.12.2020
40/1885 Dispensasjonssøknad og tilleggsdokumentasjon til rammesøknad - Nybygg garasje
19.11.2020
40/1885 Mangel ved søknad om nybygg - Garasje
21.09.2020
40/1885 Kvitteringsbrev - Nybygg garasje
18.09.2020
40/1885 Søknad om nybygg - Garasje