NewConstruction Rammetillatelse Garasje

Ny frittliggende garasje med takterrasse i Øvre Rasmusslættet 16, Oppdal

📍 Øvre Rasmusslættet 16 , 7340 OPPDAL

Nøkkelinfo

Sakstype
Nybygg
Bygningstype
Garasje
Bruksareal
54 m²
Kommune
Oppdal
Fylke
Trøndelag - Trööndelage
Gnr / Bnr
204 / 149
Saksnummer
2025/11359
Fase
Rammetillatelse

Om byggesaken

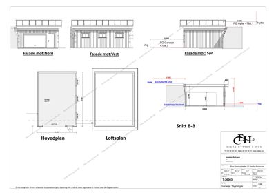
Ny frittliggende garasje på ca. 54,5 m² BYA med flatt tak og takterrasse på Øvre Rasmusslættet 16 i Oppdal. Garasjen har en gesimshøyde på ca. 2,94 meter og inneholder en garasjeport på 3,5 x 2,1 meter og tre vinduer på vestfasaden. Taket fungerer delvis som terrasse med glassrekkverk, hvor ca. 21,45 m² av takflaten er terrasse og resten dekket med gress. Garasjen er plassert 3 meter fra nabogrense, men naboer hevder reell avstand inkl. takterrasseutstikk er ca. 2,2 meter. Det er utført terrengfylling bak garasjen med singel, pukk, jord og støttemur i skifer for å sikre stabilitet i bratt terreng. Tiltaket har vært gjenstand for nabomerknader knyttet til avvik fra reguleringsplanens krav om saltak, størrelse, høyde, avstand, terrenginngrep og manglende forhåndssøknad. Kommunen har gitt dispensasjon fra takform og tillatelse til oppføring av garasje med tilhørende terrengarbeider.

Produkter og materialer

Grunnarbeid Terrengfylling

🧱 Singel, pukk og jord

Oppfylling bak garasje for stabilitet

Terrengfylling med singel, pukk og jord for å sikre stabilitet i bratt skråning

Fasade Trepanel

🧱 Tre

Tre kledning på alle fasader

Trepanel på garasjens fasader

Rekkverk Glassrekkverk

🧱 Glass og metall

Antall: 1

Fastmontert glassrekkverk rundt takterrasse

Sikkerhetsrekkverk på takterrasse

Vinduer Fasadevindu i tre

🧱 Tre

Antall: 3

Glidehengsla 1,090 x 590 mm

Tre vinduer på vestfasade

Garasjeport Garasjeport i tre

🧱 Tre

Antall: 1

3,500 x 2,100 mm

Garasjeport for biloppstilling

Mur Støttemur i skifer

🧱 Skifer

Antall: 1

Støttemur for terrengstabilisering bak garasje

Støttemur i skifer for å hindre utglidning i bratt terreng

Tømrer Bygging av garasje

Oppføring av garasje med flatt tak og takterrasse

Tømrerarbeid for oppføring av garasje

Tak Flatt tak med takterrasse

🧱 Gressdekke og terrasse med glassrekkverk

Antall: 1

Takterrasse på 21,45 m² med glassrekkverk, resten gress

Flatt tak som delvis brukes som terrasse med sikkerhetsglassrekkverk

Fasader

Garasje

Nord
Materiale
Tre
Taktype
Flatt tak
Høyde
2.9 m
Vinduer
0
Dører
1
Synlige etasjer
1
Vest
Materiale
Tre
Taktype
Flatt tak
Høyde
2.9 m
Vinduer
3
Dører
0
Synlige etasjer
1
Sør
Materiale
Tre
Taktype
Flatt tak
Høyde
2.9 m
Vinduer
0
Dører
0
Balkonger
1
Synlige etasjer
2
Øst
Materiale
Tre
Taktype
Flatt tak
Høyde
2.9 m
Vinduer
0
Dører
0
Synlige etasjer
1

Hendelser

21.04.2026 204/149 - Henvendelse om begrunnelse for vedtak
15.04.2026 204/149 - Dispensasjon fra takform og tillatelse til oppføring av garasje
16.03.2026 204/149 - Anmodning om status i byggesak
16.03.2026 204/149 - Svar på anmodning om status i byggesak
23.02.2026 204/149 – Presisering til tiltakshavers tilsvar
18.02.2026 204/149 - Tilsvar til nabomerknader
05.02.2026 204/149 - Tilbakemelding på 'Svar på spørsmål om ulovlighetsoppfølgning.'
05.02.2026 204/149 - Svar på spørsmål om ulovlighetsoppfølgning.
27.01.2026 204/149 - Orientering om nabovarsel
26.01.2026 204/149 – Tilsvar på merknader fra Barbro Orskaug og Joakim Hem Orskaug
26.01.2026 204/149 - Bekreftelse på mottatt anmodning om vurdering av ulovlighetsoppfølging – garasje
23.01.2026 204/149 – Søknad om tiltak uten ansvarsrett samt søknad om dispensasjon fra planbestemmelser
23.01.2026 204/149 – Tegninger T-26003
23.01.2026 204/149 - Situasjonsplan terrengsnitt
23.01.2026 204/149 – Kopi av nabovarsel til 204/152 - Barbro Orskaug og Joakim Hem Orskaug
23.01.2026 204/149 – Kopi av svar på nabovarsel fra Barbro Orskaug og Joakim Hem Orskaug
23.01.2026 204/149 – Oversendelse av merknader fra Barbro Orskaug og Joakim Hem Orskaug
23.01.2026 204/149 - Oversendelse av bilder
23.01.2026 204/149 – Svar på nabovarsel fra 204/144 - Geir Arne Rao
23.01.2026 204/149 – Svar på nabovarsel fra 204/146 - Per Hangerhagen
22.01.2026 204/149 - Anmodning om vurdering av ulovlighetsoppfølging – garasje
16.01.2026 204/149 - Søknad om dispensasjon fra takform og oppføring av garasje
10.12.2025 204/149 - Svar på melding om tiltak unntatt søknadsplikt
09.12.2025 204/149 - Søknad uten ansvarsrett