NewConstruction Ferdigattest Garasje

Ny garasje med riving i Roseveien 15, Tistedal

📍 Roseveien 15 , 1791 TISTEDAL

Nøkkelinfo

Sakstype
Nybygg
Bygningstype
Garasje
Bruksareal
50 m²
Kommune
Halden
Fylke
Østfold
Gnr / Bnr
76 / 19
Saksnummer
2025/8920
Fase
Ferdigattest

Om byggesaken

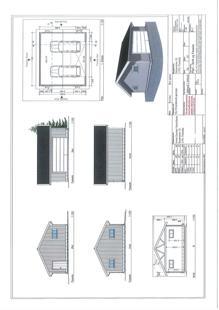
Ny frittstående garasje på 50 m² bebygd areal oppføres på eiendommen Roseveien 15 i Tistedal. Garasjen bygges i tre med saltak og har en garasjeport på sørsiden, en dør på sør- og østfasade, samt tre vinduer fordelt på øst- og vestfasade. Den nye garasjen er plassert på samme sted som den eksisterende, men er 5 m² mindre i grunnflate. Bygget har én etasje og er tilpasset tomtens reguleringsplan og nabosamtykke foreligger. Tiltaket inkluderer riving av den gamle garasjen, grunnarbeid, og oppføring av ny konstruksjon med trepanel og saltak.

Produkter og materialer

Vinduer Fasadevindu

Antall: 3

Ett vindu på østfasade, to vinduer på vestfasade

Fasadevinduer for lysinnslipp i garasjen

Dører Ytterdør

Antall: 2

Dør på sør- og østfasade

To ytterdører for adkomst til garasjen

Betong Garasjeplate

🧱 Betong

Ny betongplate for garasje på 50 m²

Betongplate som fundament for ny garasje

Tømrer Tømrerarbeid

Oppføring av trekonstruksjon for garasje

Tømrerarbeid for bygging av garasjeskallet

Grunnarbeid Riving og grunnarbeid

Riving av eksisterende garasje og grunnarbeid for ny plate

Riving av gammel garasje og forberedelse av grunn for ny garasje

Garasjeport Garasjeport på sørfasade

Antall: 1

Garasjeport på sørfasade for biladkomst

Tak Saltak

🧱 Taktekking ikke spesifisert

Saltak på hele garasjen

Saltak som takkonstruksjon for garasjen

Fasade Trepanel

🧱 Tre

Trepanel på alle fasader

Ytterkledning i tre på garasjens fasader

Fasader

Garasje

Sør
Materiale
Tre
Taktype
Saltak
Vinduer
0
Dører
1
Synlige etasjer
1
Nord
Materiale
Tre
Taktype
Saltak
Vinduer
0
Dører
0
Synlige etasjer
1
Øst
Materiale
Tre
Taktype
Saltak
Vinduer
1
Dører
1
Synlige etasjer
1
Vest
Materiale
Tre
Taktype
Saltak
Vinduer
2
Dører
0
Synlige etasjer
1

Hendelser

10.04.2026 76/19 - Roseveien 15 - Ferdigattest
07.04.2026 76/19 - Roseveien 15 - Søknad om ferdigattest
31.10.2025 76/19 - Roseveien 15 - Riving av eksisterende garasje og oppsetting av ny - Tillatelse til tiltak
30.10.2025 76/19 - Roseveien 15 - Riving av eksisterende garasje og oppsetting av ny