NewConstruction Rammetillatelse Garasje

Ny dobbel garasje med bod i Skivikveien 9C, Bodø

📍 Skivikveien 9C , 8014 BODØ

Nøkkelinfo

Sakstype
Nybygg
Bygningstype
Garasje
Bruksareal
88 m²
Kommune
Bodø
Fylke
Nordland - Nordlánnda
Gnr / Bnr
2025 / 8233
Saksnummer
2026/9343
Fase
Rammetillatelse

Om byggesaken

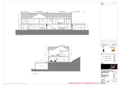
Ny dobbel garasje på 88,1 m² med én etasje, plassert sørvest for eksisterende bolig i Skivikveien 9C, Bodø. Garasjen inneholder to parkeringsplasser og en bod i bakkant. Bygget er delvis innfelt i terrenget med løsmasser rundt, og har en gesimshøyde på 3,3 meter. Fasaden har en port i nord og en adkomstdør mot vest, med to vinduer på vestfasaden. Overvann håndteres med drensrør rundt bygget og rist foran garasjeporten. Garasjen er i tråd med kommuneplanens arealdel og reguleringsplanens bestemmelser, og det foreligger godkjent nabosamtykke for plassering nærmere enn 4 meter fra nabogrense.

Produkter og materialer

Tak Saltak

Antall: 1

Takvann føres via nedløp til terreng eller overvannsledning

Saltak med takrenner og nedløp for overvannshåndtering

Garasjeport Dobbel garasjeport

Antall: 1

Port i nordfasade for to parkeringsplasser

Dobbel garasjeport for innkjøring til garasje

Dører Ytterdør

Antall: 2

Adkomstdør mot vest og dør i nordfasade

To ytterdører til bod og adkomst

VVS Rådgivning VVS

Rådgivning VVS er dokumentert i tegninger

VVS-installasjoner i garasje

Elektro Rådgivning elektro

Rådgivning elektro er dokumentert i tegninger

Elektroinstallasjoner i garasje

Grunnarbeid Drenering og terrengarbeid

🧱 Drensrør, filterduk, pukk

Drensrør rundt garasje, filterduk og pukk for drenering, terrengsnitt før og etter

Grunnarbeid for drenering og terrengtilpasning rundt garasje

Vinduer Fasadevindu

Antall: 2

To vinduer på vestfasade

Fasadevindu for naturlig lys i bod og garasje

Tømrer Bygging av garasje og bod

🧱 Tre

Garasje med bod, delvis innfelt i terreng, 1 etasje, 88,1 m² BYA

Tømrerarbeid for oppføring av garasje med bod

Fasader

Enebolig

Nord
Materiale
Tre
Taktype
Saltak
Høyde
5.8 m
Mønehøyde
8.3 m
Vinduer
4
Dører
1
Synlige etasjer
2

Garasje

Nord
Vinduer
0
Dører
1
Synlige etasjer
1
Vest
Vinduer
2
Dører
1
Synlige etasjer
1

Hendelser

20.04.2026 Rammetillatelse - Garasje - Skivikveien 9C
23.03.2026 Nabosamtykke - Skivikveien 9C
04.03.2026 Foreløpig svar - behov for tilleggsdokumentasjon nr. 2
26.02.2026 Nabosamtykke
25.02.2026 Supplering av søknad - Skivikveien 9C
06.02.2026 Foreløpig svar - behov for tilleggsdokumentasjon
05.02.2026 Rammesøknad - Skivikveien 9C