NewConstruction Igangsettingstillatelse Garasje

Ny frittliggende garasje i Skolemesterveien 7B, Nittedal

📍 Skolemesterveien 7B , 1482 NITTEDAL

Nøkkelinfo

Sakstype
Nybygg
Bygningstype
Garasje
Bruksareal
29 m²
Kommune
Nittedal
Fylke
Akershus
Gnr / Bnr
14 / 1177
Saksnummer
25/03388
Fase
Igangsettingstillatelse

Om byggesaken

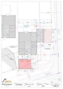
Ny frittliggende enkeltgarasje på 28,8 m² BYA oppføres på eiendommen Skolemesterveien 7B i Nittedal. Garasjen har valmtak med mønehøyde 3,6 m og gesimshøyde 2,63 m, og bygges med samme kledning, farge og takvinkel som eksisterende bolig. Den erstatter en eldre garasje på 21,9 m² som rives. Garasjen plasseres på tomtens vestside, delvis innenfor en hensynssone for overvannsflom, men er prosjektert med flomsikringstiltak som grøft og brystning for å lede overvann forbi bygget. Tomten har et uteoppholdsareal på 262,6 m² og tilfredsstiller krav til utnyttelsesgrad og byggegrenser. Det foreligger nabosamtykke for plassering nær nabogrense. Tiltaket er vurdert i henhold til flomfare og erosjonssikkerhet, og det er dokumentert at garasjen ikke påvirkes negativt av overvannsflom eller flomveier.

Produkter og materialer

Grunnarbeid Grunnarbeid og terrengjustering

Heving av terreng til kote 189,8 moh, grøft for overvannshåndtering, brystning for flomsikring

Grunnarbeid med terrengheving, grøft og brystning for flomsikring av garasje

Tak Valmtak

🧱 Takstein eller tilsvarende

Valmtak med mønehøyde 3,6 m og gesimshøyde 2,63 m

Tak med valmtak på ny garasje, tilpasset boligens takvinkel

Betong Plate på mark

🧱 Betong

Plate på mark med fall rundt garasje

Betongplate som fundament for garasje med fall for drenering

Elektro Elektrisk installasjon

Elektriske installasjoner i garasje

Tømrer Tømrerarbeid

Tømrerarbeid for oppføring av garasje

Fasade Tre kledning

🧱 Tre

Kledning i tre, samme som bolig

Tre kledning på ny garasje, tilpasset eksisterende bolig

VVS Overvannshåndtering

Grøft og brystning for å lede overvann forbi bygget

Tiltak for overvannshåndtering i flomsone

Garasjeport Garasjeport i tre

🧱 Tre

Antall: 1

Garasjeport på sørfasade, valmtak garasje

Garasjeport for ny enkeltgarasje med valmtak

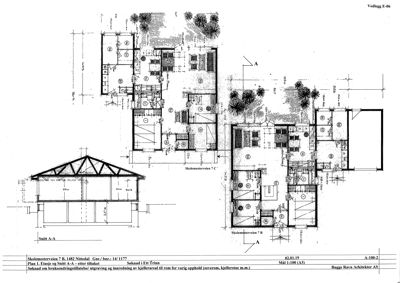
Plantegning

Enebolig 173.6 m²

Etasje 1 120.5 m²

Rom Areal Vinduer Dører
Stue 101 24.8 m² 1 1
Sovegang 102 8.6 m² 0 1
Soverom 103 8.1 m² 1 1
Soverom 104 7.2 m² 1 1
Soverom 105 4.1 m² 0 1
Kjøkken 106 10.8 m² 1 1
Bad 107 3.9 m² 0 1
Gang 108 8.4 m² 0 2
Terrasse 109 6.4 m² 0 1
Terrasse 110 8.4 m² 0 1
Terrasse 111 38.8 m² 0 1
Garasje 112 28.8 m² 0 1
Garasje 113 24.3 m² 0 1

Etasje 0 53.1 m²

Rom Areal Vinduer Dører
Garasje BYA 001 28.8 m² 1 1
Garasje BRA 002 24.3 m² 1 1

Fasader

Garasje

Vest
Materiale
Tre
Taktype
Valmtak
Høyde
2.5 m
Mønehøyde
4.5 m
Vinduer
1
Dører
0
Synlige etasjer
1
Sør
Materiale
Tre
Taktype
Valmtak
Høyde
3.6 m
Mønehøyde
5.6 m
Vinduer
0
Dører
1
Synlige etasjer
1
Øst
Materiale
Tre
Taktype
Valmtak
Høyde
2.5 m
Mønehøyde
4.5 m
Vinduer
0
Dører
1
Synlige etasjer
1
Nord
Materiale
Tre
Taktype
Valmtak
Høyde
2.5 m
Mønehøyde
4.5 m
Vinduer
0
Dører
0
Synlige etasjer
1

Hendelser

10.04.2026 25/03388-6 Søknad om igangsettingstillatelse - 14/1177 - Skolemesterveien 7B
19.02.2026 25/03388-4 Rammetillatelse - 14/1177 - Skolemesterveien 7B - Garasje
15.02.2026 25/03388-3 Supplering av søknad - 14/1177 - Skolemesterveien 7B
28.11.2025 25/03388-2 Varsel om avslag - 14/1177 - Skolemesterveien 7B - Ny garasje
10.10.2025 25/03388-1 Søknad om rammetillatelse - 4/1177 - Skolemesterveien 7B