Photo
Luftfoto av et eksisterende bygganlegg på en grønn, kupert tomt.
1 / 7
NewConstruction
Soeknad
Garasje
Ny uthus med saltak på Søreidsstøylen
📍 Søreidsstøylen
Nøkkelinfo
- Sakstype
- Nybygg
- Bygningstype
- Garasje
- Kommune
- Gloppen
- Fylke
- Vestland
- Saksnummer
- 2026/1633
- Fase
- Søknad
Om byggesaken
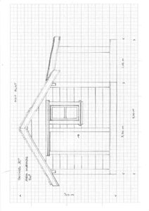
Ny frittstående uthus på én etasje med saltak og tre som fasademateriale. Bygget har en gesimshøyde på 3,3 meter og mønehøyde på 4,8 meter. Fasaden mot øst har ett vindu og en dør, mens fasaden mot vest har to vinduer. Uthuset er plassert på eiendommen Søreidsstøylen og er beregnet som et tilleggsbygg til eksisterende hovedbygg.
Produkter og materialer
Vinduer
Vanlige vinduer
Antall: 3
Tre vinduer i uthusets fasader øst (1 stk) og vest (2 stk)
Fasade
Trepanel
🧱 Tre
Tre som fasademateriale på uthusets yttervegger
Trepanel til yttervegger på uthus
Tømrer
Bygging av trekonstruksjon
🧱 Tre
Tømrerarbeid for oppføring av uthus i tre
Grunnarbeid
Fundamentering
Grunnarbeid og fundamentering for uthus
Dører
Ytterdør
Antall: 1
Ytterdør i uthusets østfasade
Tak
Saltak
Saltak med mønehøyde 4,8 m og gesimshøyde 3,3 m
Saltak til uthus
Fasader
Uthus
Øst
- Materiale
- Tre
- Taktype
- Saltak
- Høyde
- 3.3 m
- Mønehøyde
- 4.8 m
- Vinduer
- 1
- Dører
- 1
- Synlige etasjer
- 1
Hovedbygg
Nord
- Vinduer
- 0
- Dører
- 0
- Synlige etasjer
- 0
Vest
- Materiale
- Tre
- Taktype
- Saltak
- Vinduer
- 2
- Dører
- 0
- Synlige etasjer
- 1
Hendelser
23.04.2026
Søknad om løyve til tiltak - nybygg uthus på Søreidsstøylen