NewConstruction UnderBehandling Garasje

Ny frittliggende garasje i Spikkestadveien 13, Røyken

📍 Spikkestadveien 13A , 3440 RØYKEN

Nøkkelinfo

Sakstype
Nybygg
Bygningstype
Garasje
Bruksareal
49 m²
Kommune
Asker
Fylke
Akershus
Gnr / Bnr
221 / 8
Saksnummer
20/5683
Fase
Under behandling

Om byggesaken

Ny frittliggende garasje på 48,8 m² med saltak og flatt tak i tre, plassert i flukt med nabogrense på eiendommen Spikkestadveien 13 i Røyken. Garasjen har en gjennomsnittlig gesimshøyde på 2,8 meter og mønehøyde på 4,27 meter. Bygget har to garasjeporter, flere dører og vinduer fordelt på fasadene, og er tilrettelagt for to parkeringsplasser. Garasjen er oppført med tre som fasademateriale og har saltak på hovedfasadene. Det foreligger tinglyst rett til vedlikehold på naboeiendommen. Bygget er prosjektert og søkt gjennomført uten ansvarsrett, med komplett dokumentasjon og godkjent byggetillatelse.

Produkter og materialer

Grunnarbeid Fundamentering og grunnmur

Grunnarbeid og fundamentering for garasje på tomt

Tømrer Bygging av bærende konstruksjoner

🧱 Tre

Tømrerarbeid for oppføring av garasje i tre

Dører Ytterdører og garasjeporter

Antall: 6

Dører på fasader Sør-Vest (2), Sør-Øst (1), Sør (2), og garasjeporter på fasader Sør, Øst

Maling Utvendig og innvendig maling

Maling av trefasader og eventuelt innvendige flater

Garasjeport Garasjeporter

Antall: 2

To garasjeporter på fasader Sør og Øst

Tak Saltak og flatt tak

🧱 Taktekking ikke spesifisert

Saltak på fasader Sør-Vest, Sør-Øst og Nord-Øst; flatt tak på fasader Vest, Nord og Øst

Tak med saltak og flate takflater

Elektro Elektrisk anlegg

Elektrisk installasjon for belysning og strøm i garasje

Vinduer Fasadevindu

Antall: 6

Vinduer fordelt på fasader Sør-Vest (1), Nord-Vest (2), Vest (2), Sør (1)

Fasade Trepanel

🧱 Tre

Tre som fasademateriale på alle fasader

Fasadebekledning i tre på garasje

Isolasjon Isolasjon i vegger og tak

Isolasjon for vegger og tak i garasje

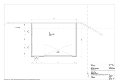
Plantegning

Garasje 45.3 m²

Etasje 1 45.3 m²

Rom Areal Vinduer Dører
Garasje Garasje 45.3 m² 0 1

Fasader

Garasje

Sør-Vest
Materiale
Tre
Taktype
Saltak
Vinduer
1
Dører
2
Synlige etasjer
1
Nord-Vest
Materiale
Tre
Vinduer
2
Dører
0
Synlige etasjer
1
Nord-Øst
Materiale
Tre
Taktype
Saltak
Vinduer
0
Dører
0
Synlige etasjer
1
Sør-Øst
Materiale
Tre
Vinduer
0
Dører
1
Synlige etasjer
1
Vest
Materiale
Tre
Taktype
Flatt tak
Vinduer
2
Dører
0
Synlige etasjer
1
Nord
Materiale
Tre
Taktype
Flatt tak
Vinduer
0
Dører
0
Synlige etasjer
1
Øst
Materiale
Tre
Taktype
Flatt tak
Vinduer
0
Dører
0
Synlige etasjer
1
Sør
Materiale
Tre
Taktype
Saltak
Vinduer
1
Dører
2
Synlige etasjer
1

Hendelser

13.04.2026 221/8 Spikkestadveien 13 - Nybygg garasje - Manglende ferdigattest eller midlertidig brukstillatelse
13.04.2026 221/8 Spikkestadveien 13 - Søknad om ferdigattest
07.10.2020 221/8 Tillatelse i ett trinn - Nybygg garasje
05.10.2020 221/8 Etterspurt dokumentasjon - Nybygg garasje
21.09.2020 221/8 Mangler i søknaden - Nybygg garasje uten ansvarsrett
31.08.2020 221/8 Kvitteringsbrev - Nybygg garasje
29.08.2020 221/8 Søknad om nybygg garasje uten ansvarsrett