Photo
Fotografi av et utendørs område med grøft, en grusvei og skog i bakgrunnen.
1 / 8
NewConstruction
Ferdigattest
Garasje
Ny frittstående garasje i Eikelandsveien 141, Gjerstad
📍 Ståltjennveien 189 , 4993 SUNDEBRU
Nøkkelinfo
- Sakstype
- Nybygg
- Bygningstype
- Garasje
- Bruksareal
- 35 m²
- Kommune
- Gjerstad
- Fylke
- Agder
- Gnr / Bnr
- 2 / 15
- Saksnummer
- 2025/526
- Fase
- Ferdigattest
Om byggesaken
Ny frittstående garasje på 35,2 m² med saltak og trepanel som fasademateriale. Garasjen har en mønehøyde på 4,3 meter og gesimshøyde på 3 meter. Bygget består av ett plan med ett garasjerom og en dør, uten vinduer. Fundamentet er ringmur med isolasjon under gulv og rundt ringmur. Garasjen er plassert i tråd med kommuneplanens arealdel og hensyn til dyrket mark, og ligger i et LNF-område. Garasjen har garasjeport og er ikke tilknyttet vann eller avløp.
Produkter og materialer
Isolasjon
Gulv- og ringmursisolasjon
150 mm tykkelse gulv-, mark- og ringmursisolasjon, bredde markisolasjon 1300-2000 mm
Isolasjon under gulv og rundt ringmur
Garasjeport
Garasjeport
Antall: 1
Garasjeport til garasjerommet
Fasade
Trepanel
🧱 Tre
Tre som fasademateriale, saltak
Trepanel til fasade og saltak som taktype
Grunnarbeid
Ringmur og fundament
🧱 Betong
200 mm ringmur med 10 cm kultingshøyde, fundamenteringsdybde 600 mm
Ringmur og fundamentering for garasje
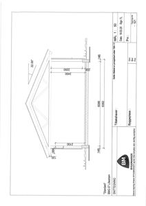
Tak
Saltak
Saltak med mønehøyde 4,3 m og gesimshøyde 3 m
Saltak med angitte høyder
Dører
Ytterdør
Antall: 1
Ytterdør til garasjen
Tømrer
Bygging av garasje
Tømrerarbeid for oppføring av garasje i tre med saltak
Plantegning
Garasje 35.2 m²
Etasje 0 35.2 m²
| Rom | Areal | Vinduer | Dører |
|---|---|---|---|
| Garasjerom G01 | 35.2 m² | 0 | 1 |
Fasader
Garasje
Ukjent
- Materiale
- Tre
- Taktype
- Saltak
- Høyde
- 3.0 m
- Mønehøyde
- 4.3 m
- Vinduer
- 0
- Dører
- 1
- Synlige etasjer
- 1
Hendelser
09.02.2026
Faktura grunnlag - Ferdigattest - ny garasje Eikelandsveien 141
09.02.2026
Eikelandsveien 141, ferdigattest for oppføring av garasje
29.01.2026
Søknad om ferdigattest - garasje
07.08.2025
Faktura grunnlag - oppføring av garasje - Eikelandsveien 141
07.08.2025
Søknad om tillatelse til tiltak uten ansvarsrett - Garasje - Eikelandsveien 141
07.08.2025
Eikelandsveien 141, godkjent oppføring av garasje