NewConstruction Ferdigattest Garasje

Ny bod på 26 m² etter riving av eksisterende på Stasjonsvatnet 4

📍 Stasjonsvatnet 4 , 8519 NARVIK

Nøkkelinfo

Sakstype
Nybygg
Bygningstype
Garasje
Bruksareal
26 m²
Kommune
Narvik
Fylke
Nordland - Nordlánnda
Gnr / Bnr
87 / 103
Saksnummer
25/405
Fase
Ferdigattest

Om byggesaken

Ny frittstående bod på 26 m² oppføres på eiendommen Stasjonsvatnet 4, Narvik, etter riving av en eksisterende bod på 15 m². Bygget har saltak med mønehøyde 4,29 m og gesimshøyde 3,15 m, og er utført i tre. Bodens bruttoareal er 25,2 m². Eiendommen har også en eksisterende hytte på 54 m², og samlet BRA for hytte og bod blir 79,5 m². Tiltaket er plassert innenfor LNFR-område og hensynssone for høyspentlinje, med godkjent dispensasjon. Det foreligger ingen rom for varig opphold i boden, og tiltaket er vurdert uten behov for ytterligere skredrapport. Det er etablert ansvarsrett for prosjektering og utførelse, og ferdigattest er søkt.

Produkter og materialer

Tømrer Innvendige arbeider

Antall: 1

Innvendige tømrerarbeider i bod

Innvendig konstruksjon og ferdigstilling

Tak Saltak

Antall: 1

Saltak på bod, dimensjoner og taktekke ikke spesifisert

Taktekking og konstruksjon for ny bod

Grunnarbeid Fundamentering

Antall: 1

Fundamentering og grunnarbeid for ny bod, inkl. radonsikring

Grunnarbeid og fundamentering iht. prosjektering

Fasade Tre bindingsverk

🧱 Tre

Bindingsverk i tre, saltak med mønehøyde 4,29 m og gesimshøyde 3,15 m

Fasademateriale og konstruksjon for ny bod

Vinduer Fasadevindu

🧱 Tre eller PVC (ikke spesifisert)

Antall: 4

4 vinduer i bod, type ikke spesifisert

Fasadevinduer for lysinnslipp i bod

Overflater Innvendig kledning og maling

Antall: 1

Innvendige overflater, kledning og maling ikke detaljert

Innvendige overflater i bod

Pipe Pipe

Antall: 1

Pipe tilknyttet bod, ikke nærmere spesifisert

Pipe for eventuell ildsted i bod

Elektro Elektrisk installasjon

Antall: 1

Elektrisk installasjon ikke detaljert, men nødvendig for bod

Elektrisk anlegg i bod

VVS Ventilasjon

Antall: 1

Ventilasjon iht. TEK17, ikke detaljert

Ventilasjon i bod

Terrasse Gangvei/adkomst

🧱 Singel/Grus

Antall: 1

Gangvei på egen tomt med singel/grus

Adkomst til bod

Mur Betongfundament

🧱 Betong

Antall: 1

Betongfundament for bod

Betongarbeid for fundament og eventuell pipe

Plantegning

Bod 25.2 m²

Etasje 0 25.2 m²

Rom Areal Vinduer Dører
Åpent ned 6.3 m² 1 0
Åpent ned 6.3 m² 1 0
Åpent ned 6.3 m² 1 0
Åpent ned 6.3 m² 1 0

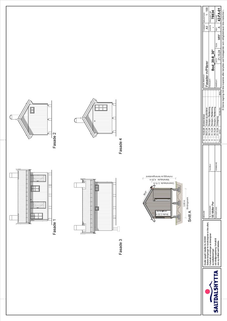
Fasader

Bod

Ukjent
Materiale
Tre
Taktype
Saltak
Høyde
3.1 m
Mønehøyde
4.3 m
Vinduer
1
Dører
0
Synlige etasjer
1

Hendelser

14.04.2026 Søknad om ferdigattest gbnr. 87/103, Stasjonsvatnet 4
24.02.2025 Vedtak - dispensasjon fra bestemmelser i kommuneplan for riving av ekisterende bod og oppføring av ny bod/anneks gbnr. 87/103, Stasjonsvatnet 4
20.02.2025 Søknad om tillatelse til tiltak i et trinn - riving av ekisterende bod og oppføring av nytt anneks gbnr. 87/103, Stasjonsvatnet 4
18.02.2025 Uttalelse fra Bane NOR - riving av bod, oppføring av nytt anneks på gbnr. 87/103
10.02.2025 Ettersending av dokumentasjon - riving av ekisterende bod og oppføring av nytt anneks på gbnr. 87/103
05.02.2025 Ofotbanen - Narvik kommune - riving av bod, oppføring av nytt anneks på gbnr. 87/103