SitePlan
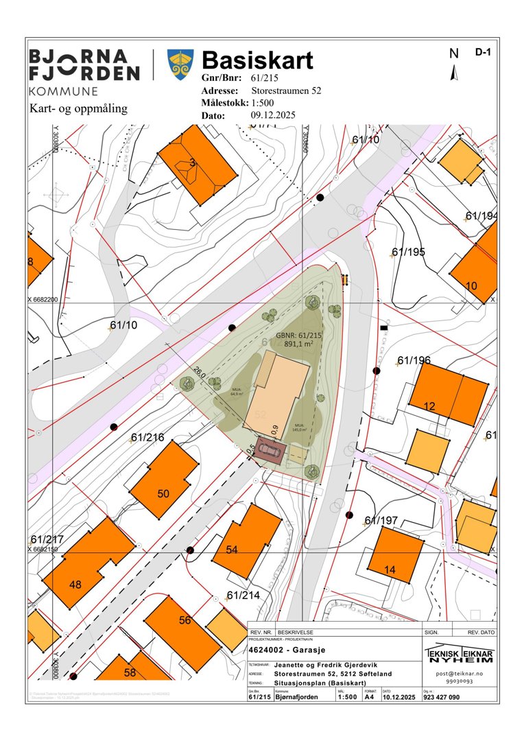
Basiskart (situasjonsplan) som viser eiendomsinndeling, bygninger, veier og topografi for adressen Storestraumen 52.
1 / 2
NewConstruction
Ferdigattest
Garasje
Ny garasje på Storestraumen 52, Søfteland
📍 Storestraumen 52 , 5212 SØFTELAND
Nøkkelinfo
- Sakstype
- Nybygg
- Bygningstype
- Garasje
- Bruksareal
- 21 m²
- Kommune
- Bjørnafjorden
- Fylke
- Vestland
- Gnr / Bnr
- 61 / 215
- Saksnummer
- 2025/26038
- Fase
- Ferdigattest
Om byggesaken
Ny frittstående garasje på ca. 21,3 m² bebygd areal (BRA 19,4 m²) med lav gesimshøyde på 2,88 meter og total høyde 3,08 meter. Garasjen har pulttak med takvinkel på 3° og er plassert nær nabogrense, med samtykke fra nabo. Bygget har ingen oppholdsrom eller vanninstallasjoner og er tilpasset eksisterende bolig med tilsvarende materialbruk. Garasjen ligger delvis innenfor regulert felles avkjørsel, men dispensasjon er gitt da det ikke medfører ulemper for trafikk eller naboer. Tiltaket er ferdigstilt og godkjent med ferdigattest.
Produkter og materialer
Tømrer
Bygging av garasje
Antall: 1
Bygget areal 21,3 m², ingen oppholdsrom eller vanninstallasjoner
Tømrerarbeid for oppføring av garasje
Fasade
Garasjekledning
Antall: 1
Materialbruk tilpasset eksisterende bolig, pulttak med takvinkel 3°
Kledning og tak på garasje tilpasset eksisterende bolig
Tak
Pulttak
Antall: 1
Takvinkel 3°, gesimshøyde 2,88 m, totalhøyde 3,08 m
Tak på garasje med lav takvinkel
Grunnarbeid
Fundamentering
Antall: 1
Fundamentering for garasje på tomt
Elektro
Elektrisk installasjon
Antall: 1
Elektrisk installasjon for garasje (lys, stikkontakter)
Dører
Garasjeport
Antall: 1
Garasjeport for biladkomst
Hendelser
21.04.2026
Ferdigattest - 61/215 - Storestraumen 52 - Nybygg garasje
20.04.2026
61/215 - Søknad om ferdigattest
12.02.2026
Vedtak om dispensasjon og løyve utan ansvarsrett - 61/215 - Storestraumen 52 - Nybygg garasje
22.12.2025
61/215 - Storestraumen 52 - Søknad om ettergodkjenning av garasje