NewConstruction Rammetillatelse Garasje

Ny frittstående garasje med bod i Tore Lillebostads veg 19

📍 Tore Lillebostads veg 19 , 6457 BOLSØYA

Nøkkelinfo

Sakstype
Nybygg
Bygningstype
Garasje
Bruksareal
92 m²
Kommune
Molde
Fylke
Møre og Romsdal
Gnr / Bnr
19 / 45
Saksnummer
26/01354
Fase
Rammetillatelse

Om byggesaken

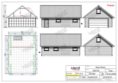
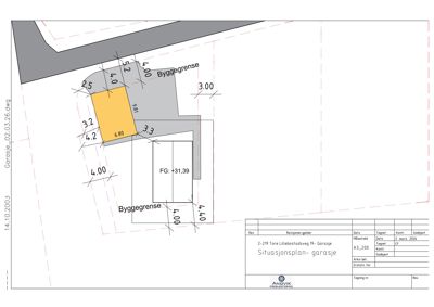
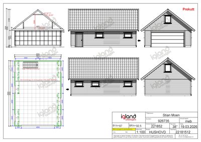
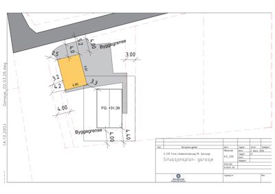
Ny frittstående garasje på 92,5 m² BRA og 67 m² BYA med saltak og trepanel som fasademateriale. Garasjen har en mønehøyde på 5,7 meter og gesimshøyde på 2,9 meter. Bygget inneholder en garasje i første etasje og en bod med intern trapp til andre etasje som skal brukes til lagring. Fundamentet består av ringmur i Leca eller betong med anbefalt tykkelse 15 cm, og støpt gulv i vater. Garasjen har garasjeporter på nord- og østfasade, og flere vinduer og dører på sør- og vestfasade. Plasseringen er innenfor regulert byggegrense med dispensasjon fra byggegrense mot veg. Prosjektet inkluderer grunnarbeid, murarbeid, tømrerarbeid og montering av trekonstruksjoner.

Produkter og materialer

Dører Ytterdør og garasjeport

Antall: 3

1 dør på sørfasade, 2 garasjeporter på nord- og østfasade

Ytterdør til bod og to garasjeporter

Grunnarbeid Graving og planering

Graving for byggegrop, adkomst og utomhusanlegg, tilfylling av bærelag og planering av tomt

Grunnarbeid for garasje og tilhørende uteområder

Tak Saltak

🧱 Tre, taktekking ikke spesifisert

Takvinkel 38 grader, saltak med mønehøyde 5,7 m og gesimshøyde 2,9 m

Saltakskonstruksjon for garasje

Mur Ringmur i Leca eller betong

🧱 Leca eller betong

15 cm tykkelse, forankret til såle, tykkelse 150-250 mm Leca eller 100-250 mm betong

Ringmur for fundamentering av garasje, tilpasset portåpning med armering og støping i betong ved port

Fasade Trepanel

🧱 Tre

Tre som fasademateriale på alle fasader

Utvendig kledning i trepanel

Trapper Innvendig trapp til bod i 2. etasje

Antall: 1

Trapp mellom 1. og 2. etasje i garasje for tilgang til bod

Innvendig trapp til bod i andre etasje

Tømrer Tømrerarbeid og montering av trekonstruksjoner

🧱 Tre

Montering av trekonstruksjoner for garasje og bod

Tømrerarbeid for bygging av garasje og bod

Vinduer Fasadevindu

Antall: 6

2 vinduer på sørfasade, 3 på vestfasade, 1 på østfasade

Fasadevindu i garasje og bod

Betong Støpt gulv i garasje

🧱 Betong

Støpt gulv i vater, eventuelt med fall etter avtale

Betonggulv i garasje med anbefalt utførelse i vater

Plantegning

Garasje 92.5 m²

Etasje 1 92.5 m²

Rom Areal Vinduer Dører
Garasje 101 92.5 m² 0 0

Fasader

Garasje

Nord
Materiale
Tre
Taktype
Saltak
Høyde
2.9 m
Mønehøyde
5.6 m
Vinduer
0
Dører
0
Synlige etasjer
1
Sør
Materiale
Tre
Taktype
Saltak
Høyde
2.9 m
Mønehøyde
5.6 m
Vinduer
2
Dører
1
Synlige etasjer
1
Vest
Materiale
Tre
Taktype
Saltak
Høyde
2.9 m
Mønehøyde
5.6 m
Vinduer
3
Dører
0
Synlige etasjer
1
Øst
Materiale
Tre
Taktype
Saltak
Høyde
2.9 m
Mønehøyde
5.6 m
Vinduer
1
Dører
0
Synlige etasjer
1

Hendelser

09.04.2026 26/01354-6 19/45 Tore Lillebostads veg 19, tillatelse til garasje
09.04.2026 26/01354-5 19/45 Tore Lillebostad veg 19, plantegning
12.03.2026 26/01354-4 19/45 Tore Lilliebostads veg 19, oppdatert situasjonsplan
06.02.2026 26/01354-3 19/45 Tore Lillebostads veg 19, foreløpig tilbakemelding på søknad om nytt bygg - under 70 m2 - garasje
31.01.2026 26/01354-2 Tore Lillebostads veg 19, melding om mottatt søknad
30.01.2026 26/01354-1 19/45/0/0 Tore Lillebostads veg 19, nytt bygg - Under 70 m2 - garasje - søknad om tillatelse i ett trinn