Demolition Igangsettingstillatelse Garasje

Ny garasje med omlegging av adkomstvei i Kjøvangveien 112

📍 Kjøvangveien 112 , 1553 SON

Nøkkelinfo

Sakstype
Riving
Bygningstype
Garasje
Bruksareal
41 m²
Kommune
Vestby
Fylke
Akershus
Gnr / Bnr
158 / 54
Saksnummer
24/04515
Fase
Igangsettingstillatelse

Om byggesaken

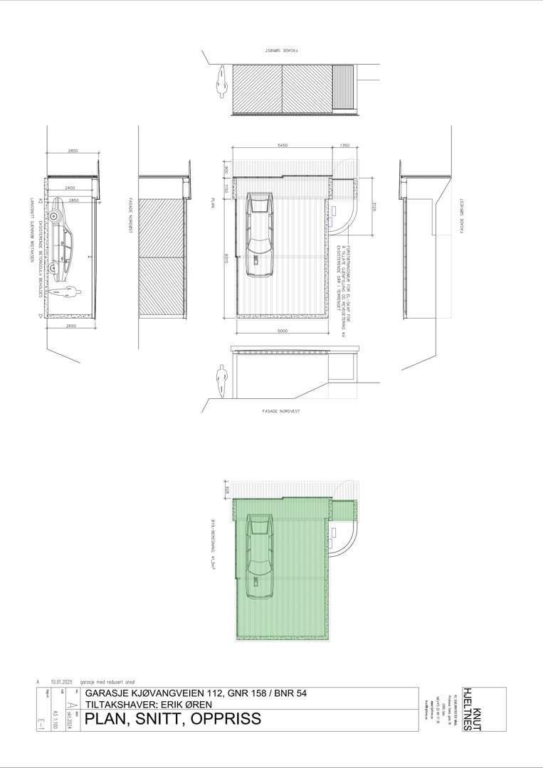
Ny frittliggende garasje på 41,3 m² BYA oppføres på eiendommen Kjøvangveien 112, med vegger av betong og tjæret treverk og sedumtak. Garasjen erstatter en eksisterende garasje på 33,1 m² BYA, og benytter eksisterende betongsåle for å unngå terrenginngrep. Bygget er plassert lenger fra strandlinjen og skjermes av terreng og vegetasjon, noe som reduserer visuell eksponering. Tiltaket inkluderer riving av to utedoer og en paviljong som avbøtende tiltak, samt omlegging av adkomstvei for å bedre allmennhetens tilgang til offentlig badeplass. Garasjen har en stor skyveport og er tilrettelagt for oppbevaring av bil, sykler, kajakker og hageredskaper. Området er i strandsonen med byggeforbud, men tiltaket er gitt dispensasjon med vilkår for materialbruk og plassering.

Produkter og materialer

Grunnarbeid Omlegging av adkomstvei

Omlegging av adkomstvei fra eksisterende til tidligere midlertidig godkjent vei, tilbakeføring av opprinnelig vei og fjerning av hekk og port

Grunnarbeid for ny adkomst og parkeringsareal for allmennheten

Tak Sedumtak

🧱 Sedum

Sedumtak på ny garasje for å tilpasse bygget til naturen

Grønt tak med sedum på garasjen

Dører Skyveporter

Antall: 2

Store skyveporter på to sider for fleksibel tilgang

Skyveporter for bil og utstyr i garasje

Fasade Veggkledning

🧱 Tjæret treverk

Vegger av betong og tjæret treverk som demper bygget og tilpasser det omgivelsene

Vegger i betong og tjæret treverk for ny garasje

Betong Betongsåle

🧱 Betong

Eksisterende betongsåle fra gammel garasje benyttes for å unngå terrenginngrep

Betongsåle gjenbrukes for ny garasje

Maling Tjæret overflatebehandling

🧱 Tjære

Tjæret treverk for veggkledning

Overflatebehandling av treverk med tjære

Riving Utedo og paviljong

Antall: 3

Riving av to utedoer og en paviljong som avbøtende tiltak

Riving av eksisterende utedoer og paviljong for å redusere bebyggelse

Tømrer Garasjekonstruksjon

🧱 Treverk

Tømrerarbeid for oppføring av garasje med treverk og betongvegger

Tømrerarbeid for ny garasje

Plantegning

Garasje 41.3 m²

Etasje 1 41.3 m²

Rom Areal Vinduer Dører
Garasje 101 41.3 m² 0 1

Hendelser

20.03.2026 24/04515-20 Igangsettingstillatelse - 158/54/0/0 - Kjøvangveien 112 - Riving og oppføring av ny garasje
13.03.2026 24/04515-19 Søknad om igangsettingstillatelse - 158/54/0/0 - Kjøvangveien 112 - Riving og oppføring av ny garasje
17.10.2025 24/04515-18 Tiltaket er ikke søknadspliktig - 158/54/0/0 - Kjøvangveien 112 - Riving og oppføring av ny garasje
16.10.2025 24/04515-17 Oppfølgingsspørsmål vedrørende telt for mellomlagring - 158/54/0/0 - Kjøvangveien 112 - Riving og oppføring av ny garasje
01.10.2025 24/04515-16 Spørsmål vedrørende telt for mellomlagring - 158/54/0/0 - Kjøvangveien 112 - Riving og oppføring av ny garasje
08.09.2025 24/04515-15 Rammetillatelse med dispensasjon - 158/54/0/0 - Kjøvangveien 112 - Riving og oppføring av ny garasje
14.08.2025 24/04515-14 Uttalelse fra Akershus fylkeskommune - Søknad om dispensasjon - 158/54/0/0 - Kjøvangveien 112 - Riving og oppføring av ny garasje
29.07.2025 24/04515-13 Uttalelse fra Statsforvalteren - Dispensasjon for riving og oppføring av ny garasje - 158/54/0/0 - Kjøvangveien 112 - Riving og oppføring av ny garasje
18.07.2025 24/04515-12 Ber om uttalelse - 158/54/0/0 - Kjøvangveien 112 - Riving og oppføring av ny garasje
27.05.2025 24/04515-11 Oversender signert overenskomst om omlegging av vei - 158/54/0/0 - Kjøvangveien 112 - Riving og oppføring av ny garasje