Facade
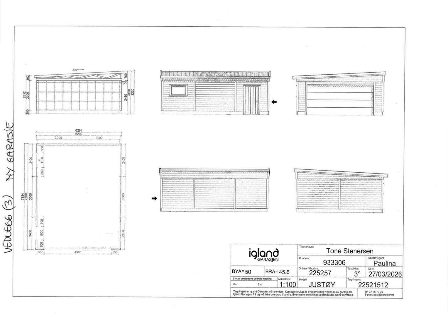
Fasadetegning som viser utsiden av en garasje sett fra fire ulike vinkler (front, side, og to perspektiver).
1 / 2
Demolition
Soeknad
Garasje
Ny frittliggende garasje i Målselv, Gnr 32 Bnr 108
📍 Mellombygdveien 1761 , 9336 RUNDHAUG
Nøkkelinfo
- Sakstype
- Riving
- Bygningstype
- Garasje
- Bruksareal
- 46 m²
- Kommune
- Målselv
- Fylke
- Troms - Romsa - Tromssa
- Gnr / Bnr
- 32 / 108
- Saksnummer
- 2026/865
- Fase
- Søknad
Om byggesaken
Ny frittliggende garasje med saltak og trekledning oppføres på samme plassering som eksisterende garasje. Garasjen har ett plan med gesimshøyde rundt 2,4-2,8 meter og mønehøyde rundt 3,1-3,5 meter. Bygget har et bruksareal under 50 m² og inneholder garasjeport og dør, samt ett vindu på sørfasaden. Garasjen er prosjektert i henhold til TEK17 med forenklede brannkrav for små byggverk uten varig opphold. Materialer fra riving av eksisterende garasje vil i størst mulig grad gjenbrukes, og avfall håndteres forskriftsmessig.
Produkter og materialer
Grunnarbeid
Fundamentering
Grunnarbeid og fundamentering for ny garasje
Vinduer
Fasadevindu
Antall: 1
Ett vindu på sørfasade
Brannvern
Brannsikring
Prosjektert i henhold til TEK17 kapittel 11 for små byggverk
Brannsikring i henhold til TEK17 for små frittliggende bygg
Garasjeport
Garasjeport
Antall: 1
Garasjeport på nord/øst/vest fasade
Dører
Ytterdør
Antall: 2
To ytterdører, en på nordfasade og en på sørfasade
Tømrer
Bygging av garasjeskall
🧱 Tre
Tømrerarbeid for oppføring av garasje i tre
Maling
Utvendig maling
Maling av trefasader utvendig
Avfallshåndtering
Sortering og levering
Sortering og levering av bygningsavfall til godkjent mottak
Håndtering av avfall ved riving av eksisterende garasje
Betong
Gulvplate
🧱 Betong
Betongplate som gulv i garasje
Tak
Saltak
Saltak med mønehøyde ca. 3,1-3,5 m
Saltak på garasje
Fasade
Trekledning
🧱 Tre
Trekledning på alle fasader
Ytterkledning i tre på garasjens fasader
Fasader
Garasje
Nord
- Materiale
- Tre
- Taktype
- Saltak
- Høyde
- 2.8 m
- Mønehøyde
- 3.5 m
- Vinduer
- 0
- Dører
- 1
- Synlige etasjer
- 1
Sør
- Materiale
- Tre
- Taktype
- Saltak
- Høyde
- 2.5 m
- Mønehøyde
- 3.1 m
- Vinduer
- 1
- Dører
- 1
- Synlige etasjer
- 1
Øst
- Materiale
- Tre
- Taktype
- Saltak
- Høyde
- 2.4 m
- Mønehøyde
- 3.1 m
- Vinduer
- 0
- Dører
- 0
- Synlige etasjer
- 1
Vest
- Materiale
- Tre
- Taktype
- Saltak
- Høyde
- 2.4 m
- Mønehøyde
- 3.1 m
- Vinduer
- 0
- Dører
- 0
- Synlige etasjer
- 1
Hendelser
20.04.2026
32/108 - Søknad om tillatelse til tiltak