Extension Soeknad Garasje

Ny garasje og tilbygg til bolig i Åsanveien 14, Sortland

📍 Åsanveien 14 , 8415 SORTLAND

Nøkkelinfo

Sakstype
Tilbygg
Bygningstype
Garasje
Bruksareal
198 m²
Boenheter
1
Kommune
Sortland - Suortá
Fylke
Nordland - Nordlánnda
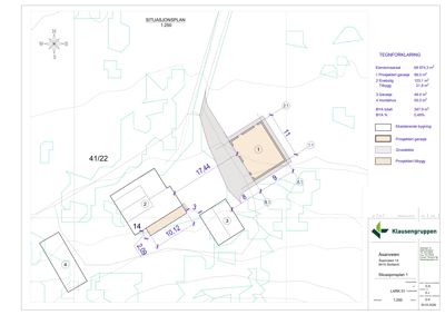
Gnr / Bnr
41 / 22
Saksnummer
2026/2122
Fase
Søknad

Om byggesaken

Prosjektet omfatter oppføring av en ny frittstående garasje på 87,4 m² med to dører og uten vinduer, samt et tilbygg til eksisterende enebolig. Tilbygget har to etasjer med saltak og flatt tak, utført i tre, og inkluderer blant annet bod, dusj/WC, gang, soverom, stue, kjøkken og trapper. Fasaden har flere vinduer og dører, samt balkonger og pipe. Grunnarbeid og geoteknisk vurdering viser at området er stabilt uten behov for særskilte tiltak. Bygget vil ha tilknytning til privat vannverk og håndtere overvann til terreng. Totalt areal for tilbygg er ca. 110,6 m², og garasjen 87,4 m².

Produkter og materialer

Fasade Trepanel

🧱 Tre

Fasade i tre med saltak og flatt tak, inkludert balkonger og pipe

Trepanel til fasade på tilbygg med saltak og flatt tak

Ventilasjon Ventilasjonssystem

Ventilasjon i tilbygg

Maling Utvendig og innvendig maling

Maling av fasade og innvendige flater

Elektro Elektrisk anlegg

Elektrisk installasjon i tilbygg og garasje

Garasjeport Garasjeporter

Antall: 1

Garasje på 87,4 m² med 2 dører, ingen vinduer

Garasjeport(er) til ny garasje

Dører Ytterdører

Antall: 4

Dører i tilbygg og garasje, totalt 4 ytterdører

Ytterdører til tilbygg og garasje

Pipe Pipe

Antall: 1

Pipe på tilbygg

Pipe til tilbygg

Vinduer Fasadevindu

Antall: 7

Vinduer i tilbygg, fordelt på fasader sør og vest

Fasadevindu til tilbygg

Grunnarbeid Grunnarbeid og fundamentering

Grunnarbeid i henhold til geoteknisk rapport, stabil grunn uten særskilte tiltak

Grunnarbeid og fundamentering for garasje og tilbygg

Betong Fundament og dekker

Betongfundament og dekker for garasje og tilbygg

VVS Sanitærinstallasjoner

Dusj/WC i tilbygg, tilknytning til privat vannverk, ingen innlagt vann i garasje

VVS-installasjoner for tilbyggets bad og WC

Tak Saltak og flatt tak

Saltak på sørfasade og flatt tak på vestfasade

Taktekking for saltak og flatt tak på tilbygg

Gulv Innvendige gulv

Gulv i tilbyggets rom og garasje

Trapper Innvendig trapp

Antall: 1

Trapp i tilbygg, 2.4 m²

Innvendig trapp i tilbygg

Tømrer Bygningskonstruksjon

🧱 Tre

Tømrerarbeid for tilbygg og garasje i tre

Tømrerarbeid for konstruksjon av tilbygg og garasje

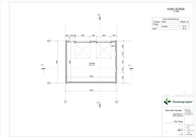
Plantegning

Garasje 87.4 m²

Etasje 1 87.4 m²

Rom Areal Vinduer Dører
Garasje 1 87.4 m² 0 2

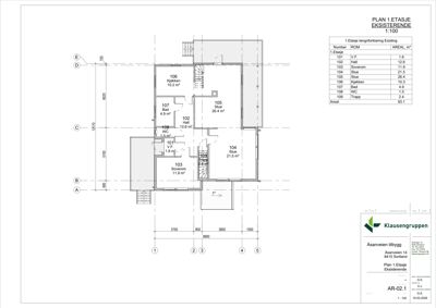
Enebolig 93.1 m²

Etasje 1 93.1 m²

Rom Areal Vinduer Dører
V.F. 101 1.6 m² 0 1
Hall 102 12.6 m² 0 2
Soverom 103 11.9 m² 1 1
Stue 104 21.5 m² 2 1
Stue 105 26.4 m² 1 1
Kjøkken 106 10.3 m² 1 1
Bad 107 4.9 m² 0 1
WC 108 1.5 m² 0 1
Trapp 109 2.4 m² 0 0

Fasader

Tilbygg

Sør
Materiale
Tre
Taktype
Saltak
Høyde
2.9 m
Mønehøyde
34.8 m
Vinduer
3
Dører
1
Balkonger
1
Synlige etasjer
2
Vest
Materiale
Tre
Taktype
Flatt tak
Høyde
2.9 m
Mønehøyde
34.8 m
Vinduer
3
Dører
1
Balkonger
1
Synlige etasjer
2

Hendelser

20.04.2026 Søknad om tillatelse i ett trinn