Facade
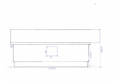
En håndtegnet fasadeopprikk (opprikk) av en garasje, med angitte mål i millimeter.
1 / 12
Extension
Ferdigattest
Garasje
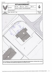
Garasjetilbygg på Aurhølå 3, Mauseidvåg
📍 Aurhølå 3 , 6036 MAUSEIDVÅG
Nøkkelinfo
- Sakstype
- Tilbygg
- Bygningstype
- Garasje
- Bruksareal
- 50 m²
- Kommune
- Sula
- Fylke
- Møre og Romsdal
- Gnr / Bnr
- 69 / 113
- Saksnummer
- 2020/1866
- Fase
- Ferdigattest
Om byggesaken
Nybygg av garasjetilbygg med saltak på eiendommen Aurhølå 3 i Mauseidvåg. Tilbygget har et bebygd areal på 49,8 m² og et bruksareal på ca. 45 m², med en gesimshøyde på ca. 2,4 meter og mønehøyde på ca. 3,4 meter. Bygget er plassert i tilknytning til eksisterende bolig, tilpasset nordvestre hjørne av huset, og følger regulert byggegrense mot vei. Garasjetilbygget har en garasjeport og en dør, og er ikke beregnet for opphold. Bygget er kledd og har takstein som taktekking. Tiltaket er ferdigstilt og det foreligger ferdigattest.
Produkter og materialer
Grunnarbeid
Fundamentering og grunnarbeid
Grunnarbeid for garasjetilbygg
Maling
Utvendig maling
Maling av utvendig kledning på garasjetilbygg
Betong
Betongplate
Betongplate som fundament for garasjetilbygg
Dører
Ytterdør
Antall: 1
Ytterdør til garasjetilbygg
Elektro
Elektrisk anlegg
Elektrisk installasjon i garasjetilbygg
Isolasjon
Isolasjon for vegger og tak
Isolasjon for vegger og tak i garasjetilbygg
Tømrer
Tømrerarbeid
Tømrerarbeid for oppføring av garasjetilbygg
Garasjeport
Garasjeport
Antall: 1
Portmål 4828 mm x 2081 mm
Garasjeport til garasjetilbygg
Tak
Takstein
Antall: 68
Taktekking med takstein på ca. 67,8 m²
Fasade
Kledning
Antall: 59
Kledning til garasjetilbygg på ca. 59 m²
Fasader
Garasje
Ukjent
- Taktype
- Saltak
- Høyde
- 2.7 m
- Mønehøyde
- 3.4 m
- Vinduer
- 0
- Dører
- 1
- Synlige etasjer
- 1
Dobbel Garasje
Ukjent
- Materiale
- Tre
- Taktype
- Saltak
- Takmat.
- Tegl
- Høyde
- 2.4 m
- Mønehøyde
- 5.3 m
- Vinduer
- 0
- Dører
- 1
- Synlige etasjer
- 1
Hovedbygg
Vest
- Vinduer
- 1
- Dører
- 0
- Synlige etasjer
- 1
Hendelser
15.04.2026
Gnr 69 bnr 113 - E-postsvar - ferdigattest og leilighet
14.04.2026
Gnr 69 bnr 113 - Ferdigattest - Garasje-tilbygg
14.04.2026
gnr 69 bnr 113 - vedrørande ferdigattest
25.03.2022
Gnr 69 bnr 113 - Antanas Jankunas - Garasjetilbygg
18.08.2021
Gnr 69 bnr 113 - Oversending vedtak
17.08.2021
Gnr 69 bnr 113 - Tegninger garasjetilbygg 19.05.21
17.08.2021
Gnr 69 bnr 113 - Signert søknad
07.07.2021
Nabovarsel
10.11.2020
Gnr 69 bnr 113 - Epost SV: rev tegninger- Aurhølå 3
28.10.2020
Gnr 69 bnr 113 - Rev garasje tegninger 27.10.20
16.09.2020
Gnr 69 bnr 113 - Antanas Jankunas - Søknad om tillatelse til tiltak - garasje