Extension UnderBehandling Garasje

Tilbygg og uthus med dispensasjon i Buskerudveien 169, Drammen

📍 Buskerudveien 169 , 3027 DRAMMEN

Nøkkelinfo

Sakstype
Tilbygg
Bygningstype
Garasje
Bruksareal
68 m²
Boenheter
1
Kommune
Drammen
Fylke
Buskerud
Gnr / Bnr
117 / 590
Saksnummer
22/14038
Fase
Under behandling

Om byggesaken

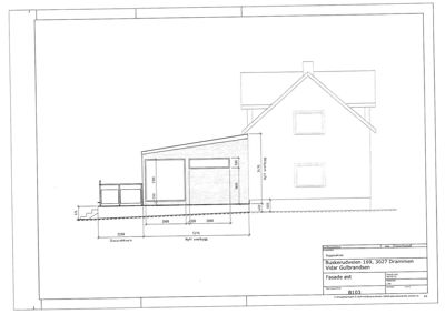
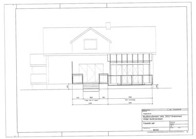
Tiltaket består av oppføring av et tilbygg/uthus med samlet bebygd areal på ca. 67,5 m² til eksisterende enebolig i Buskerudveien 169, Drammen. Tilbygget inkluderer en delvis overbygget terrasse med skyvedør i front, levegg, glassrekkverk og trapp ned til hagen. Bygget er tilpasset eksisterende bolig med saltak og tre som fasademateriale. Tiltaket er plassert 43,5 meter fra Drammenselva, innenfor byggeforbudssonen på 50 meter, og det er gitt dispensasjon fra kommuneplanens arealdel og byggegrense mot fylkesveg. Geotekniske vurderinger bekrefter tilfredsstillende grunnforhold til tross for kvikkleirefare. Bygget har god arkitektonisk utforming og visuelle kvaliteter, og tiltaket forholder seg til tillatt tomteutnyttelse på 30 % BYA. Det er én boenhet i eksisterende bolig, og tiltaket inkluderer trapper og rekkverk som del av konstruksjonen.

Produkter og materialer

Maling Utvendig maling

🧱 Maling

Overflatebehandling av trefasade

Maling av trefasade for beskyttelse og estetikk

Rekkverk Glassrekkverk

🧱 Glass og metall

Glassrekkverk på terrasse

Rekkverk i glass for terrasse

Tømrer Tømrerarbeider og montering av trekonstruksjoner

🧱 Tre

Utført av Tømmermester Sverre Hannevold AS og NOVA BYGG LIER AS

Tømrerarbeid for tilbygg og terrasse

Terrasse Overbygget terrasse med skyvedør

🧱 Tre og glass

Antall: 1

Terrasse på 67,5 m², delvis overbygget med tak og skyvedør i front

Ny terrasse med overbygg og innglassing, trinnfri adkomst

Veg og grunnarbeid Grunnarbeider

Utført av Ivar Tanum Entreprenør AS

Grunnarbeid og vegarbeid i forbindelse med tiltaket

Trapper Utvendig trapp

🧱 Tre

Antall: 1

Trapp ned til hage fra terrasse

Utvendig trapp i tre som tilknytning til terrasse

Fasade Tre fasade med saltak

🧱 Tre

Saltak, gesimshøyde ca. 3.47-6 m, mønehøyde 8.5 m

Fasade i tre med saltak som tilpasses eksisterende bolig

Grunnarbeid Fundamentering og grunnarbeid

Geoteknisk vurdering og fundamentering i kvikkleireområde, betongfundamenter <1,5 m under terreng

Grunnarbeid med fundamentering tilpasset kvikkleireforhold

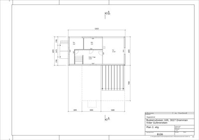
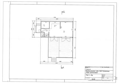
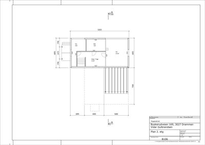
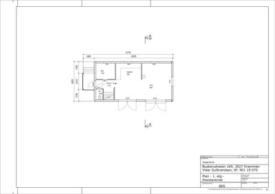
Plantegning

Enebolig 187.5 m²

Etasje 1 120.5 m²

Rom Areal Vinduer Dører
Stue 101 38.0 m² 2 1
Kjøkken 102 10.0 m² 0 1
SOV 103 7.5 m² 1 1
Entre/Trapp 104 7.7 m² 0 1
WC 105 1.8 m² 0 1

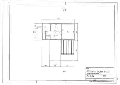
Etasje 2 67.0 m²

Rom Areal Vinduer Dører
Sov 201 14.0 m² 1 1
Bad 202 12.0 m² 0 1
Sov 203 24.5 m² 1 1
Gang/ Trapp 204 16.5 m² 0 2

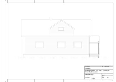
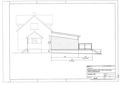
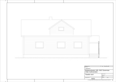
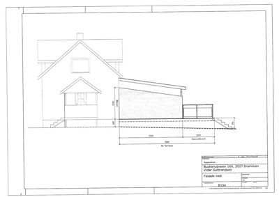
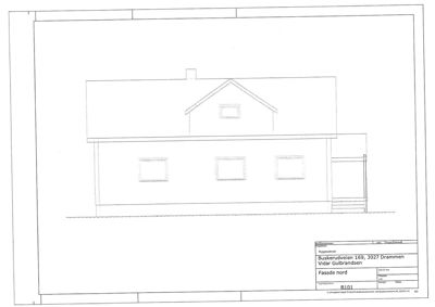
Fasader

Enebolig

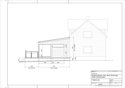
Øst
Materiale
Tre
Taktype
Saltak
Høyde
3.5 m
Vinduer
3
Dører
1
Balkonger
1
Synlige etasjer
2
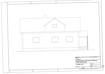
Nord
Materiale
Tre
Taktype
Saltak
Vinduer
4
Dører
0
Synlige etasjer
2
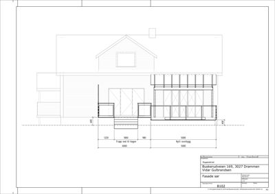
Sør
Materiale
Tre
Taktype
Saltak
Vinduer
1
Dører
0
Synlige etasjer
2
Vest
Materiale
Tre
Taktype
Saltak
Høyde
6.0 m
Mønehøyde
8.5 m
Vinduer
2
Dører
1
Synlige etasjer
2

Hendelser

20.04.2026 Buskerudveien 169 Søknad om ferdigattest 117/590
29.11.2023 Buskerudveien 169, Supplering av søknad
27.10.2023 Buskerudveien 169 - Vedrørende krav om avfallsplan
28.08.2023 Buskerudveien 169, Ytterligere spørsmål vedrørende krav om avfallsplan
28.08.2023 Buskerudveien 169, Vedrørende krav om avfallsplan
28.08.2023 BYGG-22_00850 Buskerudveien 169 - Utsettelse av frist
28.08.2023 BYGG-22-00850-12 Buskerudveien 169 - Utvidet frist i byggesaken
28.08.2023 BYGG-22-00850-8 - Utsettelse av saksbehandlingsfrist
25.08.2023 Buskerudveien 169, tillatelse til oppføring av tilbygg/uthus med samlet areal større enn 50 m2
23.08.2023 Saksprotokoll Hovtt, 22082023, Sak 101/23, Buskerudveien 169, dispensasjon fra Kommunedelplan for Drammenselva, § 1. Plankrav: krav til reguleringsplan for prosjekter som er innenfor eller berører 50-metersbeltet fra strandlinjen
08.06.2023 Buskerudveien 169, Uttalelse til søknad om dispensasjon fra kommuneplan for oppføring av tilbygg
11.05.2023 Buskerudveien 169, anmodning om uttalelse fra Viken Fylkeskommune og statsforvalteren i Oslo og Viken
08.05.2023 Buskerudveien 169 Supplering av søknad 117/590
14.04.2023 Buskerudveien 169, anmodning om utsettelse av frist
03.04.2023 Buskerudveien 169 Supplering av søknad 117/590
01.03.2023 Buskerudveien 169, vi trenger flere opplysninger for å behandle søknaden din
09.02.2023 Buskerudveien 169, melding om mottatt søknad
09.02.2023 Buskerudveien 169, melding om mottatt søknad
08.02.2023 Buskerudveien 169 Søknad om tillatelse i ett trinn 117/590
01.02.2023 Buskerudveien 169, Ber om fristforlengelse
14.12.2022 Buskerudveien 169, Søknad om fristforlengelse
13.12.2022 Buskerudveien 169, henvendelse
30.09.2022 Buskerudveien 169, vi trenger flere opplysninger for å behandle søknaden din
19.09.2022 Buskerudveien 169, Komplettering av søknad
20.07.2022 Buskerudveien 169, Vi trenger flere opplysninger for å behandle søknaden din
13.07.2022 Buskerudveien 169, revidert nabovarsel
11.07.2022 Buskerudveien 169, nye tegninger og situasjonskart
08.07.2022 Buskerudveien 169, Vi trenger flere opplysninger for å behandle søknaden
09.06.2022 Buskerudveien 169, Kopi: Vedtak - Dispensasjon fra byggegrense - Oppføring av terrasse, takoverbygg og levegg - Fv 2731
02.05.2022 Buskerudveien 169, Søknad om dispensasjon fra byggegrense