Facade
Fasadetegning og snitt for en garasje med oppgitt mål og skala.
1 / 7
Extension
Rammetillatelse
Garasje
Ny frittstående garasje med flyttet innkjøring i Bysvegen 9, Trevatn
📍 Bysvegen 9 , 2864 FALL
Nøkkelinfo
- Sakstype
- Tilbygg
- Bygningstype
- Garasje
- Bruksareal
- 67 m²
- Kommune
- Søndre Land
- Fylke
- Innlandet
- Gnr / Bnr
- 62 / 69
- Saksnummer
- 2026/1141
- Fase
- Rammetillatelse
Om byggesaken
Ny frittstående garasje på 45,6 m² BRA fordelt på to etasjer med saltak og tre som fasademateriale. Garasjen har et isolert bodrom på 5,7 m² i første etasje og et loftsrom på 21,4 m² i andre etasje. Bygget har to vinduer og to dører i første etasje, samt en garasjeport. Garasjen plasseres inntil 1 meter fra eiendomsgrensen i tomtens nordøstlige del, med flyttet innkjøring ca. 8 meter østover for bedre terrengtilpasning og trafikkmønster. Terrenget flater ut i området, noe som muliggjør plassering uten store terrenginngrep eller sprengning. Tiltaket gir økt avstand mellom byggene, bedre brannsikkerhet og en helhetlig tomtedisponering.
Produkter og materialer
Isolasjon
Isolert bod
Isolert bod på 5,7 m² i første etasje
Isolasjon til bod i garasje
Fasade
Trepanel
🧱 Tre
Fasade i tre med saltak
Trepanel til fasade og saltak til tak
Garasjeport
Garasjeport
Antall: 1
Garasjeport i fasade
Vinduer
Fasadevindu
Antall: 2
To fasadevindu i første etasje
Trapper
Innvendig trapp til loftsrom
Antall: 1
Innvendig trapp til loftsrom på 21,4 m²
Betong
Fundament og plate
Betongfundament og plate for garasje
Tømrer
Bygningskonstruksjon
🧱 Tre
Tømrerarbeid for oppføring av garasje og loftsrom
Tak
Saltak
Saltak med gesimshøyde 2,8 m og mønehøyde 4,7 m
Saltak til garasjen
Grunnarbeid
Tomtearbeid og fundamentering
Terrengtilpasning uten store sprengnings- eller masseforflytningsarbeider
Grunnarbeid for garasje med tilpasning til naturlig terreng
Dører
Ytterdør
Antall: 2
To dører i første etasje
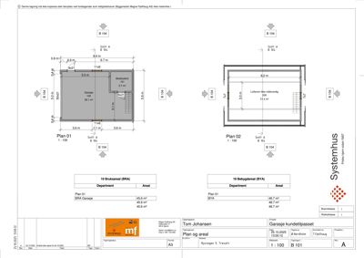
Plantegning
Garasje 67.0 m²
Etasje 1 45.6 m²
| Rom | Areal | Vinduer | Dører |
|---|---|---|---|
| Garasje 100 | 39.1 m² | 2 | 2 |
| Bod 101 | 5.7 m² | 0 | 1 |
Etasje 2 21.4 m²
| Rom | Areal | Vinduer | Dører |
|---|---|---|---|
| Loftsrom 200 | 21.4 m² | 0 | 0 |
Fasader
Garasje
Ukjent
- Materiale
- Tre
- Taktype
- Saltak
- Høyde
- 2.8 m
- Mønehøyde
- 4.7 m
- Vinduer
- 1
- Dører
- 1
- Synlige etasjer
- 1
Hendelser
17.04.2026
Dispensasjon fra reguleringsplan for Bysmarka og Ringstad hyttefelt
17.04.2026
Fakturagrunnlag dispensasjon fra reguleringsplan - Gbnr.62/69
24.03.2026
Søknad om dispensasjon for flytting av innkjørsel og avvik fra byggegrense – GBNR 62/69