Photo
Fotografier av et innendørs rom (spisestue) med møbler, gulv og utsikt gjennom vinduer.
1 / 7
Extension
Soeknad
Garasje
Oppføring av bod/reidskapshus ved Gate 3, Nr 124
📍 Gate 3 124 , 6700 MÅLØY
Nøkkelinfo
- Sakstype
- Tilbygg
- Bygningstype
- Garasje
- Bruksareal
- 12 m²
- Kommune
- Kinn
- Fylke
- Vestland
- Gnr / Bnr
- 316 / 160
- Saksnummer
- 2020/6737
- Fase
- Søknad
Om byggesaken
Ny bod/reidskapshus på ca. 12 m² oppføres som tilbygg til eksisterende altan ved enebolig på Gate 3, Nr 124. Bygget er et mindre uthus med enkel rominndeling og tilknytning til eksisterende boligstruktur. Prosjektet inkluderer en trapp og en balkong i tilknytning til bygget. Bygget er planlagt med nødvendige dører og vinduer for funksjonalitet og lysinnslipp. Det er søkt om ferdigattest, og dokumentasjonen inkluderer plantegninger og bilder som viser tiltakets omfang og utførelse.
Produkter og materialer
Tømrer
Bygningskonstruksjon
Tømrerarbeid for oppføring av bod/reidskapshus
Fasade
Uthus-kledning
Kledning til nytt uthus/bod som tilbygg til eksisterende altan
Betong
Grunnmur/fundament
Fundament og grunnmur for nytt uthus
Dører
Ytterdør
Antall: 3
Dører til bod/reidskapshus og tilknytning til altan
Tak
Taktekking
Taktekking for uthus, tilpasset eksisterende bygg
Trapper
Utvendig trapp
Antall: 1
Trapp tilknyttet tilbygg og altan
Vinduer
Fasadevindu
Antall: 3
Vinduer i bod/reidskapshus for lysinnslipp
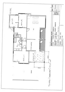
Plantegning
Enebolig 12.0 m²
Etasje 1 12.0 m²
| Rom | Areal | Vinduer | Dører |
|---|---|---|---|
| Entré 101 | 0.0 m² | 0 | 1 |
| Kontor 102 | 0.0 m² | 0 | 1 |
| Stue 103 | 0.0 m² | 2 | 1 |
| Kjøkken 104 | 0.0 m² | 0 | 1 |
| Bad 105 | 10.3 m² | 0 | 1 |
| Soverom 106 | 0.0 m² | 1 | 1 |
| Balkong 107 | 0.0 m² | 0 | 1 |
Hendelser
17.04.2026
Søknad om ferdigattest gbnr 316/160