Extension Rammetillatelse Garasje

Tilbygg med varmestue til toalettbygg på Golfsvingen 1

📍 Golfsvingen 1 , 1626 MANSTAD

Nøkkelinfo

Sakstype
Tilbygg
Bygningstype
Garasje
Bruksareal
30 m²
Kommune
Fredrikstad
Fylke
Østfold
Gnr / Bnr
100 / 15
Saksnummer
2026/8710
Fase
Rammetillatelse

Om byggesaken

Ny tilbygg på ca. 30 m² til eksisterende toalettbygg på Golfsvingen 1, bestående av en lett konstruksjon med varmestue. Bygget har en mønehøyde på 3,9 m og gesimshøyde på 2,5 m, fundamentert på svill direkte på bakken med stabiliserende pukk-/gruslag. Tilbygget inneholder varmestue, to separate WC-rom og en bod, totalt ca. 58,8 m². Bygget er utført i lette materialer uten vann- eller avløpsinstallasjoner, og er ikke beregnet for varig opphold eller beboelse. Området er flatt og planert, med vurdert lav risiko for kvikkleire og flomfare.

Produkter og materialer

Tømrer Innvendige vegger og rominndeling

rom for varmestue, 2 WC og bod

Innvendig konstruksjon og rominndeling i tilbygg

Ventilasjon Naturlig ventilasjon

ingen teknisk ventilasjon nevnt, naturlig ventilasjon antatt

Ventilasjon for varmestue og tilhørende rom

Dører Ytterdører

Antall: 2

To dører til varmestue og tilhørende rom

Grunnarbeid Fundamentering på svill

🧱 pukk-/gruslag

svill lagt direkte på bakken med stabiliserende pukk-/gruslag

Fundamentering for lett tilbygg uten utgraving

Fasade Yttervegger i lett konstruksjon

🧱 tre og isolasjon

lett konstruksjon, svill på pukk-/gruslag

Yttervegger for tilbygg varmestue i lette materialer

Tak Saltak

🧱 ukjent, men lett konstruksjon

mønehøyde 3,9 m, gesimshøyde 2,5 m

Tak med saltak over tilbygg varmestue

Maling Utvendig og innvendig maling

standard maling for treverk og innvendige flater

Overflatebehandling av treverk og innvendige flater

Vinduer Fasadevindu

Antall: 2

To vinduer i varmestuen

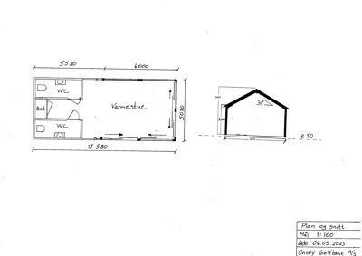
Plantegning

Varmestue 58.8 m²

Etasje 1 58.8 m²

Rom Areal Vinduer Dører
Varmestue 101 30.0 m² 2 2
WC 102 5.6 m² 0 1
Bod 103 5.6 m² 0 1
WC 104 5.6 m² 0 1

Fasader

Enebolig

Nord
Materiale
Tre
Taktype
Saltak
Høyde
6.5 m
Mønehøyde
8.2 m
Vinduer
5
Dører
1
Synlige etasjer
2
Sør
Materiale
Tre
Taktype
Saltak
Høyde
6.5 m
Mønehøyde
8.2 m
Vinduer
4
Dører
1
Synlige etasjer
2
Øst
Materiale
Tre
Taktype
Saltak
Høyde
6.5 m
Mønehøyde
8.2 m
Vinduer
2
Dører
0
Synlige etasjer
2
Vest
Materiale
Tre
Taktype
Saltak
Høyde
6.5 m
Mønehøyde
8.2 m
Vinduer
0
Dører
0
Synlige etasjer
2

Hendelser

13.04.2026 Tillatelse - Tilbygg til uthus - Golfsvingen 1 - Eiendom 100/15
10.04.2026 Spørsmål - Golfsvingen 1 - Eiendom 100/15 - Nybygg - annet inntil 70 m² - Eksisterende toalettbygg skal tilbygges med varmestue
25.03.2026 Spørsmål - Golfsvingen 1 - Eiendom 100/15 - Nybygg - annet inntil 70 m² - Eksisterende toalettbygg skal tilbygges med varmestue
18.03.2026 Søknad uten ansvarsrett - Golfsvingen 1 - Eiendom 100/15 - Nybygg - annet inntil 70 m² - Eksisterende toalettbygg skal tilbygges med varmestue
18.03.2026 Bekreftelse på mottatt søknad - Søknad uten ansvarsrett - Nybygg - annet inntil 70 m² - Golfsvingen 1 - Eiendom 100/15