Extension Rammetillatelse Garasje

Ny dobbelgarasje og støttemur i Gomperudgata 73, Drammen

📍 Gomperudgata 73 , 3031 DRAMMEN

Nøkkelinfo

Sakstype
Tilbygg
Bygningstype
Garasje
Bruksareal
44 m²
Kommune
Drammen
Fylke
Buskerud
Gnr / Bnr
82 / 122
Saksnummer
26/06494
Fase
Rammetillatelse

Om byggesaken

Ny dobbelgarasje på 44,4 m² BRA og 50 m² BYA oppføres på eiendommen Gomperudgata 73 i Drammen. Garasjen bygges i tre med valmtak og flatt tak tekket med teglstein. Bygget har to garasjeporter og flere vinduer og dører fordelt på fasadene. I tillegg oppføres en støttemur med høyde mellom 0,3 og 1,2 meter. Garasjen plasseres 1,5 meter fra nærmeste eiendomsgrense med gulvnivå på kote 304,2. Tomten er på 902,3 m² med en samlet utnyttelse på 19,54 % BYA for både bolig og garasje. Overvann håndteres lokalt med infiltrasjon og vegetasjon. Prosjektet har godkjent rammetillatelse og er under behandling for oppstart.

Produkter og materialer

Fasade Tre kledning

🧱 Tre

Liggende bordkledning

Fasade med liggende trebordkledning

Mur Støttemur

Antall: 1

Støttemur med høyde 0,3-1,2 m

Støttemur tilhørende garasje

Tømrer Bygging av garasjeskall

🧱 Tre

Tømrerarbeid for garasje i tre

Tømrerarbeid for oppføring av garasje

Grunnarbeid Drenering og infiltrasjon

Masseskifte med drenerende masser, infiltrasjon av overvann via permeabelt dekke

Grunnarbeid for garasje og tomt med drenering og overvannshåndtering

Tak Valmtak og flatt tak

🧱 Teglstein

Valmtak og flatt tak tekket med teglstein

Taktekking med teglstein på valmtak og flatt tak

Betong Fundament og gulv

🧱 Betong

Gulv 1. etasje på kote 304,2

Betongfundament og gulv for garasje

Vinduer Fasadevindu

🧱 Tre eller aluminium (ikke spesifisert)

Antall: 4

Vinduer fordelt på fasader Nord-Vest (2), Sør-Øst (1), Nord-Øst (1)

Fasadevindu i garasje

Garasjeport Dobbel garasjeport

Antall: 2

Garasjeporter på fasade Nord-Øst og Sør-Vest

To garasjeporter for dobbelgarasje

Dører Ytterdør

🧱 Tre eller annet (ikke spesifisert)

Antall: 2

Dører på fasade Nord-Vest (1) og Sør-Øst (1)

Ytterdører til garasje

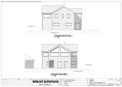
Fasader

Garasje

Nord-Vest
Materiale
Tre
Taktype
Flatt tak
Takmat.
Tegl
Vinduer
2
Dører
1
Synlige etasjer
1
Sør-Øst
Materiale
Tre
Taktype
Flatt tak
Takmat.
Tegl
Vinduer
1
Dører
1
Synlige etasjer
2
Nord-Øst
Materiale
Tre
Taktype
Valmtak
Takmat.
Tegl
Vinduer
1
Dører
0
Synlige etasjer
1
Sør-Vest
Materiale
Tre
Taktype
Valmtak
Takmat.
Tegl
Vinduer
0
Dører
0
Synlige etasjer
1

Hendelser

09.04.2026 Gomperudgata 73, tillatelse til garasje og støttemur
26.02.2026 Gomperudgata 73, melding om mottatt søknad
18.12.2025 Gomperudgata 73 Supplering av søknad 82/122
15.12.2025 Gomperudgata 73, vi trenger flere opplysninger for å behandle søknaden din
02.12.2025 Gomperudgata 73, søknad om rammetillatelse