Extension Rammetillatelse Garasje

Riving av uthus og ny bod med platting i Gransmyrvegen 155

📍 Gransmyrvegen 155 , 1930 AURSKOG

Nøkkelinfo

Sakstype
Tilbygg
Bygningstype
Garasje
Bruksareal
40 m²
Kommune
Nes
Fylke
Akershus
Gnr / Bnr
149 / 32
Saksnummer
2025/1127
Fase
Rammetillatelse

Om byggesaken

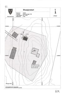
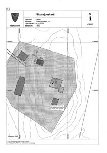
Prosjektet omfatter riving av et gammelt uthus på 28 m², oppføring av en ny isolert og musesikret bod på 40 m², samt bygging av en platting på fotavtrykket til det revne uthuset. Den nye boden skal fungere som lager for tekstiler, utemøbler, verktøy og motorredskap, med mulighet for begrenset oppvarming. Plattingen plasseres på det mest solrike området på eiendommen og skal brukes til utemøbler, spisested og eventuelt et lite prefabrikkert drivhus. Tiltakene er tilpasset eiendommens LNF-område og oppfyller krav til visuelle kvaliteter i omgivelsene.

Produkter og materialer

Riving Riving av uthus

Antall: 1

Riving av eksisterende uthus på 28 m², oppført på 1960-tallet, i dårlig forfatning med fukt- og musproblemer

Fjerning av gammelt uthus for å gi plass til ny bod og platting

Dører Ytterdør til bod

🧱 Isolert dør

Isolert og musesikret ytterdør til bod

Dør for bod med isolasjon og sikkerhet mot mus

Grunnarbeid Grunnarbeid for bod og platting

Forberedelse av byggegrunn for ny bod og platting på eksisterende fotavtrykk

Grunnarbeid og fundamentering for ny bod og platting

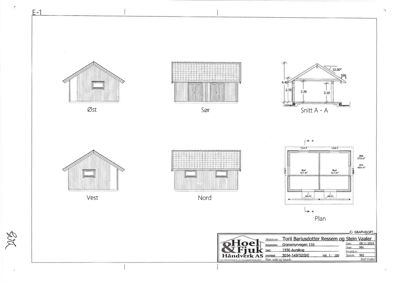
Tømrer Ny isolert bod

🧱 Tre, isolasjon, musesikring

Antall: 1

Ny bod på 40 m², isolert og musesikret med mulighet for begrenset oppvarming

Oppføring av ny bod for lagring av tekstiler, utemøbler, verktøy og motorredskap

Isolasjon Isolasjon til bod

🧱 Mineralull eller tilsvarende

Isolasjon for å sikre lagringsbod med mulighet for begrenset oppvarming

Isolasjon i vegger og tak for ny bod

Terrasse Platting

🧱 Tre eller tilsvarende terrassemateriale

Antall: 1

Platting på fotavtrykket til revet uthus, til bruk som utemøbler, spisested og eventuelt prefabrikkert drivhus

Oppføring av platting på solrikt område ved boligen

Fasader

Garasje

Øst
Materiale
Tre
Taktype
Saltak
Takmat.
Tegl
Høyde
4.4 m
Vinduer
1
Dører
0
Synlige etasjer
1
Sør
Materiale
Tre
Taktype
Saltak
Takmat.
Tegl
Vinduer
0
Dører
2
Synlige etasjer
1
Vest
Materiale
Tre
Taktype
Saltak
Takmat.
Tegl
Høyde
4.4 m
Vinduer
1
Dører
0
Synlige etasjer
1
Nord
Materiale
Tre
Taktype
Saltak
Takmat.
Tegl
Vinduer
2
Dører
0
Synlige etasjer
1

Hendelser

15.04.2026 Søknad om endring av gitt tillatelse - Gbnr 149/32- Gransmyrvegen 155 - Riving av uthus, oppføring av platting og oppføring av bod
04.04.2025 Orientering om vedtak - Gransmyrvegen 155 - Riving av uthus, oppføring av platting og oppføring av bod
26.03.2025 Tillatelse til tiltak - Gbnr 149/32 - Riving av uthus, oppføring av platting og oppføring av bod
11.03.2024 Foreløpig svar på søknad - Gbnr 149/32 - Gransmyrvegen 155 - Bygging av ny bod/Riving av gammelt uthus
01.02.2024 Søknad om tillatelse til tiltak - Gbnr 149/32 - Gransmyrvegen 155 - Bygging av ny bod/Riving av gammelt uthus