Extension UnderBehandling Garasje

Ettergodkjenning og fasadeendring av tilbygg til strandhus og båthus i Konglungveien 9

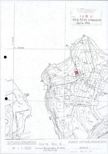
📍 Konglungveien 9 , 1392 VETTRE

Nøkkelinfo

Sakstype
Tilbygg
Bygningstype
Garasje
Bruksareal
8 m²
Kommune
Asker
Fylke
Akershus
Gnr / Bnr
56 / 12
Saksnummer
25/2727
Fase
Under behandling

Om byggesaken

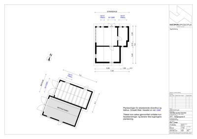
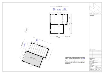
Tiltaket omfatter ettergodkjenning av et mindre tilbygg på ca. 8,25 m² til et eksisterende strandhus på Konglungveien 9, samt fasadeendringer på strandhus og tilstøtende båthus. Tilbygget er plassert på fasaden vendt bort fra sjøen og tilpasset eksisterende arkitektur, materialbruk og volum, med saltak og trepanel. Fasadeendringene inkluderer utskifting av dører og vinduer på strandhuset for å oppnå et mer symmetrisk og harmonisk uttrykk, samt ny sidehengslet to-fløys port og vindu på båthuset. Tiltaket ligger innenfor 100-metersbeltet langs sjøen og krever dispensasjon fra byggeforbudet og bevaringsbestemmelser. Det er ikke foretatt terrenginngrep, og tiltaket påvirker ikke allmennhetens tilgang til strandsonen. Eiendommen ligger i et vernet kulturmiljø, og tiltaket er vurdert å være godt tilpasset dette. Det foreligger godkjent ansvarlig søker og prosjekterende, og det er gjennomført nabovarsling uten merknader.

Produkter og materialer

Dører To-fløys balkongdør i tre

🧱 Tre

Antall: 1

Ny midtstilt to-fløys balkongdør på strandhusets nordvestfasade

Dør til fasadeendring på strandhus

Tømrer Bygging av tilbygg og fasadeendringer

Utførelse av tilbygg på 8,25 m² og fasadeendringer på strandhus og båthus

Tømrerarbeid for tilbygg og fasadeendringer

Vinduer Fasadevindu i tre

🧱 Tre

Antall: 4

Nye vinduer som erstatter eksisterende dørvinduer på strandhusets nordvestfasade

Vinduer til fasadeendring på strandhus

Tak Saltak med teglstein

🧱 Teglstein

Saltak med teglstein som takmateriale på strandhus og tilbygg

Taktekking for tilbygg og eksisterende bygg

Grunnarbeid Ingen nye terrenginngrep

Ingen terrenginngrep eller endringer i strandlinje

Grunnarbeid for tilbygg og fasadeendringer

Fasade Trepanel

🧱 Tre

Tilbygg og fasadeendring tilpasset eksisterende trepanel og farge

Trepanel til kledning av tilbygg og fasadeendringer på strandhus og båthus

Vinduer Avlangt fasadevindu i tre

🧱 Tre

Antall: 1

Nytt lavt og avlangt vindu på båthusets nordvestfasade

Vindusinnsetting på båthus

Dører Sidehengslet to-fløys port i tre

🧱 Tre

Antall: 1

Ny sidehengslet to-fløys port på båthus, tilsvarende naboens port

Port til båthus for enhetlig uttrykk

Fasader

Strandhus

Vest
Materiale
Tre
Taktype
Saltak
Takmat.
Tegl
Høyde
2.7 m
Vinduer
4
Dører
0
Balkonger
1
Synlige etasjer
1
Nord
Materiale
Tre
Taktype
Saltak
Takmat.
Tegl
Høyde
2.7 m
Vinduer
4
Dører
1
Synlige etasjer
1
Øst
Materiale
Tre
Taktype
Saltak
Takmat.
Tegl
Vinduer
1
Dører
1
Balkonger
1
Synlige etasjer
1
Sør
Materiale
Tre
Taktype
Saltak
Høyde
2.7 m
Vinduer
2
Dører
0
Synlige etasjer
1
Ukjent
Taktype
Saltak
Høyde
2.5 m
Vinduer
1
Dører
1
Synlige etasjer
1

Redskapshus

Ukjent
Taktype
Saltak
Høyde
2.5 m
Vinduer
1
Dører
0
Synlige etasjer
2

Hendelser

15.04.2026 56/12 Konglungveien 9 - Supplering til søknad om rammetillatelse - Ettergodkjenning av tilbygg til strandhus
16.02.2026 56/12 Konglungveien 9 - Endring av bygg - Uttalelse
02.02.2026 56/12 Konglungveien 9 - Statsforvalterens uttalelse til søknad om dispensasjon for fasadeendring på strandhus og båthus
21.01.2026 56/12 Konglungveien 9 - Anmodning om uttalelse
19.01.2026 56/12 Konglungveien 9 - Korrespondanse om strandhuset og godkjent tilbygg
07.01.2026 56/12 Konglungveien 9 - Etterspurt dokumentasjon
29.12.2025 56/12 Konglungveien 9 - Korrespondanse og bekreftelse på utsatt frist for komplettering
07.11.2025 56/12 Konglungveien 9 - Søknad om fasadeendring og båthus - Vi trenger mer dokumentasjon
09.10.2025 56/12 Konglungveien 9 - Ber om tilbakemelding
22.08.2025 56/12 Konglungveien 9 - Søknad om fasadeendring - Strandhus og båthus