Extension Igangsettingstillatelse Garasje

Ny garasje etter riving av låve i Lerpeveien 336, Drammen

📍 Lerpeveien 336 , 3039 DRAMMEN

Nøkkelinfo

Sakstype
Tilbygg
Bygningstype
Garasje
Bruksareal
150 m²
Kommune
Drammen
Fylke
Buskerud
Gnr / Bnr
42 / 17
Saksnummer
25/02968
Fase
Igangsettingstillatelse

Om byggesaken

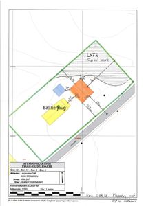
Ny garasje på 150 m² oppføres som erstatning for eksisterende låve på eiendommen Lerpeveien 336 i Drammen. Garasjen plasseres på samme sted som den gamle låven, med lik avstand til dyrket mark (2,6 meter) og samme høydeplassering (gesimshøyde 4,3 m, mønehøyde 7,3 m). Bygget er et enetasjes trebygg med valmtak og flatt tak på ulike fasader, og har en tradisjonell utforming tilpasset omkringliggende bebyggelse og naturomgivelser. Garasjen skal brukes til lagring av kjøretøy, utstyr og verktøy, og har en robust konstruksjon med stålplater på tak og vegger. Det er gjennomført grundig saksbehandling med dispensasjon fra LNF-formål, vurdering av blågrønn faktor, og godkjent gjennomføringsplan og ansvarsrett for prosjektering og utførelse.

Produkter og materialer

Tømrer Bygging av garasjestruktur

🧱 Tre og stål

Bygging av bærende konstruksjon i tre og stålramme

Tømrerarbeid for ny garasje

Grunnarbeid Drenering og overvannshåndtering

Overvann føres til terreng, blågrønn faktor ivaretatt med permeable dekker og oppsamling av overvann

Drenering og overvannshåndtering på tomt

VVS Ingen vanninstallasjoner planlagt

Ingen vannklosett eller vanninstallasjoner planlagt i garasje

VVS-arbeid ikke relevant for garasje

Maling Utvendig og innvendig maling

🧱 Maling

Maling av treflater utvendig og innvendig i garasje

Overflatebehandling for beskyttelse og estetikk

Elektro Elektrisk installasjon

Elektrisk installasjon i garasje for belysning og strøm

Elektroarbeid for garasje

Fasade Trevegger med valmtak og flatt tak

🧱 Tre, el. forsinkede lakkerte stålplater

Valmtak på to fasader, flatt tak på to fasader, fasader i tre med stålplater, farge grå utside og hvit innside

Fasade og takmaterialer for ny garasje, tilpasset eksisterende bygning og omgivelser

Grunnarbeid Riving og grunnarbeider

Antall: 1

Riving av eksisterende låve, grunnarbeider for ny garasje

Riving av gammel låve og forberedelse av byggegrunn

Betong Fundament og plate

🧱 Betong

Fundament og plate for garasje, prosjektert av sivilingeniør

Betongfundament og plate for ny garasje

Isolasjon Isolasjon i vegger og tak

🧱 Isolasjon

Isolasjon i vegger og tak for garasje, iht. TEK17

Isolasjon for energieffektivitet og komfort

Garasjeport Isolert leddport

Antall: 1

Isolert leddport i front, del av stålhall modell SS-150905

Garasjeport for innkjøring til garasje

Plantegning

Garasje 100.0 m²

Etasje 1 100.0 m²

Rom Areal Vinduer Dører
Parkering 101 100.0 m² 0 0

Fasader

Garasje

Sør-vest
Materiale
Tre
Taktype
Flatt tak
Vinduer
0
Dører
0
Synlige etasjer
1
Nord-vest
Materiale
Tre
Taktype
Valmtak
Vinduer
0
Dører
0
Synlige etasjer
1
Nord-øst
Materiale
Tre
Taktype
Flatt tak
Vinduer
0
Dører
0
Synlige etasjer
1
Sør-øst
Materiale
Tre
Taktype
Valmtak
Vinduer
0
Dører
0
Synlige etasjer
1

Hovedbygg

Ukjent
Materiale
Tre
Taktype
Saltak
Høyde
7.3 m
Mønehøyde
10.3 m
Vinduer
0
Dører
0
Synlige etasjer
1

Stålhall

Ukjent
Materiale
Stål
Taktype
Saltak
Høyde
7.3 m
Mønehøyde
10.3 m
Vinduer
0
Dører
0
Synlige etasjer
1

Hendelser

09.04.2026 Lerpeveien 336, søknad om igangsettingstillatelse
22.09.2025 Lerpeveien 336, rammetillatelse til riving av eksisterende låve og oppføring av ny garasje
15.09.2025 Lerpeveien 336, korrigert situasjonsplan
09.09.2025 Lerpeveien 336, vi trenger flere opplysninger for å behandle søknaden din
29.08.2025 Lerpeveien 336 - dokumentasjon med en styrket begrunnelse for omsøkt plassering og håndtering av blågrønn faktor (BGF)
29.08.2025 Lerpeveien 336, vi vurderer å avslå søknaden din
22.08.2025 Lerpeveien 336 Supplering av søknad 42/17 - Reviderte tegninger og situasjonsplan
04.07.2025 Lerpeveien 336, vi vurderer å avslå søknaden din
01.07.2025 Lerpeveien 336, etterlyring av svar på henvendelse
23.05.2025 Lerpeveien 36, svar på mangelbrev
19.05.2025 Lerpeveien 336, vi trenger flere opplysninger for å behandle søknaden din
07.05.2025 Lerpeveien 336 Supplering av søknad 42/17
01.04.2025 Lerpeveien 336, vi trenger flere opplysninger for å behandle søknaden din
24.02.2025 42/17, Lerpeveien 336, Uttalelse til søknad om dispensasjon fra kommuneplan for riving og oppføring av bygning
24.02.2025 Lerpeveien 336 - Oppføring av låve - Uttalelse
28.01.2025 Lerpeveien 336, anmodning om uttalelse fra Buskerud fylkeskommune og statsforvalteren i Østfold, Buskerud, Oslo og Akershus
22.01.2025 Lerpeveien 336 Søknad om rammetillatelse 42/17