Photo
Fotografi av en eksisterende bygning (garasje/utleiebolig) sett fra en terrasse, med traktor og bil i forgrunnen.
1 / 18
Extension
Rammetillatelse
Garasje
Ny garasje med tilbygg på Stormyrveien 20, Engavågen
Nøkkelinfo
- Sakstype
- Tilbygg
- Bygningstype
- Garasje
- Bruksareal
- 23 m²
- Kommune
- Meløy
- Fylke
- Nordland - Nordlánnda
- Saksnummer
- 2025/1938
- Fase
- Rammetillatelse
Om byggesaken
Ny frittstående garasje på ca. 23,3 m² med saltak og trepanel som fasademateriale oppføres på eiendommen Stormyrveien 20, 8170 Engavågen. Garasjen har en gesimshøyde på ca. 4,1 meter og inkluderer en garasjeport og en dør. I tillegg er det et tilbygg til garasjen som allerede er oppført og nå ettergodkjennes. Bygget plasseres nærmere nabogrensen enn normalt, med nødvendig samtykke fra naboer. Bygget skal prosjekteres og utføres i henhold til gjeldende tekniske krav, inkludert brannsikkerhet etter TEK17.
Produkter og materialer
Brannvern
Brannmotstand og branncelleinndeling
Brannsikkerhet i henhold til TEK17 kapittel 11
Brannsikringstiltak for garasje og tilbygg i henhold til TEK17
Fasade
Trepanel
🧱 Tre
Fasade i trepanel
Utvendig kledning i trepanel for garasje og tilbygg
Grunnarbeid
Fundamentering og grunnmur
Grunnarbeid for garasje og tilbygg inkl. fundamentering og grunnmur
Tømrer
Reisverk og konstruksjon
🧱 Tre
Utvendig reisverk i tre
Tømrerarbeid for reisverk og konstruksjon av garasje og tilbygg
Garasjeport
Garasjeport
Antall: 1
Garasjeport til garasje
Dører
Ytterdør
Antall: 3
Ytterdører til garasje og tilbygg
Tak
Saltak
Saltak på garasje og tilbygg
Saltak som takkonstruksjon for garasje og tilbygg
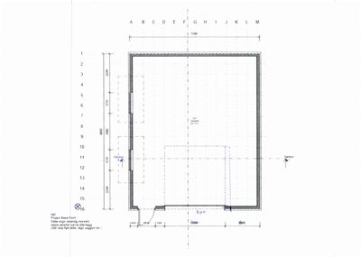
Plantegning
Garasje 23.3 m²
Etasje 1 0.0 m²
| Rom | Areal | Vinduer | Dører |
|---|---|---|---|
| Garasje | 0.0 m² | 0 | 0 |
| Garasje | 18.0 m² | 0 | 1 |
| Garasje | 18.6 m² | 0 | 1 |
Etasje 0 23.3 m²
| Rom | Areal | Vinduer | Dører |
|---|---|---|---|
| Garasje 101 | 23.3 m² | 0 | 1 |
Fasader
Garasje
Ukjent
- Materiale
- Tre
- Taktype
- Saltak
- Høyde
- 4.1 m
- Vinduer
- 0
- Dører
- 1
- Synlige etasjer
- 1
Hovedbygg
Ukjent
- Taktype
- Saltak
- Vinduer
- 0
- Dører
- 0
- Synlige etasjer
- 0
Hendelser
16.04.2026
Tillatelse til oppføring av garasje og ettergodkjenning av tilbygg til garasje
16.04.2026
Gebyr - byggesak
16.04.2026
Supplering av søknad - Samtykke fra nabo
16.04.2026
Supplering av søknad - Samtykke fra nabo
16.04.2026
Sjekkliste
13.04.2026
Supplering av søknad - Tegninger
17.03.2026
Oppfølging – byggesak (garasje og tilbygg)
22.08.2025
Endring av plassering av garasje
21.08.2025
Avklaring fra tiltakshaver - byggesaken fortsettes etter dokumentasjon på samtykke fra nabo
11.07.2025
Avklaring fra tiltakshaver – byggesaken fortsettes etter fradeling
04.06.2025
Søknad - bygge garasje - lagerplass