Extension Ferdigattest Garasje

Tilbygg og bruksendring av garasje i Mjølhusbakken 15, Sømna

📍 Mjølhusbakken 15 , 8920 SØMNA

Nøkkelinfo

Sakstype
Tilbygg
Bygningstype
Garasje
Bruksareal
50 m²
Boenheter
1
Kommune
Sømna
Fylke
Nordland - Nordlánnda
Gnr / Bnr
1812 / 50
Saksnummer
2025/1149
Fase
Ferdigattest

Om byggesaken

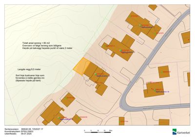
Ny tilbygg på 50 m² med saltak oppføres på en enebolig i Mjølhusbakken 15. Tilbygget har to etasjer med flere vinduer og en dør, og er knyttet til eksisterende bolig. Garasjen endres i bruk, og det utføres vesentlig terrenginngrep med sprengning av fjell på ca. 85 m², med skjæringshøyde opptil 2 meter, for å tilpasse tomten og flytte parkering. Terrenginngrepet sikres med klatresikkert gjerde. Prosjektet inkluderer også flytting av parkering og opparbeidelse av ny innkjøring. Det er gjennomført nabovarsling og innhentet samtykke for bygging nærmere nabogrense enn 4 meter.

Produkter og materialer

Rekkverk Sikring av terrenginngrep

Klatresikkert gjerde på sprengningsskjæring

Sikring av terrenginngrep med gjerde

Ventilasjon Ventilasjon i tilbygg

Ventilasjonssystem for tilbygg

VVS VVS-installasjoner i tilbygg

VVS-installasjoner for tilbygg

Grunnarbeid Sprengning og terrenginngrep

Sprengning av fjell ca. 85 m², skjæringshøyde opptil 2 meter, etablering av drensgrøft og sikring med klatresikkert gjerde

Vesentlige terrenginngrep med sprengning og opparbeidelse av tomt for tilbygg og flytting av parkering

Dører Ytterdør i tilbygg

Antall: 1

Dør i tilbygg på nordfasade

Ytterdør til tilbygg

Tak Saltak på tilbygg

Antall: 1

Saltak på tilbygg i to etasjer

Saltak på tilbygg

Isolasjon Isolasjon i tilbygg

Isolasjon for vegger og tak i tilbygg

Parkering Ny innkjøring og flytting av parkering

Flytting av parkering til sørsiden av huset med ny innkjøring

Opparbeidelse av ny parkeringsplass og innkjøring

Maling Utvendig og innvendig maling

Maling av fasade og innvendige flater i tilbygg

Elektro Elektrisk installasjon i tilbygg

Elektrisk anlegg for tilbygg

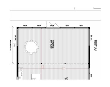
Fasade Vinduer i tilbygg

Antall: 9

Vinduer i tilbygg fordelt på fasader: 3 nord, 6 vest, 0 øst

Fasadevindu i tilbygg med saltak, totalt 9 vinduer

Tømrer Tilbyggs konstruksjon

Tilbygg på 50 m² med to etasjer, inkludert vegger, tak og gulv

Bygningskonstruksjon for tilbygg

Fasader

Tilbygg

Nord
Taktype
Saltak
Vinduer
3
Dører
1
Synlige etasjer
2
Øst
Taktype
Saltak
Vinduer
0
Dører
0
Synlige etasjer
2
Vest
Taktype
Saltak
Vinduer
6
Dører
0
Synlige etasjer
1

Hendelser

10.04.2026 1812/50/117 - Ferdigattest - Tilbygg til enebolig og bruksendring av garasje
10.04.2026 1812/50/117 - Søknad om ferdigattest
12.08.2025 1812/50/117 - avstands erklærings skjema
12.08.2025 1812/50/117 - Plantegninger - Påbygg mjølhusbakken 15
11.07.2025 Søknad om vesentlig terrenginngrep
26.06.2025 1812/50/117 - søknad om flytting av parkering - vesentlig terrenginngrep - tilbygg og bruksendring av garasje
17.06.2025 Vi trenger flere opplysninger for å kunne behandle søknaden om tiltak på eiendom 50/117
12.06.2025 1812/50/117 - Søknad om flytting av parkering, utsprenging av fjell, tilbygg, bruks- og fasadeendring av privatbolig.