Extension Avslatt Garasje

Ny garasje og ombygging ved Teknisk Sentral, Orkidehøgda 1A

📍 Orkidehøgda 1A , 3050 MJØNDALEN

Nøkkelinfo

Sakstype
Tilbygg
Bygningstype
Garasje
Bruksareal
500 m²
Kommune
Drammen
Fylke
Buskerud
Gnr / Bnr
212 / 160
Saksnummer
25/35583
Fase
Avslått

Om byggesaken

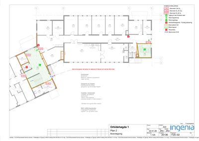
Ny frittstående garasje på 500 m² med stålbærende konstruksjon, liggende og stående kledning i okerfarge, og taktekking med farget metallplater oppføres på eiendommen Orkidehøgda 1A i Mjøndalen. Garasjen har tett vegg mot E134 og åpen vegg mot eiendommen, og erstatter eksisterende asfaltert oppstillingsareal. Tiltaket inkluderer også etterisolering av eksisterende SVP-bygg, etablering av nye garasjeporter i fasaden, og ny internvei med permeabelt kjørbart dekke. Ombygging av kaldt lager i SVP-bygget med innvendig isolasjon og nye sluk inngår. Prosjektet omfatter også omfattende VA- og overvannsplanlegging, med tilpasninger for brannvann og flomsikring. Det er søkt dispensasjon for overskridelse av byggegrense og arealformål, samt for avstand til vei og vann- og avløpsledninger. Søknaden ble trukket i april 2026 før tillatelse ble gitt.

Arbeidsomfang

- Oppføring av nytt garasjetilbygg på eiendom Orkidehøgda 1A. - Utførelse av brannkonsept i henhold til TEK17 med 3 tellende etasjer. - Oppføring av brannceller for trapperom, lager og tekniske rom. - Installasjon av brannalarmanlegg og ledesystem. - Oppføring av innvendige trapperom for rømning til terreng. - Søknad om dispensasjon fra regulert byggegrense mot E134. - Søknad om dispensasjon mot arealformål.

Produkter og materialer

Garasjeport Leddport

Antall: 2

Leddport 3300x4500 mm

To nye leddporter i SVP-bygget og garasje

Tak Taktekking

🧱 Farget metallplater

Båndtekking i farget metallplater

Taktekking på ny garasje med farget metallplater

Dører Automatiske dører

Automatiske dører med brannmotstand EI 30

Automatiske brannklassifiserte dører i Helsehuset

Fasade Kledning

🧱 Trepanel

Liggende og stående kledning i okerfarge

Fasade på ny garasje med liggende og stående trepanel i okerfarge

Tømrer Vinduer

Vinduer i brannceller med brannmotstand EI 60, ikke åpne i vanlig bruk

Brannmotstandsdyktige vinduer i brannceller

Isolasjon Innvendig isolasjon

🧱 Mineralull/plater

Antall: 445

Innvendig etterisolering av yttervegger og tak i SVP-bygget, ca. 231 m² vegg og 214 m² tak

Etterisolering av kaldt lager i SVP-bygget for å redusere energiforbruk

Tømrer Dører

🧱 EI2 60-Sa brannklassifiserte dører

Brannklassifiserte dører i brannceller og trapperom, med automatikk og selvlukker

Brannklassifiserte dører i rømningsveier og brannceller

Grunnarbeid Fundamenter

🧱 Betong

Punktfundamenter for ny garasje, tilpasset grunnforhold med fyllmasser og leire

Fundamentering av ny garasje på punktfundamenter

Maling Overflatebehandling

Overflater og kledninger med brannklasse D-s2,d0 eller bedre

Brannteknisk godkjente overflatebehandlinger

Vegarbeid Internvei

🧱 Permeabelt kjørbart dekke

Ny internvei med permeabelt kjørbart dekke opparbeides langs SVP-bygget

Opparbeidelse av ny kjørevei med permeabelt dekke

Ventilasjon Røykventilasjon

Røykventilasjon i trapperom over to plan vurdert som ikke nødvendig pga. innsatsvei

Røykventilasjon vurdert iht. TEK17 krav

VVS Sluk og overvannshåndtering

Nye sluk i SVP-bygget, overvann ledes til eksisterende kommunal overvannsledning OV 315 PVC

Nye sluk og overvannshåndtering for garasje og SVP-bygget

Brannvern Brannkummer og hydrant

Brannkum BK15995 med kapasitet 177-263 l/s, plassert ca. 150 m fra ny garasje

Brannvannforsyning med brannkum og hydrant i henhold til krav

Gulv Etasjeskiller

Etasjeskiller med brannmotstand R 60

Branncellebegrensende etasjeskiller

Brannvern Brannslokkeutstyr

Håndslokkeapparater plassert med maks 30 m avstand, pulver eller skum/vann

Manuelt slokkeutstyr i alle deler av bygget

Trapper Innvendige trapper

Antall: 1

Trapp i Helsehuset, brannklasse Tr1

Innvendig trapp i Helsehuset

Ventilasjon Ventilasjonsanlegg

Ventilasjonsanlegg med brannspjeld og brannisolasjon, plassert i teknisk rom som egen branncelle

Ventilasjonsanlegg prosjektert for brannsikkerhet

Elektro Brannalarmanlegg

Brannalarmanlegg kategori II med direktevarsling til brannvesenet

Brannalarmanlegg for hele bygget i henhold til TEK17

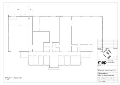
Plantegning

Teknisk Sentral 0.0 m²

Etasje 1 0.0 m²

Rom Areal Vinduer Dører
Teknisk rom 0 0.0 m² 0 0

Hovedbygg 616.0 m²

Etasje 1 616.0 m²

Rom Areal Vinduer Dører
Isolert lager 101 198.0 m² 0 1
Varmt lager 102 67.0 m² 0 1
Verksted 103 24.0 m² 0 1
Verksted 104 91.0 m² 0 1
Verksted 105 97.0 m² 0 1
Verksted 106 225.0 m² 0 1
Kjøkken 107 4.0 m² 0 1
WC 108 2.0 m² 0 1
WC 109 3.0 m² 0 1
BK 110 3.0 m² 0 1
HCWC 111 6.0 m² 0 1
Lager 112 10.0 m² 0 1
Verkstedkontor 113 10.0 m² 0 1
Lager 114 10.0 m² 0 1
Korridor 115 61.0 m² 0 0
Møterom 116 21.0 m² 0 1
Kontor 117 10.0 m² 0 1
Kontor 118 10.0 m² 0 1
Kontor 119 10.0 m² 0 1
Kontor 120 13.0 m² 0 1
Kontor 121 13.0 m² 0 1
Kontor 122 13.0 m² 0 1
Kontor 123 10.0 m² 0 1
Kontor 124 10.0 m² 0 1

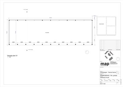
Garasje 500.0 m²

Etasje 1 500.0 m²

Rom Areal Vinduer Dører
Garasje 101 500.0 m² 0 0

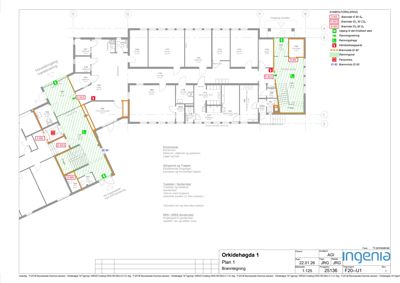
Orkidehøgda 1 742.0 m²

Etasje 1 0.0 m²

Rom Areal Vinduer Dører
Stillerom 141 4.0 m² 0 1
Stillerom 142 4.0 m² 0 1
Stillerom 143 5.0 m² 0 1
Kontor 150 11.0 m² 0 1
WC 153 0.0 m² 0 0
Lobby 154 38.0 m² 0 1
Innlevering lager 155 13.0 m² 0 1
V 156 14.0 m² 0 0
Gang 157 39.0 m² 0 0
HC WC 158 6.0 m² 0 0
WC 161 3.0 m² 0 0
BK 162 3.0 m² 0 0
Kontor 171 23.0 m² 0 1
Møterom 172 17.0 m² 0 1
Kontor 173 9.0 m² 0 1
Kontor 174 17.0 m² 0 1
Lager 175 7.0 m² 0 1
Korridor 176 41.0 m² 0 2
Dame gard. Ren 177 10.0 m² 0 1
HC WC 178 6.0 m² 0 0
Stillerom 180A 2.0 m² 0 0
WC Ren 179 2.0 m² 0 0
Dame Gard. Uren 181 11.0 m² 0 1
Inngangssone 182 11.0 m² 0 1
Vlf 183 4.0 m² 0 0
Kopi/lager 184 4.0 m² 0 0
Gang 185 28.0 m² 0 0
WC Uren 187 2.0 m² 0 0
Disp 188 2.0 m² 0 0
Dusjsone 177 6.0 m² 0 0
Korridor 176 0.0 m² 0 0

Etasje 2 436.0 m²

Rom Areal Vinduer Dører
Tekniskrom 201 6.0 m² 0 1
WC 202 6.0 m² 0 1
Garderobe 203 8.0 m² 0 1
Gang 222 24.0 m² 0 2
Kontor 223 18.0 m² 0 1
Spiserom 224 47.0 m² 0 2
Kontor 225 17.0 m² 0 1
Beredskapsrom 226 29.0 m² 0 2
Kontor 227 17.0 m² 0 1
Lager 228 3.0 m² 0 1
Kontor 229 11.0 m² 0 1
WC 230A 5.0 m² 0 1
WC 230B 7.0 m² 0 1
Møterom 231 16.0 m² 0 1
Arkiv 232 2.0 m² 0 1
Kontor 233 13.0 m² 0 1
WC forrum 234 5.0 m² 0 1
Kopi / Lager 235 7.0 m² 0 1
Trapp 236 12.0 m² 0 0
Gang / Trapp 237 46.0 m² 0 1
Møterom 261 14.0 m² 0 1
Tekniskrom 262 11.0 m² 0 1
Møterom 263 17.0 m² 0 1
Gang 280 42.0 m² 0 1

Etasje -1 306.0 m²

Rom Areal Vinduer Dører
EL Svakstrøm 001 7.0 m² 0 1
Datarom 002 5.0 m² 0 1
Heis 003 4.0 m² 0 1
Maskinrom 004 4.0 m² 0 1
Nødstrom 006 14.0 m² 0 1
Gang 007 35.0 m² 0 2
Trimrom 008 19.0 m² 0 1
LAGER vannmåler/ utstyr 010 32.0 m² 0 1
Tilfluktsrom 011 57.0 m² 0 1
Herre gard. Ren 012 14.0 m² 0 1
WC Ref. 012A 2.0 m² 0 1
Herre gard. Uren 012B 29.0 m² 0 1
Dusjsone 012 7.0 m² 0 1
Inngang Uren 013 11.0 m² 0 1
Vask/tørk Uren 015 19.0 m² 0 1
Gang 016 33.0 m² 0 2
Sluse 017 5.0 m² 0 1
Disp. 018 6.0 m² 0 1
Renhold/lager 019 8.0 m² 0 1
Moppevask 020 3.0 m² 0 1
Eksist. garderobe 022 5.0 m² 0 1
Eksist. garderobe 024 11.0 m² 0 1
Gang/trapp 025 1.0 m² 0 1
Disp. 026 1.0 m² 0 1
WC Uren 013A 2.0 m² 0 1

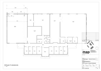
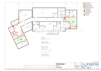
Orkidehøgda - Teknisk Sentral 683.0 m²

Etasje 1 683.0 m²

Rom Areal Vinduer Dører
Kaldt lager Kaldt 200.0 m² 0 1
Varmt lager Varmt 67.0 m² 0 1
Verksted V01 24.0 m² 0 1
Verksted V02 91.0 m² 0 1
Verksted V03 97.0 m² 0 1
Verksted V04 225.0 m² 0 1
HCWC HCWC 6.0 m² 0 1
WC WC1 2.0 m² 0 1
WC WC2 3.0 m² 0 1
Kjøkken K 4.0 m² 0 1
BK BK 3.0 m² 0 1
Lager L01 10.0 m² 0 1
Sluse Sluse 1.0 m² 0 1
Verkstedkontor VK 10.0 m² 0 1
Lager L02 10.0 m² 0 1
Kontor K01 10.0 m² 0 1
Kontor K02 10.0 m² 0 1
Kontor K03 10.0 m² 0 1
Kontor K04 13.0 m² 0 1
Meterrom M 21.0 m² 0 1
Kontor K05 13.0 m² 0 1
Kontor K06 13.0 m² 0 1
Kontor K07 10.0 m² 0 1
Kontor K08 10.0 m² 0 1
Korridor Korridor 51.0 m² 0 0

Helsehuset 0.0 m²

Etasje 0 0.0 m²

Rom Areal Vinduer Dører
Moppevask 020 3.0 m² 0 0
Eksist. garderobe 022 5.0 m² 0 0
Vask/tørk Uren 015 19.0 m² 0 0
Disp. 026 0.0 m² 0 0

Hendelser

09.04.2026 Orkidehøgda 1A, saken avsluttes som uaktuell da søknaden er trukket
07.04.2026 Orkidehøgda 1A, Teknisk Sentral, Søknad trekkes annet
18.03.2026 Orkidehøgda 1A, ber om tilbakemelding
26.01.2026 Orkidhøgda 1A, oppdatert tegning og brannkosept til søknaden rammetillatelse
22.01.2026 Orkidhøgda 1A, Teknisk Sentral, tilleggsopplysninger
14.01.2026 Orkidehøgda 1A, anbefaling om at tiltaket omprosjekteres
13.01.2026 Orkidehøgda 1A, ettersendt dokumentasjon til søknaden søknad
07.01.2026 Orkidehøgda 1A, Tilleggsopplysninger til anmodning om uttalelse
09.12.2025 Orkidehøgda 1A, Endring av bygg - Nabovarsel - Svar nabovarsel
09.12.2025 Orkidehøgda 1A, tilleggsopplysninger til anmodning om uttalelse
08.12.2025 Orkidehøgda 1A, søknad om dispensasjon mot arealformål dispensasjon
03.12.2025 Orkidehøgda 1A - Svar på anmodning om uttalelse for dispensasjon fra regulert byggegrense mot E134 i Mjøndalen dispensasjon
01.12.2025 Orkidehøgda 1, avklaring angående disp. søknad søknad
20.11.2025 Orkidehøgda 1A, vi trenger flere opplysninger for å behandle din rammesøknad om oppføring av garasje og bruksendring med dispensasjoner dispensasjon
20.11.2025 Orkidehøgda 1A, anmodning om uttalelse for dispensasjon fra regulert byggegrense mot E134 i Mjøndalen dispensasjon
19.11.2025 Orkidehøgda 1A, komplettering av målsatt situasjonsplan og VA plan
23.10.2025 Orkidehøgda 1A, Tilleggs info til rammesøknad for Teknisk sentral - plantegninger med romnavn og areal
26.09.2025 Orkidehøgda 1, søknad om rammetillatelse 212/160 rammetillatelse
12.09.2025 212/160, Orkidehøgda 1, Nabovarsel - Garasje nabovarsel