Extension UnderBehandling Garasje

Tilbygg og fasadeendring på garasje i Torvastadvegen 568, Karmøy

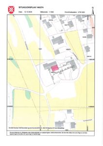
📍 Osnes

Nøkkelinfo

Sakstype
Tilbygg
Bygningstype
Garasje
Bruksareal
288 m²
Kommune
Karmøy
Fylke
Rogaland
Gnr / Bnr
140 / 274
Saksnummer
2025/9797
Fase
Under behandling

Om byggesaken

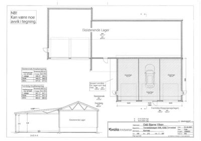
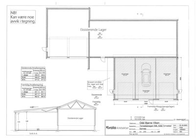
Prosjektet omfatter tilbygg på ca. 5,6 m² til en eksisterende garasje/lagerbygning på eiendommen Torvastadvegen 568 i Karmøy. Bygningen er i dag en enetasjes trebygning med flatt tak og saltak, kledd med tre, og brukes som garasje og redskapshus. Tilbygget innebærer også endring av takkonstruksjonen fra en uheldig møne- og sløysrenneløsning til et ensidig pulttak med ny taktekking, samt fasadeendringer som inkluderer nye porter, dører og vinduer. Yttervegger oppgraderes og kles med utlektede aluminiumsplater for et mer tidsriktig uttrykk. Endringen vil forbedre byggets vedlikehold og funksjonalitet uten vesentlig økning i bebygd areal, som totalt blir ca. 287,6 m². Bygningen ligger i LNF-område, og det er gitt dispensasjon for tiltaket under forutsetning av at bruken ikke endres.

Produkter og materialer

Betong Fundament og dekke

Betongfundament og gulvdekke for tilbygg

Betongarbeid for fundament og gulv i tilbygg

Vinduer Fasadevindu

Antall: 0

Ingen eksisterende vinduer, ingen nye vinduer planlagt

Ingen vinduer i bygningen

Elektro El-installasjoner i tilbygg

Elektriske installasjoner for belysning og strøm i tilbygg

El-installasjoner i tilbygg og oppgraderinger i eksisterende bygg

Grunnarbeid Fundamentering for tilbygg

Fundamentering og grunnarbeid for tilbygg på ca. 5,6 m²

Grunnarbeid for nytt tilbygg

Dører Ytterdører

Antall: 2

Nye ytterdører i fasaden

Nye dører i fasaden som del av fasadeendringen

Fasade Utlektet aluminiumsplatekledning

🧱 Aluminiumsplater

Utlektet aluminiumsplater for oppgradering av yttervegger

Kledning av yttervegger med utlektede aluminiumsplater for fasadeoppgradering

Tømrer Bærekonstruksjon og takstoler

🧱 Tre

Tømrerarbeid for tilbygg og ny takkonstruksjon med pulttak

Tømrerarbeid for oppføring av tilbygg og endring av takkonstruksjon

Garasjeport Nye kjøreporter

Antall: 3

Tre nye kjøreporter i fasaden

Nye kjøreporter for garasje/lagerbygningen

Maling Innvendig og utvendig maling

Maling av nye og oppgraderte flater utvendig og eventuelt innvendig

Maling av fasade og eventuelt innvendige flater i tilbygg

Tak Pulttak med taktekking

🧱 Tegl eller tilsvarende takmateriale

Endring fra flatt tak med uheldig møne- og sløysrenneløsning til ensidig pulttak

Ny takkonstruksjon med ensidig fall og ny taktekking for bedre avrenning og vedlikehold

Fasader

Garasje

Sør
Materiale
Tre
Taktype
Flatt tak
Takmat.
Tegl
Vinduer
0
Dører
1
Synlige etasjer
1
Øst
Materiale
Tre
Taktype
Saltak
Vinduer
0
Dører
1
Synlige etasjer
1
Nord
Materiale
Tre
Taktype
Flatt tak
Takmat.
Tegl
Vinduer
0
Dører
0
Synlige etasjer
1
Vest
Materiale
Tre
Taktype
Saltak
Vinduer
0
Dører
1
Synlige etasjer
1

Hendelser

20.04.2026 Gnr. 140, bnr. 274 - Uttalelse fra Statsforvalteren i Rogaland
15.04.2026 Oversender søknad til uttalelse - Tilbygg og fasadeendring - Dispensasjon fra formål LNF - gnr. 140, bnr. 274 - Osnes
03.02.2026 Gnr. 140, bnr. 274 - Søknad om dispensasjon
14.01.2026 Tilbakemelding om mangler - Tilbygg og fasadeendring - gnr. 140, bnr. 274 - Osnes
22.12.2025 Gnr. 140, bnr. 274 - Endring av bygg - garasje og redskapshus - Osnes