Extension Ferdigattest Garasje

Oppføring av carport og hagestue i Øvre Ørengate 46, Drammen

📍 Øvre Ørengate 46 , 3023 DRAMMEN

Nøkkelinfo

Sakstype
Tilbygg
Bygningstype
Garasje
Bruksareal
30 m²
Kommune
Drammen
Fylke
Buskerud
Gnr / Bnr
115 / 931
Saksnummer
25/34155
Fase
Ferdigattest

Om byggesaken

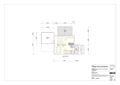
Ny carport på 13,9 m² med saltak og grusdekke, sammenbygd med boligens tak, malt i boligens farger, åpen i front og bak. Ny hagestue på 16 m², utformet som pergola med fastmontert pleksiglasstak med lav takvinkel, delvis festet til boligen. Begge tiltakene er fundamentert med støperør og stolpesko, med minimale grunnarbeider. Eiendommen har et bebygd areal på 29,9 m² for disse tiltakene, og tiltakene er plassert i henhold til gjeldende reguleringsplan og blågrønn faktor krav. Det foreligger godkjente bygningstegninger, situasjonsplan og gjennomføringsplan, og tiltaket er ferdigstilt med utstedt ferdigattest.

Arbeidsomfang

- Oppføring av carport/garasje ved eksisterende eiendom - Oppføring av hagestue ved eksisterende eiendom

Produkter og materialer

Trapper Innvendig trapp i tilbygg

Antall: 1

Trapp i gang i tilbygg

Innvendig trapp i tilbyggets gang

Dører Hagestue dør

🧱 Tre eller glassdør

Antall: 1

Dør til hagestue

Dør til hagestue

Grunnarbeid Fundamentering med støperør og stolpesko

🧱 Betong i støperør med stolpesko

Antall: 5

Håndgravde hull ca 1 meter dype for fundamentering av carport og hagestue

Fundamentering for carport og hagestue med betongfylte støperør og stolpesko

Vinduer Hagestue vinduer

🧱 Glass

Antall: 3

Vinduer i hagestue, antall 3

Vinduer i hagestue for lysinnslipp

Tak Pergolatak med pleksiglass

🧱 Plekisglass tak på pergola

Antall: 1

Nærmest flatt tak med takvinkel 5,6 grader, festet til boligen

Tak til hagestue med fastmontert pleksiglass på pergola

Tømrer Konstruksjon og samordning

Ansvarlig prosjekterende og utførende tømrerarbeid Kenneth Midtskogen

Tømrerarbeid for carport og hagestue

Gulv Grusdekke carport

🧱 Grus

Antall: 1

Grusdekke i carport og gårdsplass

Grusdekke som underlag i carport

Fasade Carport vegger og tak

🧱 Tre, malt i boligens farger

Antall: 1

Saltak med takvinkel 21 grader, samme tekking som bolighus, åpen front og bakvegg, vegg mot bolig og nabogrense

Carport konstruksjon med trevegger og saltak, malt i boligens farger

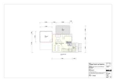
Plantegning

Sanitærtegning 0.0 m²

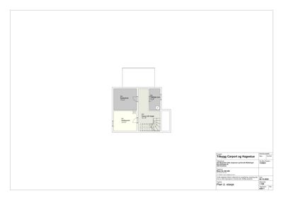
Etasje 0 0.0 m²

Rom Areal Vinduer Dører
Kjeller 0 0.0 m² 0 0

Etasje 1 0.0 m²

Rom Areal Vinduer Dører
Stue 1 0.0 m² 0 0
Kjøkken 2 0.0 m² 0 0

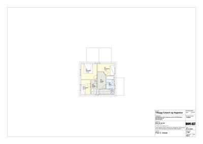
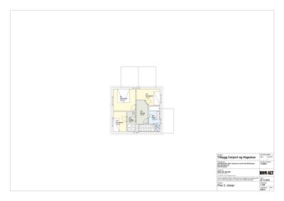
Etasje 2 0.0 m²

Rom Areal Vinduer Dører
Sovev. 3 0.0 m² 0 0
Sovev. 4 0.0 m² 0 0
Sovev. 5 0.0 m² 0 0
Sovev. 6 0.0 m² 0 0
Bad 7 0.0 m² 0 0

Tilbygg Carport og Hagestue 143.9 m²

Etasje 0 41.4 m²

Rom Areal Vinduer Dører
Hobbyrom 001 10.3 m² 0 1
Kjellerbod 002 11.0 m² 0 1
Gang inkl trapp 003 15.1 m² 0 2
Teknisk rom 004 5.0 m² 0 1

Etasje 1 53.7 m²

Rom Areal Vinduer Dører
Kjøkken / Stue 101 40.6 m² 0 1
Spiskammers 102 1.4 m² 0 1
WC 103 1.1 m² 0 1
Entre 104 3.6 m² 0 1
Hagestue 105 16.0 m² 3 1
Carport 106 13.9 m² 0 0

Etasje 2 48.8 m²

Rom Areal Vinduer Dører
Soverom 201 10.9 m² 1 1
Soverom 202 7.2 m² 1 1
Soverom 203 5.8 m² 1 1
Gang 204 3.6 m² 0 2
Gang 205 6.0 m² 0 2
Bad 206 5.3 m² 0 1

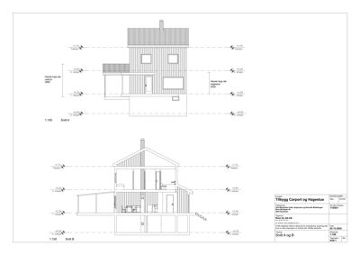
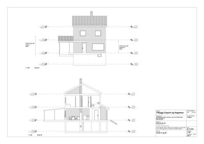
Fasader

Enebolig

Nord
Materiale
Tre
Taktype
Valmtak
Høyde
3.8 m
Vinduer
1
Dører
0
Synlige etasjer
1
Øst
Materiale
Tre
Taktype
Flatt tak
Vinduer
4
Dører
1
Synlige etasjer
2
Sør
Materiale
Tre
Taktype
Valmtak
Vinduer
1
Dører
0
Synlige etasjer
1
Vest
Materiale
Tre
Taktype
Saltak
Vinduer
4
Dører
1
Synlige etasjer
2

Hendelser

08.04.2026 Øvre Ørengate 46, ferdigattest for oppføring av carport og hagestue ferdigattest
27.03.2026 Øvre Ørengate 46 Søknad om ferdigattest 115/931 ferdigattest
23.12.2025 Øvre Ørengate 46, saksbehandlingsgebyret opprettholdes
11.12.2025 Øvre Ørengate 46, vi har mottatt din søknad om reduksjon av gebyr klage
09.12.2025 Øvre Ørengate 46, anmodning om nedsettelse av gebyr
08.12.2025 Øvre Ørengate 46, tillatelse til oppføring av carport og hagestue
04.12.2025 Øvre Ørengate 46 Supplering av søknad 115/931 søknad
28.11.2025 Øvre Ørengate 46, svar på spørsmål om BYA%
27.11.2025 Øvre Ørengate 46, bekreftelse på utsatt frist
27.11.2025 Øvre Ørengate 46, forespørsel om ytterligere utsatt frist
14.10.2025 Øvre Ørengate 46, fristutsettelse til 30.11.2025
14.10.2025 Øvre Ørengate 46, Forespørsel om fristforlengelse
23.09.2025 Øvre Ørengate 46, vi trenger flere opplysninger for å behandle søknaden din søknad
13.09.2025 Øvre Ørengate 46, melding om mottatt søknad søknad
12.09.2025 Øvre Ørengate 46, søknad om tillatelse til tiltak uten ansvarsrett søknad