Extension Ferdigattest Garasje

Tilbygg til enebolig og garasje på Skauen 44

📍 Skauen 44 , 3748 SILJAN

Nøkkelinfo

Sakstype
Tilbygg
Bygningstype
Garasje
Bruksareal
81 m²
Boenheter
1
Kommune
Siljan
Fylke
Telemark
Gnr / Bnr
16 / 316
Saksnummer
2025/893
Fase
Ferdigattest

Om byggesaken

Ny garasje på 49,6 m² med frittstående konstruksjon oppført på eiendommen Skauen 44. Tilbygg til eksisterende enebolig med et bebygd areal på 31,8 m², som inkluderer et hobbyrom godkjent for bruk som soverom. Eneboligen har totalt 221,8 m² fordelt på to etasjer med saltak og trekledning. Garasjen og tilbygget er ferdigstilt og kontrollert i henhold til gjeldende byggeregler, med tilfredsstillende sluttkontroll og dokumentasjon.

Produkter og materialer

Isolasjon Vegger og tak

Isolasjon i vegger og tak i tilbygget og garasje

Isolasjon for varme- og lydisolering

Fasade Trekledning

🧱 Tre

Trekledning på tilbygget og eksisterende bolig

Yttervegger kledd med trepanel som på eksisterende bolig

Tak Saltak med teglstein

🧱 Teglstein

Saltak med teglstein som på eksisterende bolig

Taktekking med teglstein på saltak for både tilbygg og bolig

Tømrer Stenderverk og konstruksjon

🧱 Tre

Tømrerarbeid for tilbygg og garasje

Tømrerarbeid for reisverk, takstoler og konstruksjon

Gulv Innvendig gulvbelegg

Gulv i tilbygget, sannsynlig parkett eller laminat

Innvendige gulvflater i tilbygget

Elektro Elektrisk anlegg

Elektrisk installasjon i tilbygg og garasje

El-installasjon for belysning og stikkontakter

Dører Ytterdører

Ytterdører i tilbygget og bolig, totalt 10 dører i boligen

Ytterdører til tilbygget og bolig

Betong Fundament og plate

🧱 Betong

Betongplate og fundament for garasje og tilbygg

Betongarbeid for fundament og gulvplate

VVS Varme og vann

Varmesystem med elektrisitet, ingen vanninstallasjoner i garasje

Varmeinstallasjon i tilbygget, sannsynlig elektrisk oppvarming

Vinduer Fasadevindu

Flere vinduer i tilbygget og bolig, totalt 14 vinduer i boligen

Vinduer i tilbygget og eksisterende bolig, antatt med isolerglass

Grunnarbeid Fundamentering

Fundamentering for garasje og tilbygg

Grunnarbeid og fundamentering for ny garasje og tilbygg

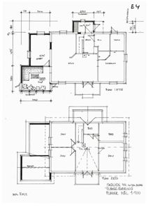
Plantegning

Enebolig 221.8 m²

Etasje 1 110.9 m²

Rom Areal Vinduer Dører
Stue 101 38.9 m² 3 2
Kjøkken 102 12.2 m² 1 1
Vaskerom 103 5.0 m² 0 1
Bad 104 5.3 m² 0 1
Gang 105 5.1 m² 0 2
Teknisk rom 106 1.9 m² 0 1

Etasje 2 110.9 m²

Rom Areal Vinduer Dører
Sov 1 201 12.2 m² 1 1
Sov 2 202 12.2 m² 1 1
Sov 3 203 15.2 m² 1 1
Bad 204 9.3 m² 0 1
Bod 205 3.7 m² 0 1
Gang 206 18.3 m² 0 2

Fasader

Eksisterende bolig

Materiale
Tre
Taktype
Saltak
Takmat.
Tegl
Vinduer
3
Dører
1
Synlige etasjer
1
Materiale
Tre
Taktype
Saltak
Takmat.
Tegl
Vinduer
3
Dører
1
Balkonger
1
Synlige etasjer
2
Nord/Vest
Materiale
Tre
Taktype
Saltak
Vinduer
4
Dører
0
Balkonger
2
Synlige etasjer
2

Enebolig

Nord/Vest
Materiale
Tre
Taktype
Saltak
Vinduer
4
Dører
1
Balkonger
1
Synlige etasjer
2
Sør/Vest
Materiale
Tre
Taktype
Saltak
Vinduer
4
Dører
1
Balkonger
1
Synlige etasjer
2
Nordøst
Materiale
Tre
Taktype
Saltak
Vinduer
4
Dører
1
Synlige etasjer
1
Sørøst
Materiale
Tre
Taktype
Saltak
Vinduer
4
Dører
1
Balkonger
1
Synlige etasjer
2

Hendelser

17.04.2026 Skauen 44 - 4010 - gnr. 16/ bnr. 316. - Henvendelse fra eiendomsmegler
18.09.2025 Gbnr. 16/316-Ferdigattest tilbygg
15.09.2025 Søknad om ferdigattest sak nr 13/01197
12.09.2025 Gbnr. 16/316- Ferdigattest garasje
11.09.2025 Søknad om ferdigattest sak nr 09/1062